5

Парцел/Терен за продажба, Банкя, ID 673424

37011 кв.м.
Градоман
7 850 000 EUR
212 €/кв.м.

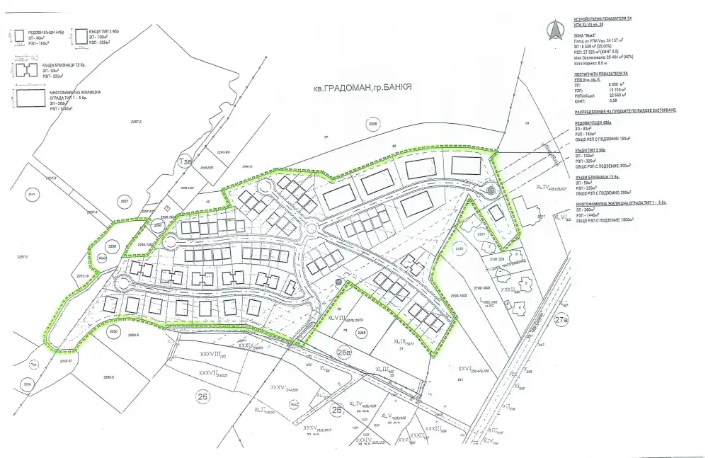
Поземлен имот (УПИ) с отлични параметри и стратегическо местоположение – само на 150 метра от главна улица и в непосредствена близост до популярната „Пътека на здравето“ в гр.Банкя. Параметри на застрояване -  зона ЖМ2: Плътност на застрояване: 25% – 30% КИНТ: 0.8 – 1.0 Озеленяване: 60% Кота корниз: 8.5 м – 10 м .Благодарение на тези показатели имотът е подходящ за изграждане на жилищен комплекс от затворен тип, семейни къщи или  зона с модерна архитектура и простор.

Парцелът се предлага за обявената цена или срещу обезщетение – 25%.

На  метри от ул. "Цар Симеон". Граничи с известната - " Пътека на здравето".

Равен и лесен за строителство терен; Прекрасна панорама и зелена околност; Близо до „Пътеката на здравето“ и градска инфраструктура; Подходящ за инвестиция в жилищен проект; Перспективна и търсена локация.

Обади се СЕГА и цитирай този код 673424.


Оферта от партньор на Имотека

Петър Павлов
Консултант недвижими имоти
pin Пиши във Viber

Сходни оферти

Често задавани въпроси

Към кого да се обърнем за данъчна оценка на имот?

Колко струва една оценка на имот?

Какво можем да очакваме от пазара на имоти през 2025 г.?

Какво представлява данъчната оценка?

Как протича сделка за покупка на имот с ипотечен кредит?