70

Двустаен апартамент за продажба, Бургас, ID 671803

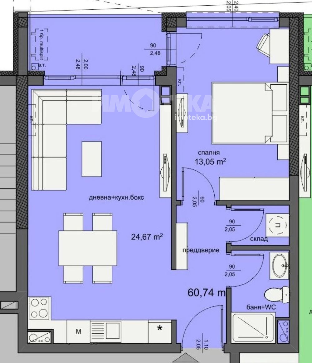
72 кв.м.
Изгрев
Шпакловка и замазка
150 927 EUR
2 096 €/кв.м.

Piccadilly Residence –  жилище от ново поколение в сърцето на Бургас! Комбинация от  стилна архитектура, удобство и комфорт, създадена за съвременния градски човек. Проект разположен на площ 9645 кв.м. съставляващ сграда със смесено предназначение и се състои от един сутерен, един полусутерен, един изцяло надземен етаж и до 14 етажа над тях. Обособени са 6 /шест/ входа, разделени на четири секции, като входове Б,В,Г,Д и Е са жилищни, а вход А е Апартхотел. На партерния етаж ще има супермаркет-Лидъл, две аптеки и медицински център. Жилищата за продажба са 270 единици- двустайни, тристайни и многостайни апартаменти. Осигурено паркиране в границите на имота - 447 броя паркоместа – 159 броя в сутерена , 92 броя в полусутерена, 138 броя в надземния етаж и 58 открити външни паркоместа около сградата.

Простор и естествена  светлина благодарение на тавани със средна височина от 2.90 м Троен стъклопакет с двуосово отваряеми прозорци за максимален комфорт и шумоизолация PVC дограма REHAU с иновативно стъкло „4 сезона“ за идеален микроклимат през цялата година Входни врати от най-висок клас сигурност, които осигуряват спокойствие и защита Подготвена инсталация за климатици във всеки апартамент – без нужда от допълнителни ремонти Smart домофонна система с управление през мобилно приложение СОТ окабеляване на входните врати за допълнителна сигурност Звукоизолация на стени и подове, гарантираща тишина и уединение Възможност за оптичен интернет и телевизия с най-висока скорост LED осветление с мултизонално управление в общите части за по-нисък разход и модерна визия Готовност за ползване – монтирани ключове, контакти и висококачествени електроинсталации Енергийна ефективност клас А, осигуряваща по-ниски разходи за поддръжка и по-здравословна среда Зелен парк с гледка към града и морето.  Асансьори отис от най-висок клас и скорост Супермаркет LIDL и магазин DM за ежедневни покупки Аптека и медицински център за детоксикация Апартаменти със собствени зелени дворове – съчетание на уюта на къща със сигурността на жилищен комплекс Инфраструктура за „умен дом“ решения – възможност за интегриране на смарт технологии според нуждите на собствениците Специално проектирани зони за домашни любимци, така че и те да са част от удобния живот

Обади се СЕГА и цитирай този код 671803.


Оферта от партньор на Имотека

Иван Котаков
Консултант недвижими имоти
pin Пиши във Viber

Оферти от същата сграда

Често задавани въпроси

Коя цена е определяща при покупка на имот?

Какво можем да очакваме от пазара на имоти през 2025 г.?

В какъв срок се издава данъчна оценка?

Как протича сделка за покупка на имот с ипотечен кредит?

Как да изберем брокер при продажба на апартамент?