100

Магазин за продажба, Бургас, ID 669726

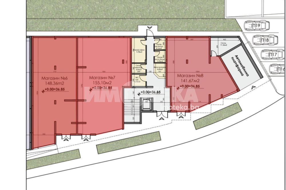
148 кв.м.
Мадика
Шпакловка и замазка
267 048 EUR
1 804 €/кв.м.

  ЕКСКЛУЗИВНО ОТ АДРЕС НЕДВИЖИМИ ИМОТИ: Търговско помещение позиционирано на партер в сграда  в кв.Мадика. Срадата е пред Акт 15 и се намира на бул.Янко Комитов в близост до Университет "Асен Златаров" . Апартамента ще бъде завършен на тапа. Имотът може да бъде закупен с ипотечен кредит. Съдействаме за избор на банка и организиране на процеса по кредитиране.

  Сградата е с модерна и луксозна визия .

Отлична локация,в близост до автобусни спирки,магазини,училища,детски градини, Болница "Сърце и мозък".

  Високо качество на строителство от доказан в бранша строител.

Обади се СЕГА и цитирай този код 669726.


Оферта от партньор на Имотека

Румяна Ненова
Консултант недвижими имоти
pin Пиши във Viber

Оферти от същата сграда

Често задавани въпроси

Как се прави анализ на пазара на недвижими имоти?

В какъв срок се издава данъчна оценка?

Как да изберем брокер при продажба на апартамент?

Коя цена е определяща при покупка на имот?

Как протича сделка за покупка на имот с ипотечен кредит?