132

Двустаен апартамент за продажба, Бургас, ID 670352

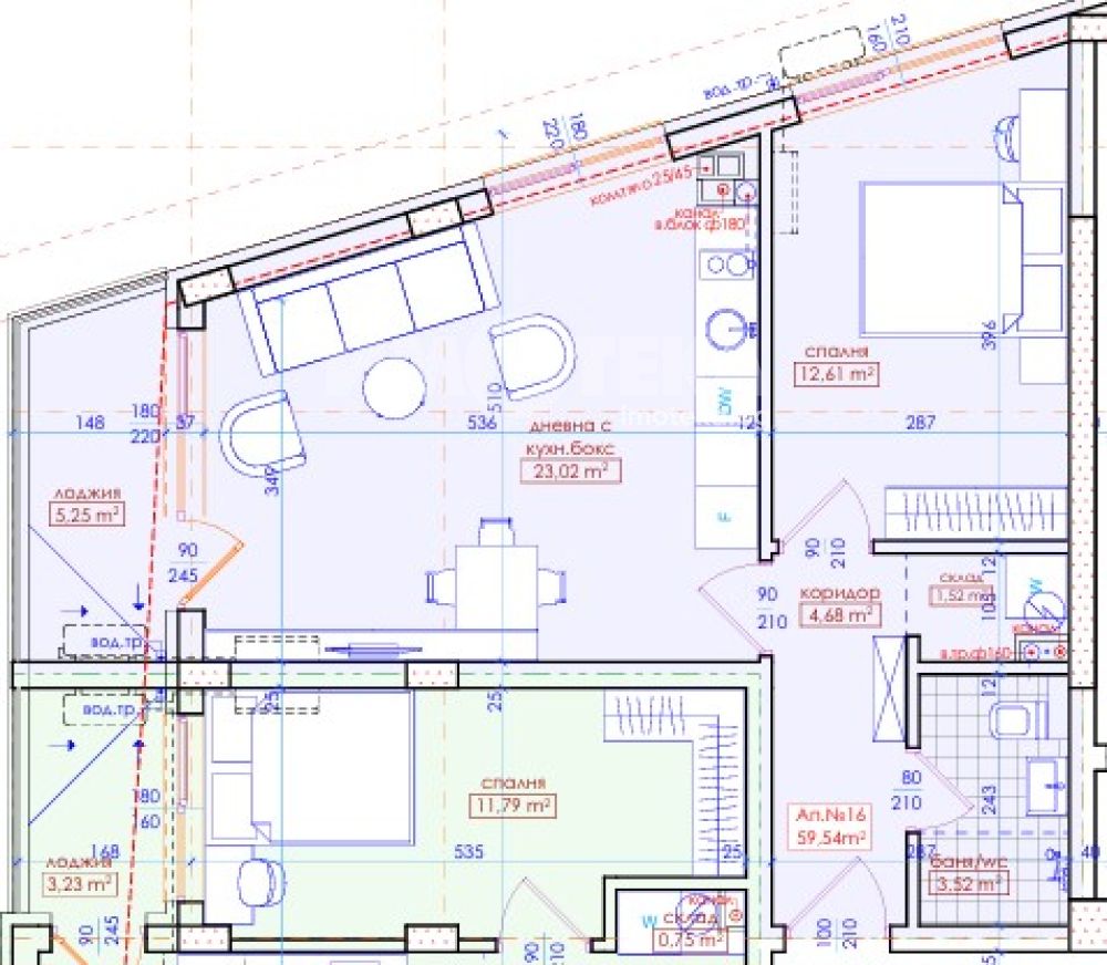
68.6 кв.м.
Меден рудник - зона Д
Шпакловка и замазка
67 914 EUR
990 €/кв.м.

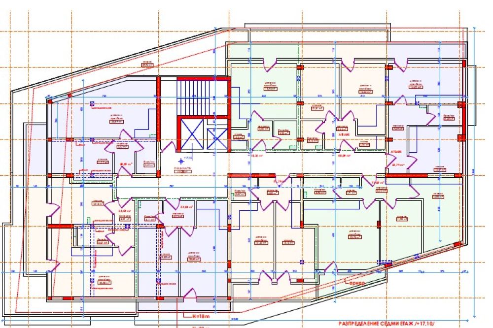
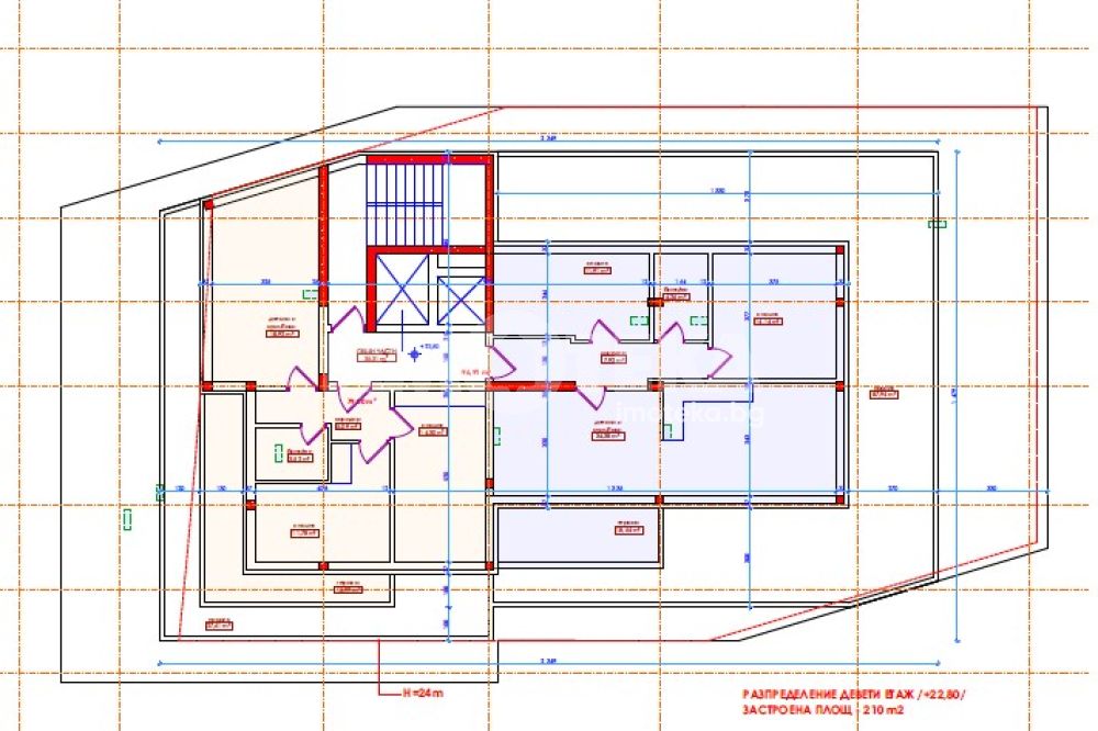
НОВ ЖИЛИЩЕН ПРОЕКТ В Ж.К. МЕДЕН РУДНИК – СЪВРЕМЕНЕН СТИЛ И ОТЛИЧНА ЛОКАЦИЯ АДРЕС Недвижими имоти Ви представя нова жилищна сграда в ж.к. Меден Рудник – зона Д, с изключително комуникативна и развиваща се локация в град Бургас. Проектът е позициониран в близост до зона А – предпочитана част на комплекса, с бърз достъп до училища, детски градини, магазини, спирки на градски транспорт и всичко необходимо за комфортен градски живот. Районът се характеризира с добра инфраструктура, лесен достъп до централните части на града и спокойна жилищна среда, което го прави отличен избор както за живеене, така и за инвестиция.

Сградата е 9-етажна, проектирана с модерна визия и функционално разпределени жилища. Предлагат се двустайни и тристайни апартаменти, които се отличават с правилни форми, максимално усвояване на пространството и отлична естествена осветеност.

Проектът съчетава спокойствието на жилищния квартал с удобствата на градската среда и предлага отлична възможност за инвестиция с висока добавена стойност.

Жилищата се издават по БДС, с възможност за довършване по индивидуален проект, съобразен с нуждите на всеки клиент. Основни предимства: Отлична локация в бързо развиващ се район Функционални двустайни и тристайни апартаменти Модерна архитектура и качествено строителство Луксозно изпълнени общи части Контрол на достъпа и сигурност Гъвкави схеми на плащане

Обади се СЕГА и цитирай този код 670352.


Оферта от партньор на Имотека

Николина Димитрова
Консултант недвижими имоти
pin Пиши във Viber

Оферти от същата сграда

Често задавани въпроси

Как се прави анализ на пазара на недвижими имоти?

Какво можем да очакваме от пазара на имоти през 2025 г.?

Коя цена е определяща при покупка на имот?

Колко струва една оценка на имот?

Как протича сделка за покупка на имот с ипотечен кредит?