35

Къща/Вила за продажба, Черни връх, ID 683089

137 кв.м.
Шпакловка и замазка
151 470 EUR
1 106 €/кв.м.

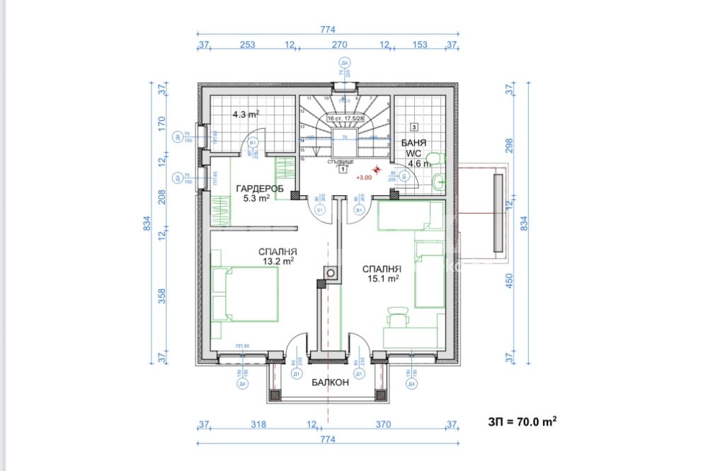
Кокетна еднофамилна двуетажна къща в с. Черни Връх – с две спални. Търсите уют и спокойствие близо до Бургас? Предлагаме Ви нова, двуетажна къща със собствен двор в модерен комплекс без такса поддръжка. Разпределение: Етаж 1 (67.7 кв.м): Входно антре, практичен склад, баня с тоалетна и просторна дневна с кухня и трапезария. Етаж 2 (70 кв.м): Коридор, две уютни спални (едната със собствена баня, тоалетна и гардеробна), втора баня с тоалетна и балкон. Предимства: Самостоятелно паркомясто, собствена градина и отлична локация в с. Черни Връх.   НОВИ ЕДНОФАМИЛНИ ДВУЕТАЖНИ КЪЩИ СЪС СОБСТВЕНА ГРАДИНА И ПАРКОМЯСТО БЕЗ ТАКСА ЗА ПОДДРЪЖКА В СЕЛО ЧЕРНИ ВРЪХ! Спокойствие, комфорт и простор – вашият нов дом сред природата Представяме ви уникален жилищен проект в живописното село Черни Връх, само на 15 км от Бургас. Тук ще бъдат изградени 20 самостоятелни къщи, проектирани за съвременния начин на живот – с просторни помещения, собствени дворове и без такса поддръжка. ✅ Разсрочено плащане ✅ Висококачествено строителство с възможност за завършване "до ключ"! ✅ Големи парцели – от 500 до 650 кв.м! ТИПОВЕ КЪЩИ Малка Къща – Компактна и уютна Жилищна площ: 137.7 кв.м Площ на парцела: 500-600 кв.м Разпределение: Първи етаж: (67.7 кв.м.) Дневна с кухня и трапезария, коридор, склад, баня с тоалетна. Втори етаж: (70 кв.м.) Две спални (едната с гардеробна и баня), втора баня с тоалетна и балкон. Цена: 151 470 € Средна Къща – Простор и функционалност Жилищна площ: 159.7 кв.м Площ на парцела: 550-600 кв.м Разпределение: Първи етаж: (94 кв.м.) Дневна с кухня и трапезария, спалня, баня с тоалетна, перално помещение, склад, тоалетна и коридор. Втори етаж: (82.9 кв.м.) Две спални (едната с гардеробна и баня), втора баня с тоалетна, балкон Цена: 175 000 € Голяма Къща – За тези, които искат повече пространство Жилищна площ: 227.1 кв.м Площ на парцела: 550-600 кв.м Разпределение: Първи етаж: (120.4 кв.м.) Дневна с кухня и трапезария, спалня, баня с тоалетна, перално помещение, коридор, отделна тоалетна, склад. Втори етаж: Три спални (едната с гардеробна и баня), коридор, втора баня с тоалетна, балкон. Цена: 227 000 € ЗАВЪРШВАНЕ ПО ЖЕЛАНИЕ НА КЛИЕНТА Къщите се предлагат на етап "тапа" с възможност за завършване "до ключ", което включва: ✅ Шпакловани и боядисани стени и тавани ✅ Подови настилки по избор – ламинат, гранитогрес, плочки ✅ Инсталирани санитарни уреди ✅ Вътрешни врати и електрически компоненти Предлагаме и обзавеждане с различни мебелни пакети по ваш избор! Срок за завършване: До 1 година след подписване на предварителен договор ЗАЩО ДА ИЗБЕРЕТЕ СЕЛО ЧЕРНИ ВРЪХ? Тихо и спокойно място, заобиколено от красива природа Само на 15 км от Бургас – идеален баланс между градската динамика и уединението Перфектно за постоянно живеене или ваканционен дом Вашият нов дом ви очаква!

Обади се СЕГА и цитирай този код 683089.


Оферта от партньор на Имотека

Злати Янакиев
Консултант недвижими имоти
pin Пиши във Viber

Оферти от същата сграда

Често задавани въпроси

Към кого да се обърнем за данъчна оценка на имот?

През кои квартали минава метрото в София?

Какво можем да очакваме от пазара на имоти през 2025 г.?

Как се прави анализ на пазара на недвижими имоти?

Коя е най-подходящата локация за търсене на къщи за продажба?