164

Къща/Вила за продажба, Черноморец, ID 628095

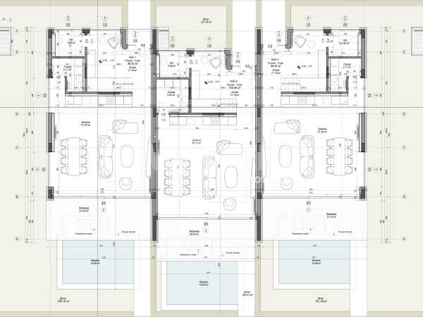
205 кв.м.
Шпакловка и замазка
По запитване

Двуетажна къща на първа линия море - комфортен начи на живот! Имотът е с разгърната площ 205,12 кв. м., разположени в двор с площ 169,16 кв. м. Къщата се състои от: етаж 1 -  просторна и светла дневна с трапезария и кухненски кът, кът за отдих, от който се излиза на слънчева веранда, склад и санитарно помещение; етаж 2 - три спални, всяка със санитарен взел. В двора може  да бъде изграден (по желание на клиента) басейн 15 кв. м. Изложение :изток/юг/запад На територията на къщата мога да бъда паркирани три автомобила. Паркоместата са осигурени в два общи наземни паркинга, в непосредствена близост до къщите. Изберете индивидуален проект за довършителни работи и обзавеждане.

24 двуетажни редови къщи, групирани по 3 броя Височина на помещенията – Конструктивна – 3,30 м., светла – 2,85 м. Озеленен покрив Собствен басейн Обособени надземни паркоместа, включително и за електромобили Изградена система за отопление/охлаждане с термопомпа Степен на завършеност – стандарт БДС

 Уникална по размери паркова зона  Множество зелени площи между сградите  Спортен комплекс – с открити и закрити игрища  Wellness and spa  Healthy програми  Ресторанти  Медицински център  Търговска зона и магазини

Обади се СЕГА и цитирай този код 628095.


Оферта от партньор на Имотека

Оферти от същата сграда

Често задавани въпроси

Как се прави анализ на пазара на недвижими имоти?

Как протича сделка за покупка на имот с ипотечен кредит?

В какъв срок се издава данъчна оценка?

Коя е най-подходящата локация за търсене на къщи за продажба?

Как да изберем брокер при продажба на апартамент?