84

Къща/Вила за продажба, Куманово, ID 668407

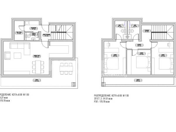
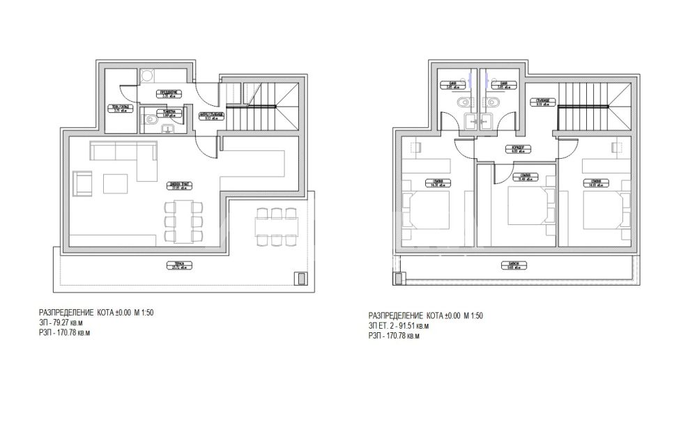
171 кв.м.
Шпакловка и замазка
269 900 EUR
1 578 €/кв.м.

Къща разположена на 10 км от гр. Варна. Вашият семеен дом сред тишина и зеленина – само на 10 км от Варна. Предлагаме ви самостоятелна, двуетажна къща с модерна визия и двор от 638 кв.м – идеално място за отглеждане на деца и пълноценен семеен живот. Къщата е с разгъната застроена площ от 171 кв.м и се състои от голям дневен тракт, три просторни спални, три бани с тоалетни, две тераси. Строителството ще бъде изпълнено с висок клас материал.

На етап разрешение за строеж. Цената е за завършване по БДС. Има възможност и завършване до ключ и поставяне на  соларни панели, като допълнително се заплаща след уточняване на материалите. Бетонна ограда до 50 см зид, нагоре метални колове с мрежа + зелена мрежа зебло. Интериорни врати, поставяне на плочки, ламинат, шпакловка и боя и необорудвани бани. Входна врата среден клас.

На 10 км. от гр. Варна.

Дом с модерна архитектура - предлага уют, светлина и възможност за споделени мигове на открито Изключително тихо и спокойно място, сред зеленина и простор Висок клас на изпълнение на строителството  Проектирана с югоизточно изложение, къщата ще бъде светла и слънчева през целия ден Районът е изключително тих и зелен – перфектна среда за отглеждане на деца, далеч от градския шум, но близо до всички удобства на Варна

Обади се СЕГА и цитирай този код 668407.


Оферта от партньор на Имотека

Андрей Иванов
Консултант недвижими имоти
pin Пиши във Viber

Сходни оферти

Често задавани въпроси

Как протича сделка за покупка на имот с ипотечен кредит?

В какъв срок се издава данъчна оценка?

Как да изберем брокер при продажба на апартамент?

Какви са прогнозите за кварталите през 2025г.?

Към кого да се обърнем за данъчна оценка на имот?