19

Къща/Вила за продажба, Марково, ID 678667

250 кв.м.
Шпакловка и замазка
362 500 EUR
1 450 €/кв.м.

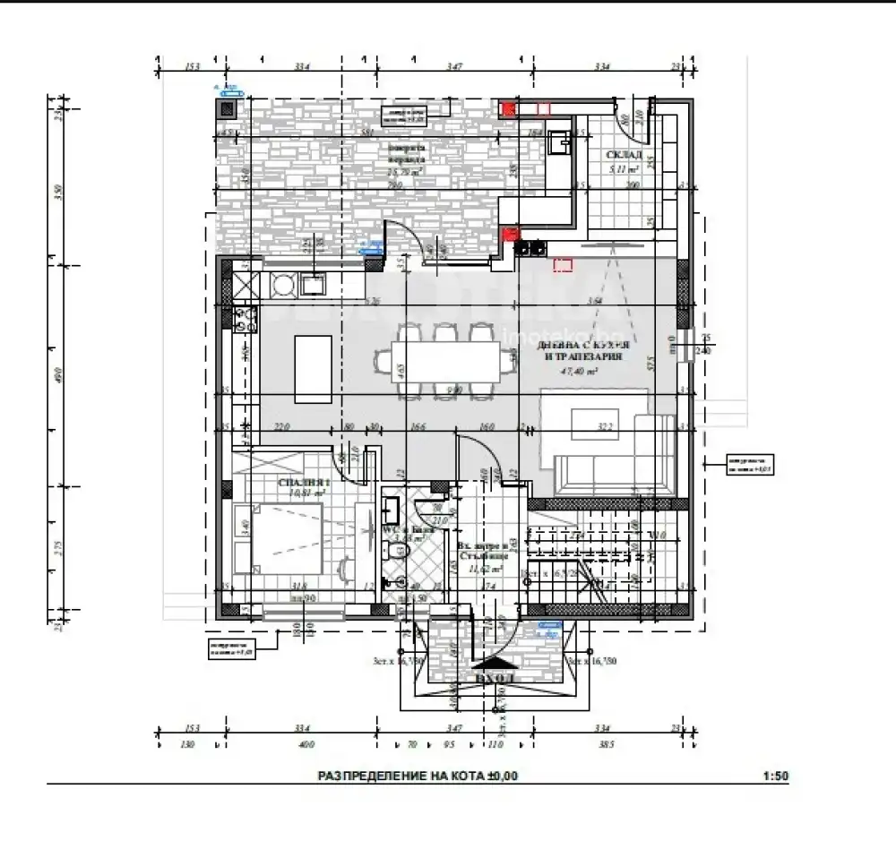
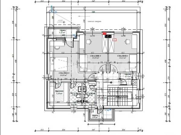
 Предлагаме за продажба двуетажна, еднофамилна тухлена къща, която се намира в китното село Марково, в полите на Родопите. Къщата е на етап строително разрешение и през месец януари 2026 г. започва строителството. Дворното място е 600 м2, като в тази квадратура има и площ за частен път. Сградата се изпълнява от доказан с качественото си строителство инвеститор. Не се прави компромис както с  материали, така и с качествено изпълнение.. Чудесен избор за бъдещ дом на само десет минути от гр. Пловдив.

Обади се СЕГА и цитирай този код 678667.


Оферта от партньор на Имотека

Анка Панайотова
Консултант недвижими имоти
pin Пиши във Viber

Сходни оферти

Често задавани въпроси

Каква е цената на квадратен метър за София?

В какъв срок се издава данъчна оценка?

Какво представлява данъчната оценка?

Какво можем да очакваме от пазара на имоти през 2025 г.?

Как да изберем брокер при продажба на апартамент?