150

Двустаен апартамент за продажба, Пловдив, ID 668082

72 кв.м.
Христо Смирненски
Шпакловка и замазка
105 678 EUR
1 468 €/кв.м.

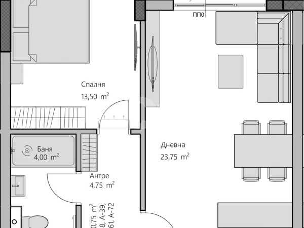
А61, секция А - Просторен и функционален двустаен апартамент със западно изложение. Състои се от просторна дневна, с трапезария и кухненски бокс; голяма самостоятелна спалня; чудесна тераса- лоджия, с достъп от двете стаил антре; санитарен възел и склад. Проект, с концепция за съвременен градски живот, съчетаваща комфорт, естетика и функционалност.  Две сгради, проектирани с внимание към детайла, като предлагат балансирано пространство между динамиката на града и спокойствието на дома. Всяко жилище е създадено с мисъл за светлина, простор и практичност, за да носи усещане за престиж.  

Сградата и всяко жилище се предават с висококачествени завършени елементи: - Блиндирани входни врати; - Най- висок клас алуминиева дограма; - Френски прозорци с трислоен стъклопакет; - Вентилируема фасадна система с алуминиеви композитни панели (еталбонд) в два контрастни цвята – светъл и тъмен ; - Стилни входни пространства, елегантно завършени коридори, безшумни асансьори и комфортно организираните стълбища;  Всички паркоместа и гаражи ще бъдат подготвени за поставяне на зарядни станции за електрически коли. Озеленяването около сградите създава усещане за баланс между динамиката на града и спокойствието на природата. Професионално проектирани градини и зони за отдих, безопасни и модерни детски площадки.

Обектът се намира в началото на парк Отдих и култура . Близо до главен булевард, но далеч от шума и с достъп по две изградени и асфалтирани улици. Наблизо има вече построени и населени жилищни сгради .  Локацията осигурява бърз и лесен достъп до основни пътни артерии, търговски зони, образователни институции и зелени площи. Разположението комбинира динамиката на града със спокойствието на добре планирана жилищна зона.

Комуникативното местоположение и отличителното качество на влаганите материали са сред основните предимства на този проект. Бързите темпове на строителство и безкомпромисно качество на обслужване от нашия екип и този на продавача допълват тези предимства и се съчетват отлично с различните варианти за плащане.

Обади се СЕГА и цитирай този код 668082.


Оферта от партньор на Имотека

Антон Кехайов
Консултант недвижими имоти
pin Пиши във Viber

Оферти от същата сграда

За квартал Христо Смирненски, Пловдив и недвижимите имоти

Квартал Христо Смирненски е добре установена жилищна зона в западната част на Пловдив. Разположен е в непосредствена близост до Гребния канал и важни градски пътни артерии.
Жилищната среда в района е разнообразна – включва панелни блокове, тухлени кооперации, ново строителство и модерни жилищни комплекси. Тази комбинация дава широк избор както за купувачи, така и за инвеститори.

 

Транспортната мрежа в района е отлично развита и осигурява бърза връзка с центъра на града и съседните квартали. Булевардите „Пещерско шосе“, „Копривщица“ и „Хаджи Димитър“ изграждат основната пътна ос на Смирненски, предоставяйки директен достъп до Центъра, Гребната база, Околовръстния път, както и до ключови бизнес и търговски направления. Автобусни линии на градския транспорт – №10, 12, 26, 29 и 37, обслужват квартала и гарантират редовен транспорт към централните части, Тракия, район Южен, промишлени територии и големи търговски комплекси.

 

В квартала се намират редица образователни институции – Детска ясла „100 усмивки“, детските градини „Светла“ и „Елица“, както и училища като ОУ „Драган Манчов“ и СУ „Св. св. Кирил и Методий“. Благодарение на основните пътни връзки достъпът до тях е удобен и бърз. В близост е разположена и една от най-реномираните гимназии в Пловдив – Математическата гимназия „Акад. Кирил Попов“, което представлява голямо предимство за семейства, които държат на качествено образование.

 

Здравната инфраструктура в Смирненски е сред най-добре развитите в града. В района и неговите прилежащи части са разположени важни лечебни заведения – УМБАЛ „Пълмед“, СБАЛАГ „Селена“, УМБАЛ „Каспела“, както и ДКЦ 4-Пловдив, медицински лаборатории, дентални клиники и аптеки. Това осигурява достъп до първична и специализирана медицинска помощ.

Жителите на квартала разполагат с няколко големи супермаркета, множество квартални магазини, заведения, фитнеси и спортни услуги. Смирненски е предпочитан за активен начин на живот благодарение на близостта си до Гребния канал и парк „Отдих и култура“, които осигуряват отлични условия за спорт, разходки, велосипедни маршрути и семейни активности на открито.

 

На сайта на Имотека може да откриете обяви за разнообразни имоти с функционално разпределение в квартал Кършияка на Пловдив, които отговарят на различни бюджети и предпочитания. 

Нашите брокери недвижими имоти ще ви посрещнат с професионализъм и добро отношение. Професионалната помощ е от голямо значение, тъй като ние сме наясно с пазара. 

Тук може да се запознаете и с местоположението на офисите на ИМОТЕКА в Пловдив.

Често задавани въпроси

Как протича сделка за покупка на имот с ипотечен кредит?

Как да изберем брокер при продажба на апартамент?

Как се прави анализ на пазара на недвижими имоти?

Какво можем да очакваме от пазара на имоти през 2025 г.?

Какво представлява данъчната оценка?