441

Двустаен апартамент за продажба, Пловдив, ID 670850

72 кв.м.
Христо Смирненски
Шпакловка и замазка
111 430 EUR
1 548 €/кв.м.

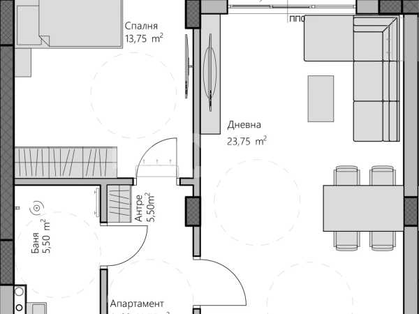
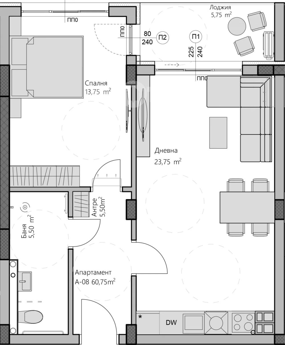
Апартамент А08 , секция А , етаж 1 на височина 4 метра , изложение Запад . Разпределение - хол с трапезария , самостоятелна спалня , тераса тип лоджия .  Проект, с концепция за съвременен градски живот, съчетаваща комфорт, естетика и функционалност.  Две сгради, проектирани с внимание към детайла, като предлагат балансирано пространство между динамиката на града и спокойствието на дома. Всяко жилище е създадено с мисъл за светлина, простор и практичност, за да носи усещане за престиж.  

Сградата и всяко жилище се предават с висококачествени завършени елементи: - Блиндирани входни врати; - Най- висок клас алуминиева дограма; - Френски прозорци с трислоен стъклопакет; - Вентилируема фасадна система с алуминиеви композитни панели (еталбонд) в два контрастни цвята – светъл и тъмен ; - Стилни входни пространства, елегантно завършени коридори, безшумни асансьори и комфортно организираните стълбища;  Всички паркоместа и гаражи ще бъдат подготвени за поставяне на зарядни станции за електрически коли. Озеленяването около сградите създава усещане за баланс между динамиката на града и спокойствието на природата. Професионално проектирани градини и зони за отдих, безопасни и модерни детски площадки.

Обектът се намира в началото на парк Отдих и култура . Близо до главен булевард, но далеч от шума и с достъп по две изградени и асфалтирани улици. Наблизо има вече построени и населени жилищни сгради .  Локацията осигурява бърз и лесен достъп до основни пътни артерии, търговски зони, образователни институции и зелени площи. Разположението комбинира динамиката на града със спокойствието на добре планирана жилищна зона.

Комуникативното местоположение и отличителното качество на влаганите материали са сред основните предимства на този проект. Бързите темпове на строителство и безкомпромисно качество на обслужване от нашия екип и този на продавача допълват тези предимства и се съчетват отлично с различните варианти за плащане.

Обади се СЕГА и цитирай този код 670850.


Оферта от партньор на Имотека

Антон Кехайов
Консултант недвижими имоти
pin Пиши във Viber

Оферти от същата сграда

За квартал Христо Смирненски, Пловдив и недвижимите имоти

Квартал Христо Смирненски е добре установена жилищна зона в западната част на Пловдив. Разположен е в непосредствена близост до Гребния канал и важни градски пътни артерии.
Жилищната среда в района е разнообразна – включва панелни блокове, тухлени кооперации, ново строителство и модерни жилищни комплекси. Тази комбинация дава широк избор както за купувачи, така и за инвеститори.

 

Транспортната мрежа в района е отлично развита и осигурява бърза връзка с центъра на града и съседните квартали. Булевардите „Пещерско шосе“, „Копривщица“ и „Хаджи Димитър“ изграждат основната пътна ос на Смирненски, предоставяйки директен достъп до Центъра, Гребната база, Околовръстния път, както и до ключови бизнес и търговски направления. Автобусни линии на градския транспорт – №10, 12, 26, 29 и 37, обслужват квартала и гарантират редовен транспорт към централните части, Тракия, район Южен, промишлени територии и големи търговски комплекси.

 

В квартала се намират редица образователни институции – Детска ясла „100 усмивки“, детските градини „Светла“ и „Елица“, както и училища като ОУ „Драган Манчов“ и СУ „Св. св. Кирил и Методий“. Благодарение на основните пътни връзки достъпът до тях е удобен и бърз. В близост е разположена и една от най-реномираните гимназии в Пловдив – Математическата гимназия „Акад. Кирил Попов“, което представлява голямо предимство за семейства, които държат на качествено образование.

 

Здравната инфраструктура в Смирненски е сред най-добре развитите в града. В района и неговите прилежащи части са разположени важни лечебни заведения – УМБАЛ „Пълмед“, СБАЛАГ „Селена“, УМБАЛ „Каспела“, както и ДКЦ 4-Пловдив, медицински лаборатории, дентални клиники и аптеки. Това осигурява достъп до първична и специализирана медицинска помощ.

Жителите на квартала разполагат с няколко големи супермаркета, множество квартални магазини, заведения, фитнеси и спортни услуги. Смирненски е предпочитан за активен начин на живот благодарение на близостта си до Гребния канал и парк „Отдих и култура“, които осигуряват отлични условия за спорт, разходки, велосипедни маршрути и семейни активности на открито.

 

На сайта на Имотека може да откриете обяви за разнообразни имоти с функционално разпределение в квартал Кършияка на Пловдив, които отговарят на различни бюджети и предпочитания. 

Нашите брокери недвижими имоти ще ви посрещнат с професионализъм и добро отношение. Професионалната помощ е от голямо значение, тъй като ние сме наясно с пазара. 

Тук може да се запознаете и с местоположението на офисите на ИМОТЕКА в Пловдив.

Често задавани въпроси

Към кого да се обърнем за данъчна оценка на имот?

Как протича сделка за покупка на имот с ипотечен кредит?

Какво представлява данъчната оценка?

Как да изберем брокер при продажба на апартамент?

Какво можем да очакваме от пазара на имоти през 2025 г.?