10

Къща/Вила за продажба, Приселци, ID 682071

203 кв.м.
Шпакловка и замазка
285 000 EUR
1 404 €/кв.м.

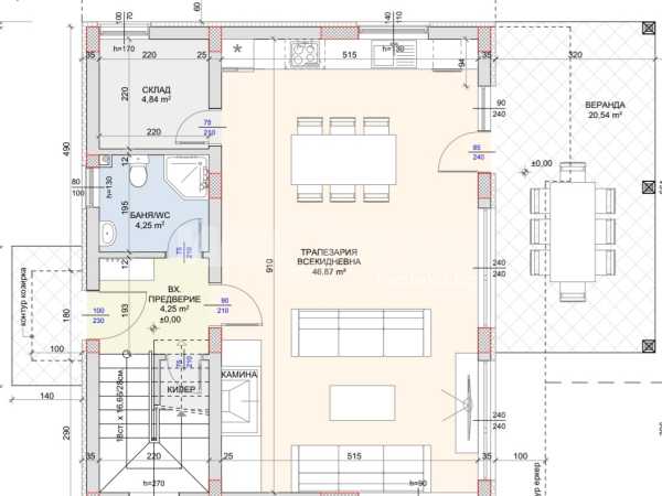
Готова нова самостоятелна двуетажна къща в с. Приселци  пред Разрешение за ползване. Къщата е с РЗП 203 кв.м. със следното разпределение: На първия етаж са разположени входно антре, дневен тракт с кухненска част 47 кв, с височина от 2,9 м, веранда 21 кв, склад,  баня с тоалетна и стълбищна клетка. От дневната се излиза на просторна покрита веранда. На втория етаж  три спални по 15 -16 кв,  баня и тоалет на етажа, перално, гардеробна . От двете спални се излиза на обща тераса. Всички помещения в сградата са ориентирани изцяло на юг. Таванското помещение на къщата с височината му е 2.5 метра. Отоплението на къщата е с ТЕРМОПОМПА, конвектори и лира в банята. Поставено е подово отопление със съответната изолация, бойлер за двете бани захранвано от термопомпата. Къщата се предлага завършена по БДС. Разположена в парцел с площ 579 кв.м. Предвидени са паркоместа за няколко автомобила.

При строителството на къщата се използват качествени материали, по най-съвременните стандарти, разполага с всички комуникации. Дворът е с правилна форма.

Къщата е разположена в с. Приселци на 15 км. от гр. Варна. Намира се в близост до морето и к.к. Камчия. В селото има училище, магазини, здравна служба, аптека, детски площадки, добра инфраструктура. Имотът е разположен в центъра на селото с лице на асфалтова улица.

В близост до к.к. Камчия, морето и гр. Варна, модерна архитектура и разпределение, качествени материали, паркоместа, красива веранда. Същевременно искате да бъдете обгърнати от комфорт, простор! Приселци - най-модерното село около град Варна с динамичен облик и добра инфраструктура.

Обади се СЕГА и цитирай този код 682071.


Оферта от партньор на Имотека

Борислав Борисов
Консултант недвижими имоти
pin Пиши във Viber

Сходни оферти

Често задавани въпроси

Какво можем да очакваме от пазара на имоти през 2025 г.?

Как протича сделка за покупка на имот с ипотечен кредит?

Колко струва една оценка на имот?

Коя цена е определяща при покупка на имот?

Какво представлява данъчната оценка?