209

Двустаен апартамент за продажба, София, ID 669898

76 кв.м.
Дружба 1
Шпакловка и замазка
154 536 EUR
2 021 €/кв.м.

Стилен дизайн и качествени  материали, които създадат запомняща се визия, която ще осигури на собствениците надеждност и ниски енергийни разходи

Над 5500 кв.м. РЗП сграда с 50 апартамента. Опция за открити и закрити паркоместа. Строежът е на етап дупка. Срок за изпълнение - края на 2027г. 

Отлична локация в Дружба - само на 5 минути от метростанстиця. Бърза комуникация с основни булеварди.

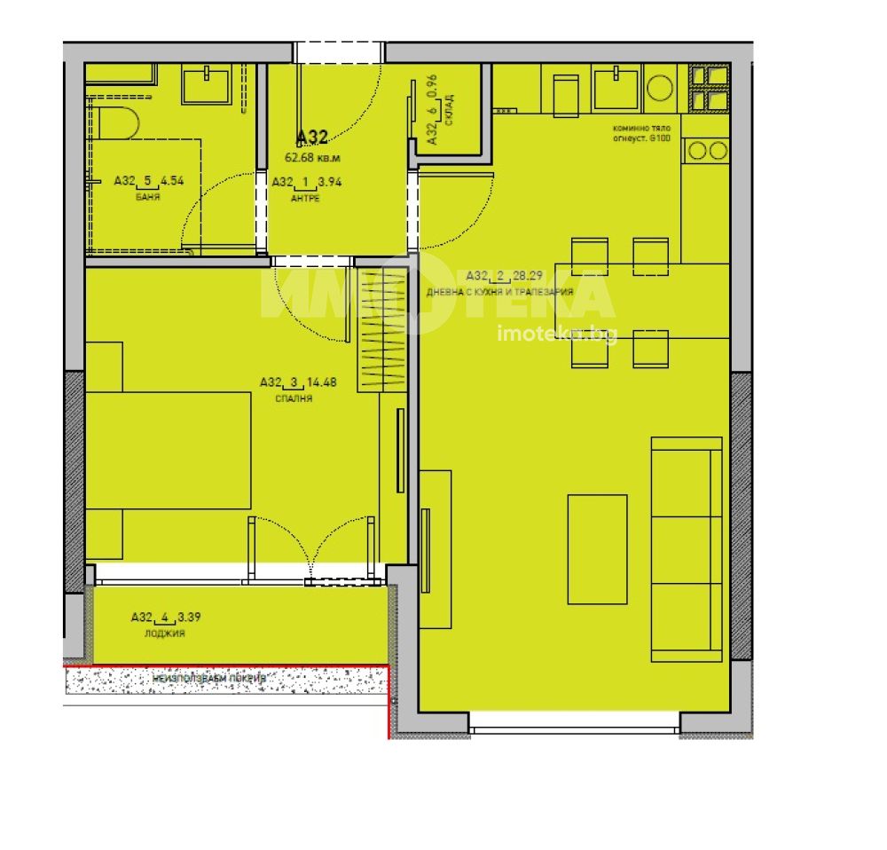
Висок клас изпълнение, просторни разпределения  Просторен двустаен апартамент с РЗП: 75.31 кв.м. и ЗП: 64.70 кв.м.. Югоизточно изложение. 

Обади се СЕГА и цитирай този код 669898.


Оферта от партньор на Имотека

Светлин Георгиев
Консултант недвижими имоти
pin Пиши във Viber

Оферти от същата сграда

За квартал Дружба, София и недвижимите имоти

Кварталите Дружба 1 и Дружба 2 са разположени в източната част на София и представляват една от големите и утвърдени жилищни зони на столицата. Те граничат с районите Младост, Полигона, Искър и Гара Искър и се намират в близост до важни входно-изходни направления на града. Автомобилният достъп се осъществява основно чрез бул. „Цариградско шосе“, бул. „Искърско шосе“ и бул. „проф. Цветан Лазаров“, които осигуряват връзки както с централните части на София, така и с периферията.

Едно от основните предимства на квартала е добрата транспортна обезпеченост. Районът се обслужва от метролиния М4 с метростанции „ИЕЦ – Цариградско шосе“, „Дружба“ и „Искърско шосе“, които осигуряват директен достъп до центъра на града и Летище София. Освен метрото, кварталите разполагат с добре развита автобусна мрежа – линии №1, 3, 5, 6, 7, 88, 204 и други, както и с тролейбусни линии №4 и 11. Допълнително трамвайните линии №20 и 23 осигуряват връзка с ключови градски точки.

Образователната инфраструктура в района е добре развита и разнообразна. В района са ситуирани детски градини, сред които 108 ЦДГ „Детско царство“ и ДГ 21 „Ежко Бежко“. В кварталите функционират и училища като 4 ОУ „Проф. Джон Атанасов“, 69 СУ „Димитър Маринов“, както и Професионалната гимназия по транспорт. Освен държавните учебни заведения, има и частни образователни центрове, включително SmartyKids София (Дружба 1), предлагащи допълнителни обучителни и развиващи програми за деца.

Здравното обслужване е добре обезпечено чрез диагностично-консултативни центрове, частни медицински кабинети, лаборатории и аптеки, разположени в рамките на кварталите и по основните пътни артерии. В непосредствена близост се намират и по-големи болнични заведения, сред които УМБАЛ „Св. Анна“, осигуряваща достъп до широк спектър от медицински услуги.

Търговската и обслужваща инфраструктура включва супермаркети на големи търговски вериги, квартални магазини, аптеки, банкови клонове, заведения и спортни съоръжения. Значително предимство на района са и зелените площи, като езерото в Дружба, което е една от най-големите паркови зони в източната част на София и предлага отлични условия за разходки, спорт и отдих.

 

Жилищната среда е разнообразна и отразява различни периоди от развитието на града. Основната част от застрояването се състои от панелни и ЕПК сгради, изградени през 70-те и 80-те години като част от планираното жилищно строителство. През последните години се наблюдава засилен интерес към ново строителство, включващо модерни жилищни сгради и комплекси, особено в периферните части на кварталите и около основните булеварди. Това предоставя възможност за избор между различни типове имоти и ценови нива.

Комбинацията от отлична транспортна свързаност, развита инфраструктура, разнообразен жилищен фонд и наличие на всички основни градски услуги утвърждава Дружба 1 и 2 като стабилен и функционален жилищен район, предпочитан както за постоянно живеене, така и за инвестиции с цел отдаване под наем.


На сайта на Имотека може да откриете обяви за разнообразни имоти с функционално разпределение в Дружба, които отговарят на различни бюджети и предпочитания. 

Нашите брокери недвижими имоти ще ви посрещнат с професионализъм и добро отношение. Професионалната помощ е от голямо значение, тъй като ние сме наясно с пазара. 

Тук може да се запознаете и с местоположението на офисите на ИМОТЕКА в София.

Често задавани въпроси

Какво можем да очакваме от пазара на имоти през 2025 г.?

Как да изберем брокер при продажба на апартамент?

Към кого да се обърнем за данъчна оценка на имот?

Коя е най-подходящата локация за търсене на къщи за продажба?

Коя цена е определяща при покупка на имот?