13

Многостаен за продажба, София, ID 678265

438.08 кв.м.
Горубляне
Шпакловка и замазка
510 000 EUR
1 164 €/кв.м.

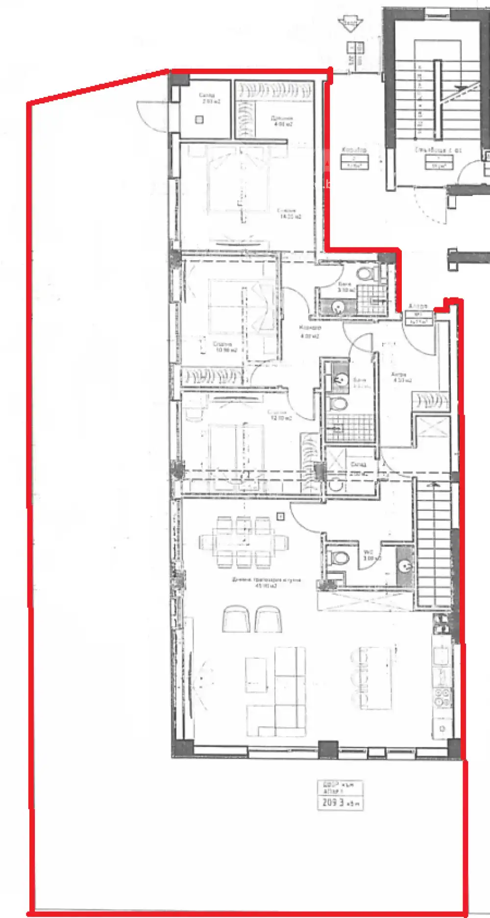
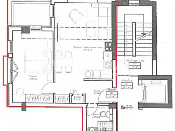
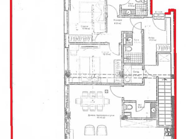
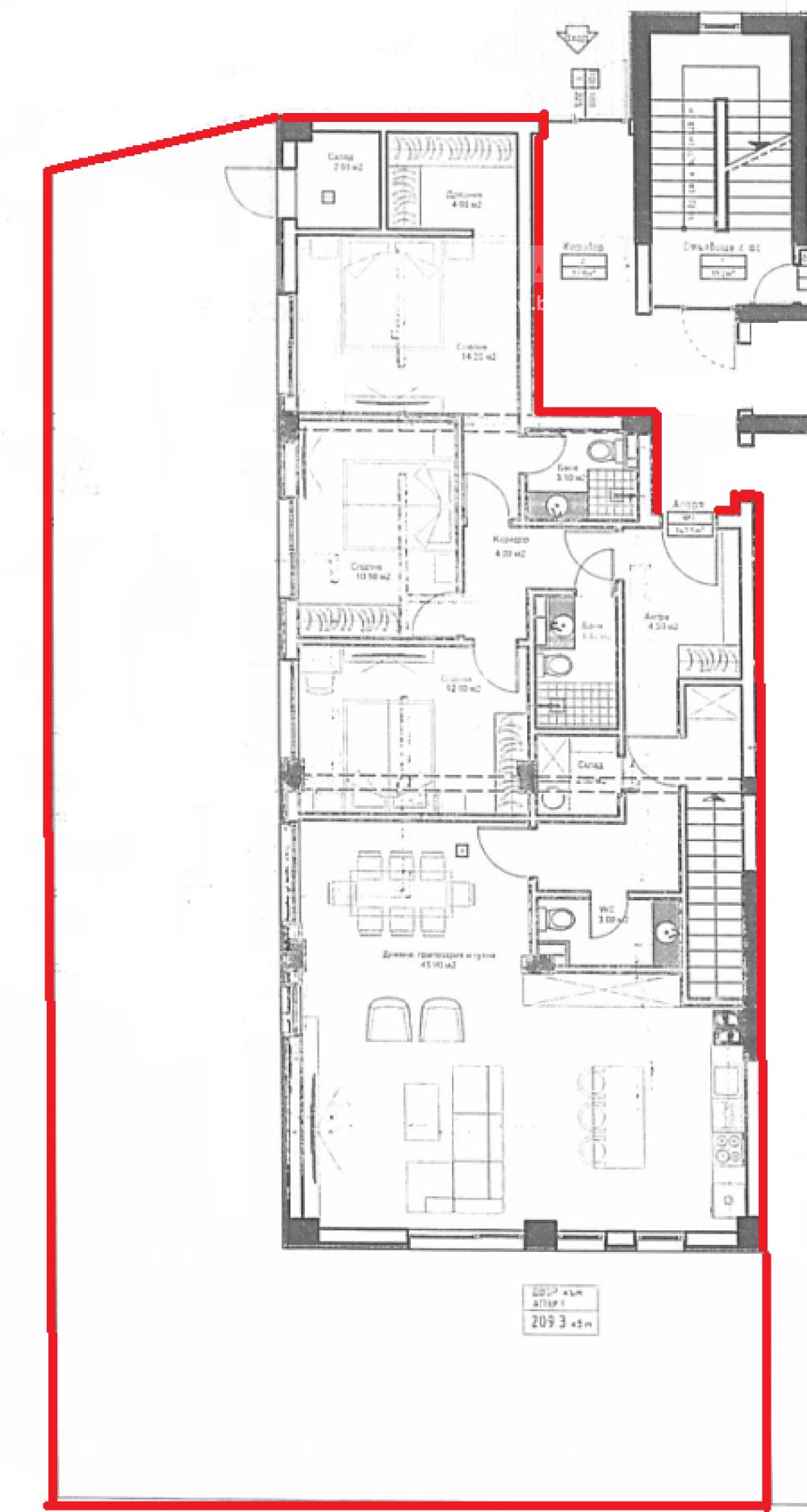
Апартамент Б1 има следното разпределение: Гараж                  65.80м2 Партер               142.50м2 Общи части        20.48м2 Двор                   209.30м2 Общо                  438.08м2

Представяме Ви новостроящ се жилищен комплекс, състоящ се от две самостоятелни триетажни сгради, разположени в тиха вътрешна част на кв. Горубляне. Проектът съчетава съвременна архитектура, функционални жилища и удобства, създадени за комфортен градски живот. Проектът предлага богат избор от функционални апартаменти и вградени къщи, подходящи както за лично ползване, така и за инвестиция. Подземни гаражи, осигуряващи удобство към всяко жилище. Лесен и широк достъп до сградите.

Комплексът е разположен в един от най-спокойните и същевременно комуникативни райони на София: Бърз достъп до бул. „Цариградско шосе“, Околовръстен път и бъдещи инфраструктурни подобрения. В близост до метростанция „Цариградско шосе“, автобусни линии и търговски обекти. На пешеходно разстояние има училища, детски градини, магазини, заведения и зелени площи. Тих вътрешен квартал, далеч от шумните булеварди, но с удобна градска свързаност.

Подходящи както за личен дом, така и за инвестиция с висока доходност. Качествено строителство от доказан инвеститор. Гъвкави схеми на плащане. Район с високо търсене и потенциал за покачване на цените.

Обади се СЕГА и цитирай този код 678265.

Никола Яначков
Консултант недвижими имоти
pin Пиши във Viber

Оферти от същата сграда

Често задавани въпроси

В какъв срок се издава данъчна оценка?

Коя е най-подходящата локация за търсене на къщи за продажба?

Как протича сделка за покупка на имот с ипотечен кредит?

Коя цена е определяща при покупка на имот?

Как да изберем брокер при продажба на апартамент?