153

Парцел/Терен за продажба, София, ID 685677

320 кв.м.
Карпузица
480 000 EUR
1 500 €/кв.м.

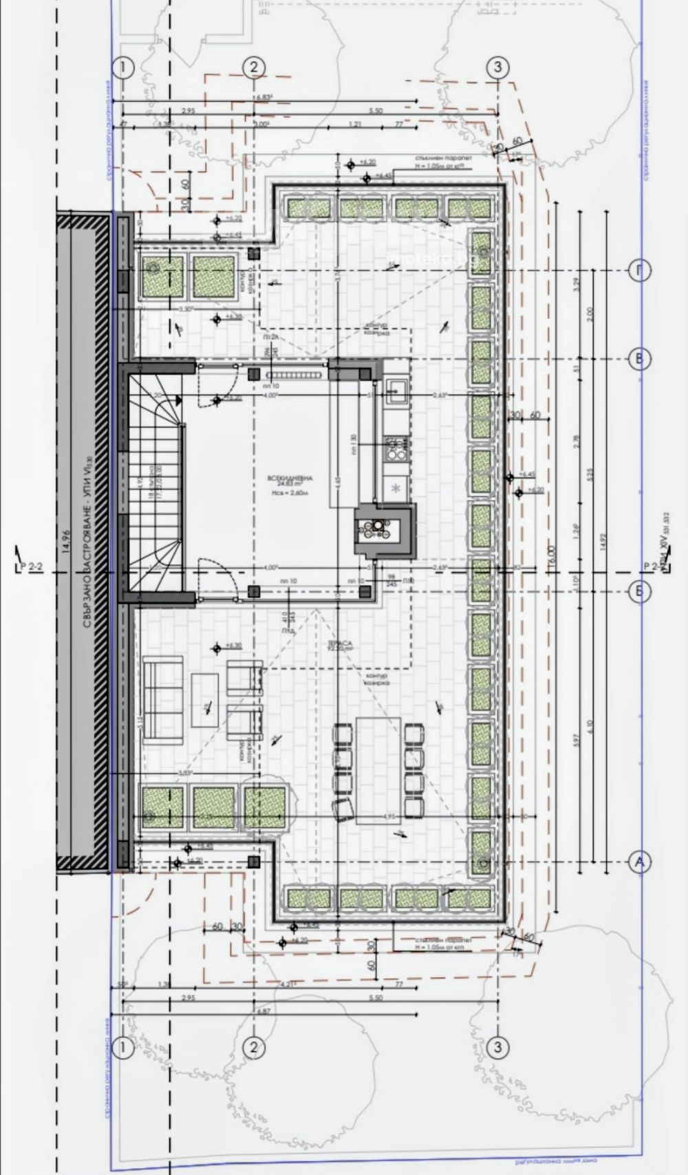
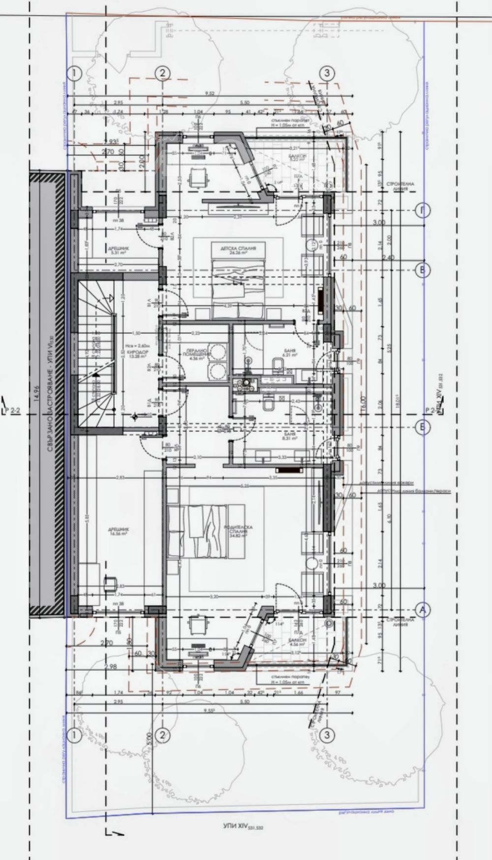
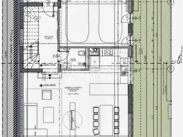
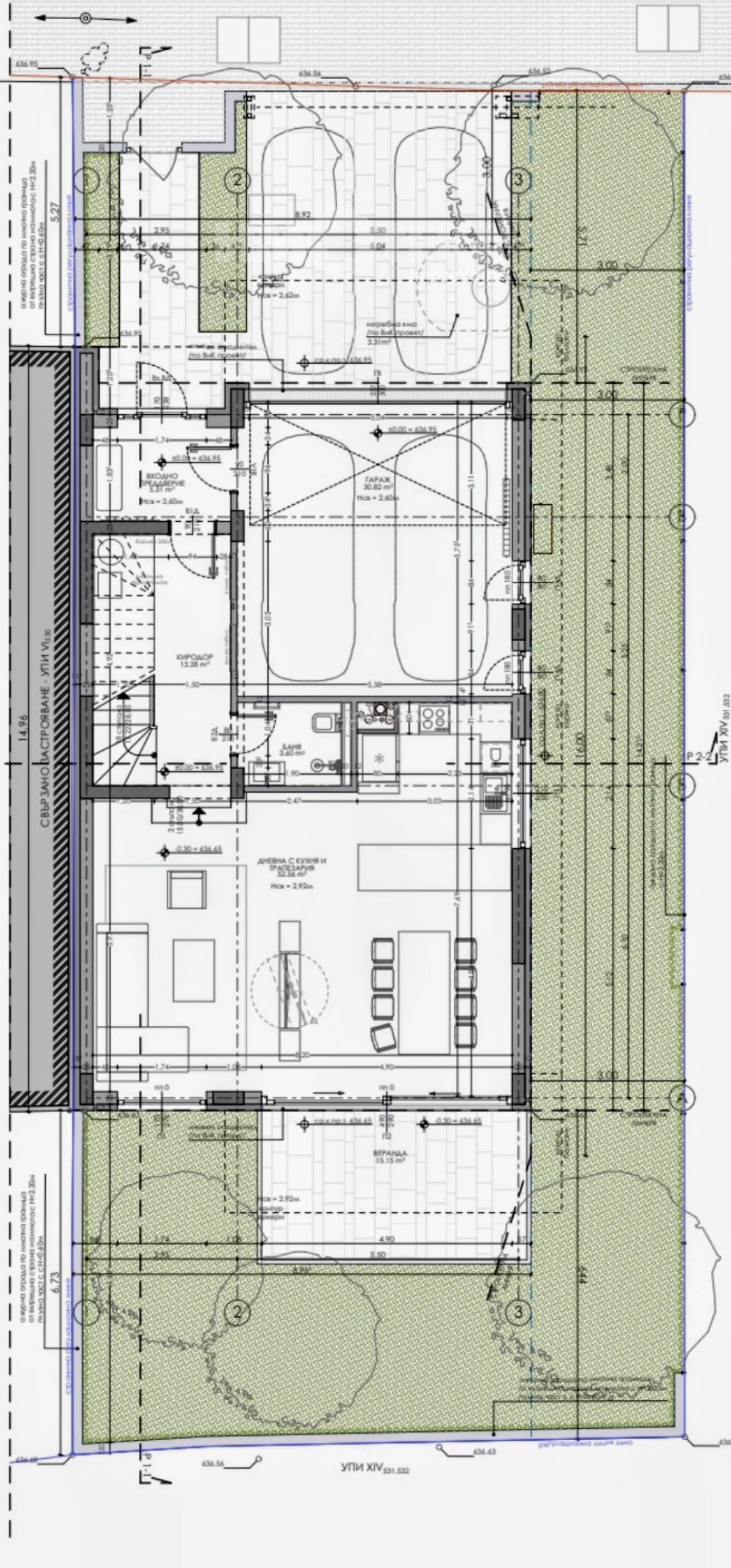
Парцел в кв. Карпузица, София, с площ 320 кв.м и отлична комуникативна локация. Имотът е равен и разполага с одобрен проект и всички изискуеми разрешителни за изграждане на еднофамилна двуетажна жилищна сграда с РЗП 418 кв.м. Сключен е договор със строителен надзор. Може да се стартира строителството веднага. Предвиден е двор с площ 200 кв.м. Разпределение: Първо ниво Дневна с кухня и трапезария в общо пространство, санитарен възел, сервизно помещение, гараж за два автомобила и две паркоместа пред него. Второ ниво Две спални със собствени бани и отделни дрешници тип будоар, два балкона и мокро помещение. Покривно ниво Покривна тераса с външна кухня, кът за релакс и изводи за джакузи. Покривът включва изводи за фотоволтаична система. Имотът ти дава готова концепция и пълна административна готовност за изграждане на модерен семеен дом.

Модерна нова еднофамилна сграда с изчистена архитектурна визия, функционално разпределение и просторни помещения с отлична осветеност. Проектът съчетава комфорт, енергийна ефективност и съвременни технологични решения. Предвидени са просторна покривна тераса, възможност за фотоволтаична система и удобства, отговарящи на висок стандарт на обитаване. Дом, който съчетава стил, практичност и дългосрочна стойност.

Карпузица е един от най-спокойните и зелени квартали в югозападна София. Районът съчетава тишина, чист въздух и нискоетажно застрояване с бърз достъп до основни булеварди, градски транспорт, училища и търговски обекти. Локацията е предпочитана от семейства заради баланса между уединение и удобна връзка с динамиката на града.

• Бърз достъп до транспорт – на пешеходно разстояние до парцела има автобусни линии и трамвайни спирки, които свързват квартала с центъра и други райони на София. Това дава удобство както за всекидневни пътувания, така и за връзки с основни булеварди. • Училища и детски градини – освен близкото 26 СУ "Йордан Йовков", районът предлага допълнителни учебни и детски заведения на няколко минути пеша.  • Медицински услуги в близост – болница “Райна Княгиня”, детска клиника и медицински център са на кратко разстояние, което е важно за семейства и ежедневни нужди. • Търговски и битови удобства на разстояние пеша – супермаркети, хранителни магазини, пекарни и дребни услуги са лесно достъпни без нужда от автомобил. • Близък парк и зелени площи – в квартала има малки зелени зони и близост до по-големи паркови пространства, подходящи за разходки и спорт на открито. • Развиваща се квартална среда – районът привлича ново строителство и инвестиции, което поддържа активност в пазара на имоти и потенциална бъдеща стойност. • Комбинация от тишина и достъп до градски удобства – въпреки спокойствието и ниската динамика в жилищната част, на няколко минути има активни услуги и ежедневни точки за обслужване.   

Обади се СЕГА и цитирай този код 685677.


Оферта от партньор на Имотека

Павлина Василева
Консултант недвижими имоти
pin Пиши във Viber

Често задавани въпроси

Какви са прогнозите за кварталите през 2025г.?

Как се прави анализ на пазара на недвижими имоти?

Към кого да се обърнем за данъчна оценка на имот?

Как протича сделка за покупка на имот с ипотечен кредит?

Коя е най-подходящата локация за търсене на къщи за продажба?