383

Двустаен апартамент за продажба, София, ID 665851

76.89 кв.м.
XXXXXXXXXX
Необзаведен
XXX EUR
XXX €/кв.м.

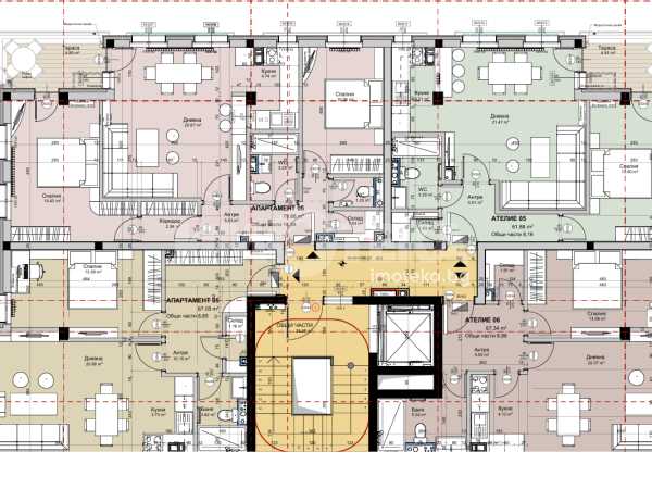
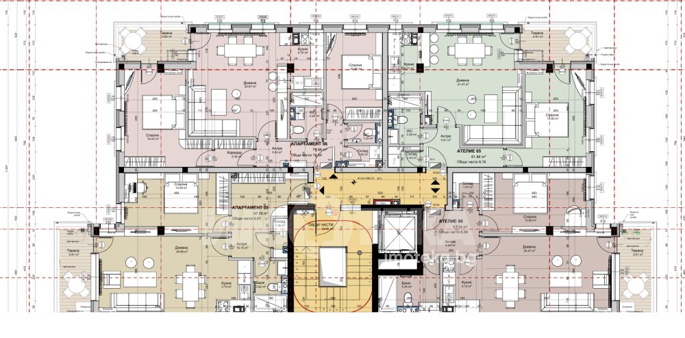
Ателие 6 с чиста жилищна площ 67.34кв.м., състоящ се от дневна с кухненски кът (26.49кв.м.), спалня (13.06кв.м.), баня с тоалетна (5.34кв.м.), складово помещение (1.91кв.м.) и тераса (5.81кв.м.) Модерен проект на терен от 573 кв.м, с удобна локация и функционално разпределение. 6 надземни и 1 подземно ниво 18 апартамента Офиси и гаражи на партера 16 подземни паркоместа, включително зони за хора с увреждания  

Сградата ще бъде със стоманобетонна конструкция, с укрепване чрез шлицови стени и фундаментна плоча с висока устойчивост. Ще бъдат положени топло- и хидроизолации по всички ключови участъци, а покривът ще бъде мансарден, скатен, с поцинковано покритие.

Сградата се намира на метри от метростанция Красно село, във вътрешна тиха уличка и с бърз достъп до центъра на града.

Обади се СЕГА и цитирай този код 665851.


Оферта от партньор на Имотека

Калина Жекова
Консултант недвижими имоти
pin Пиши във Viber

Оферти от същата сграда

За квартал Красно село, София

Красно село е утвърден жилищен квартал, разположен в югозападната част на София. На север той граничи с по-централните градски зони, на изток – с квартал „Славия“, на запад – с „Борово“, както и с по-отдалечени западни райони като „Павлово“ и „Овча купел“. 

 

Кварталът разполага със завършена транспортна свързаност благодарение на ключови булеварди като „Цар Борис III“, „Гоце Делчев“, „Тодор Каблешков“, както и намиращия се в близост бул. „България“. Общественият транспорт е добре организиран и включва трамвайни линии № 4, 5 и 15, автобуси № 63, 73, 83, 102, 204 и 260, тролейбусни линии №2 и 9, както и линия М3 на софийското метро с метростанция „Бул. Цар Борис III / Красно село“.

 

Образователната инфраструктура в Красно село е разнообразна и обхваща както общински, така и частни детски градини и училища. Сред детските заведения се открояват частните детски градини „Денива“ и „101 Защо“, както и ДГ №8 „Проф. д-р Елка Петрова“. За учениците в училищна възраст районът предлага редица учебни заведения, сред които 34 ОУ „Стою Шишков“, 36 СУ „Максим Горки“ и Частно начално училище „Милеа“.
Здравното обслужване на жителите е обезпечено чрез 20-то ДКЦ – София, както и от няколко медицински центъра, включително МЦ „Док Плюс“ и МЦ „Калимат“, които предоставят качествени медицински услуги.

 

Търговската инфраструктура в квартала е добре развита – по основните булеварди са разположени супермаркети, малки квартални магазини, денонощни обекти и аптеки. Значима търговска точка за района е покритият Кооперативен пазар „Красно село“, който предлага разнообразие от стоки за ежедневните нужди.

 

Районът се отличава с множество междублокови пространства и зелени площи, подходящи за отдих и разходки. В непосредствена близост се намира парк „Славия“, който предлага разнообразни възможности за спорт и активен начин на живот – фитнес център, зали за баскетбол и волейбол, както и зимна пързалка. В по-широкия южен периметър на квартала е разположен и Южният парк.

Жилищният фонд на Красно село е разнообразен и включва масивно тухлено строителство и ЕПК сгради, характерни за 70-те и 80-те години на миналия век, както и съвременно ново строителство с модерна архитектура и допълнителни удобства. Съчетанието от удобна локация, развита инфраструктура и разнообразни жилищни възможности утвърждава квартала като предпочитан избор за покупка на жилище.


На сайта на Имотека може да откриете обяви за разнообразни имоти с функционално разпределение в Красно село, които отговарят на различни бюджети и предпочитания. 

Нашите брокери недвижими имоти ще ви посрещнат с професионализъм и добро отношение. Професионалната помощ е от голямо значение, тъй като ние сме наясно с пазара. 

Тук може да се запознаете и с местоположението на офисите на ИМОТЕКА в София.

Често задавани въпроси

Какви са прогнозите за кварталите през 2025г.?

Как протича сделка за покупка на имот с ипотечен кредит?

Коя цена е определяща при покупка на имот?

В какъв срок се издава данъчна оценка?

Как да изберем брокер при продажба на апартамент?