5

Двустаен апартамент за продажба, София, ID 685483

85 кв.м.
Левски
Шпакловка и замазка
146 734 EUR
1 726 €/кв.м.

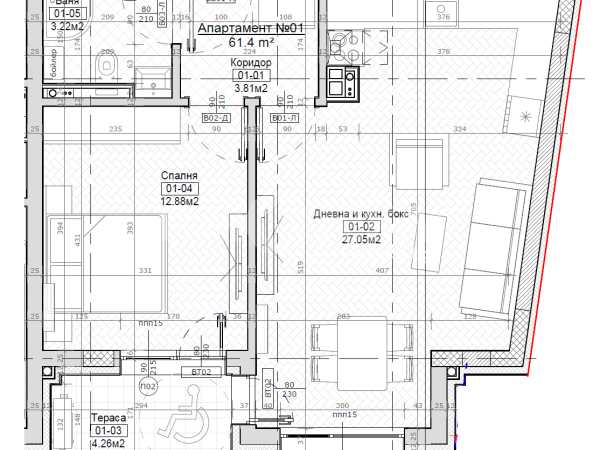
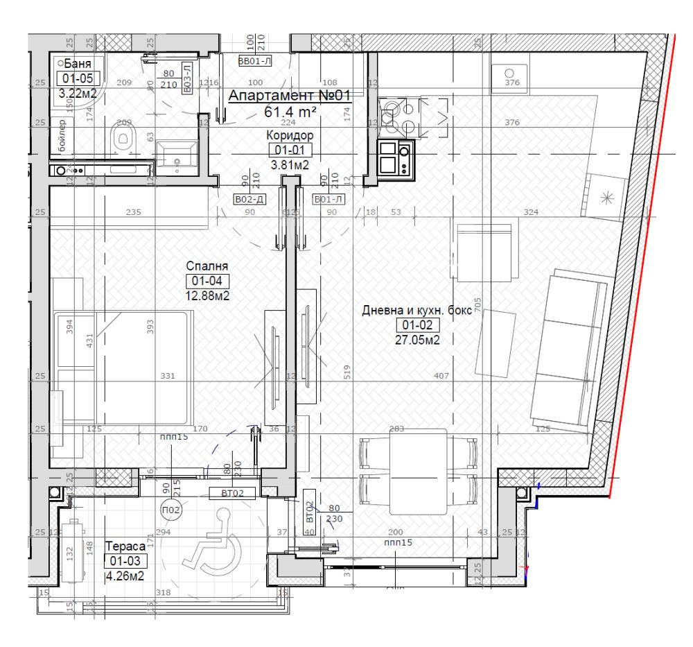
Апартамент 1 със склад 4. Двустаен апартамент на етаж втори, кота +3,20м. с РЗП- 84,33кв.м. и ЗП-61,40кв.м. Разпределение: антре, голяма дневна с кухненски бокс и трапезария-27,05кв.м. , спалня- 12,88кв.м. баня с тоалетна -3,22кв.м. и тераса-4,26кв.м. Налични ПМ и гаражи. Нова шестетажна, жилищна сграда в кв. Левски с 16 апартамента – 11 двустайни и 5 тристайни, с гаражи и паркоместа. Разработена е със сутерен, партер, три етажа и две мансардни нива. В подземното ниво са ситуирани гаражи и паркоместа. На партерното ниво има гаражи, жилище и открити паркоместа. Останалите етажи са решени с двустайни и тристайни апартаменти. Складове към всеки имот включени в цената. Предвидено отопление с климатици мултисплит система.

Качествена енергийно ефективна сграда с луксозни общи части. Изпълнява се с висок клас материали: Тухли Wienerberger, Топлоизолационна система BAUMIT, Шесткамерна PVC дограма с троен стъклопакет, Луксозни общи части. Паркоместа – 25 000 €; Гаражи – от 35 000 €

Комуникативна локация с бърз достъп до централните части на града, училища, детски градини, магазини и градски транспорт.

Район с изградена инфраструктура.

Обади се СЕГА и цитирай този код 685483.


Оферта от партньор на Имотека

Веска Георгиева
Консултант недвижими имоти
pin Пиши във Viber

Оферти от същата сграда

Често задавани въпроси

Какви са прогнозите за кварталите през 2025г.?

В какъв срок се издава данъчна оценка?

Коя е най-подходящата локация за търсене на къщи за продажба?

Как се прави анализ на пазара на недвижими имоти?

Как да изберем брокер при продажба на апартамент?