388

Тристаен апартамент под наем, София, ID 676768

101 кв.м.
Лозенец
Напълно обзаведен
800 EUR
8 €/кв.м.

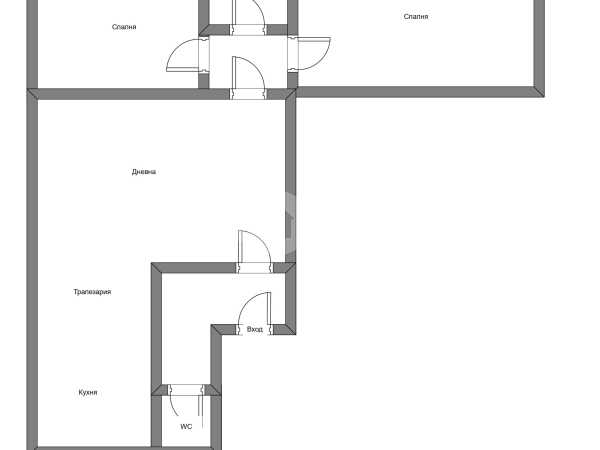
АДРЕС отдава се светъл и просторен тристаен апартамент под наем, разположен в една от най-предпочитаните части на София – кв. "Лозенец", в близост до Южен парк.  Етаж: висок 1 от 5 Отопление: климатик и конвектор Разпределение: - Хол с трапезария и кухненска част - напълно оборудвани - печка, фурна, хладилник, пералня, миялна, микровълнова  - 2 спални с  2 тераси  - Баня с тоалетна и отделно тоалетна

Сградата е с контролиран достъп.  

Намира се в близост до МОЛ Парк център, басейн Спартак  и Южен парк. Спокойна и зелена зона с бърз достъп до центъра В близост до метростанция Европейски съюз, спирки на тролеи и автобуси Учебни заведения - основно училище в близост  Множество магазини, заведения, детски градини и медицински центрове

* Много добро разпределение * просторен дневен тракт  * удобно местоположение * в близост до метро и Южен парк 

Обади се СЕГА и цитирай този код 676768.


Оферта от партньор на Имотека

Мария Вачковска
Консултант недвижими имоти

Сходни оферти

За квартал Лозенец, София и недвижимите имоти

Квартал Лозенец е утвърден квартал на София, разположен югоизточно от центъра. Застрояването на района започва в началото на миналия век, а днес той е разделен на Горен и Долен Лозенец. В граници е с кварталите Център, Иван Вазов, Хладилника, Изток и Кръстова вада. Част от Лозенец е позната като „Журналистическия квартал“, тъй като там са живели и творили редица български писатели, поети и общественици, включително Валери Петров, Михаил Андреев и Минчо Дилянов, чиито домове допринасят за културния профил на района.

Транспортната инфраструктура на Лозенец е добре развита посредством връзките с метростанции Джеймс Баучер, Европейски съюз и Витоша, както и основни пътни артерии като булевардите Черни връх, Арсеналски и Джеймс Баучер. Районът е обслужван от автобусни линии 88, 94, 102, 120, 604, тролейбуси 2 и 9, както и трамваи 10 и 15, осигуряващи бърза връзка с централните и ключови бизнес райони на града.

Жилищната среда в Лозенец предлага разнообразие от имоти – от традиционни кооперации с характерна архитектура, до съвременни луксозни комплекси. Горен Лозенец се отличава с наличието на дипломатически резиденции и престижни имоти, които оформят среда с висок стандарт на живот. Богатото озеленяване, просторните дворове и нискоетажните сгради утвърждават квартала като „зелената перла“ на София.

В района функционират училища, детски градини, търговски обекти и медицински центрове, включително Университетска болница „Лозенец“. В непосредствена близост се намират Южен парк, Paradise Center, болница Токуда, както и разнообразие от бизнес и търговски обекти.

Лозенец е предпочитан от  служители на международни компании, дипломати и семейства, които ценят централната локация, добрата инфраструктура и лесния достъп до административни и бизнес центрове. Районът е атрактивен както за дългосрочно живеене, така и за инвестиции, благодарение на стабилния пазар на недвижими имоти, високото качество на строителството и баланс между зеленина и предоставени удобства.

На сайта на Имотека може да откриете обяви за разнообразни имоти с функционално разпределение в Лозенец, които отговарят на различни бюджети и предпочитания. 

Ето и бързи връзки до типове имоти в продажба в квартал Лозенец:

>>  двустайни апартаменти в Лозенец, София
>>  тристайни апартаменти в Лозенец, София
>>  многостайни апартаменти в Лозенец, София
>>  търговски площи и офиси в Лозенец, София

 

Нашите брокери недвижими имоти ще ви посрещнат с професионализъм и добро отношение. Професионалната помощ е от голямо значение, тъй като ние сме наясно с пазара. 
Тук може да се запознаете и с местоположението на  офисите на ИМОТЕКА в София.

 

Често задавани въпроси

Коя е най-добрата локация за апартамент под наем - София?

Какви са предимствата на кварталите в центъра?

През кои квартали минава метрото в София?

Какво трябва да знам за депозита?

Трябва ли да се подписва договор за наем?