142

Двустаен апартамент за продажба, София, ID 686248

57 кв.м.
Люлин 2
Шпакловка и замазка
122 206 EUR
2 144 €/кв.м.

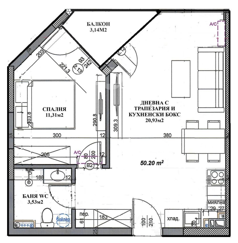
Двустаен апартамент в новострояща се сграда със собствен двор в Люлин 2. Апартаментът е разположен на етаж три от седем с разпределение: дневна -трапезария, кухненски бокс -20,93м2, спалня-11,31м2, баня с WC-3,53m2 и балкон-3,14м2. Към апартамента има и подземно паркомясто със складово помещение. Отлични транспортни връзки, изградена инфраструктура. Отоплението е предвидено на ТЕЦ.

Малка бутиков жилищна сграда със собствен двор.

Намира се в района на Люлин 2, близо до 90 СОУ. Район с изградена инфраструктура и отлични транстни връзки, на 10 минути от метростанция Люлин и в непосредствена близост до бъдеща метростанция.

Идеален както за живеене така и за инвестиция.

Обади се СЕГА и цитирай този код 686248.


Оферта от партньор на Имотека

Димитър Лазаров
Консултант недвижими имоти
pin Пиши във Viber

Сходни оферти

За квартал Люлин, София и недвижимите имоти

Люлин е разположен в западната част на София и представлява най-големия жилищен район на града, включващ 11 микрорайона с приблизително 100 000 жители. Изграждането му започва през 70-те години на XX век като районът е с ясно планирана инфраструктура и отделен център, което създава усещането за самостоятелен град в рамките на столицата.

Транспортната мрежа на Люлин е добре развита. Кварталът се обслужва от три метростанции по линия М1, „Люлин“, „Западен парк“ и „Сливница“, както и от автобусни линии 309, 310, 111, 108, 42, 43, 54, 82. В района преминават също тролейбусни линии 6 и 7 и трамвайна линия 8, което създава удобна връзка с центъра на София и останалите градски райони. Основните пътни артерии – бул. „Царица Йоанна“, бул. „Сливница“, бул. „Панчо Владигеров“ и бул. „Добринова скала“, осигуряват бърз автомобилен достъп както до центъра, така и към изходите на града.

 

Жилищният фонд е разнообразен, като в различните микрорайони се срещат панелни блокове от 70-те и 80-те години, ЕПК сгради, както и нови модерни комплекси с функционални разпределения. Това осигурява широк избор от имоти за различни потребители, от млади семейства и работещи професионалисти, до инвеститори, търсещи дългосрочна възвръщаемост.

 

На територията на квартала функционират държавни училища и общински детски градини, а жителите имат достъп до големи супермаркети, квартални магазини, кооперативния пазар, спортни комплекси и открити и закрити плувни басейни. Медицинското обслужване се осигурява от няколко поликлиники, многопрофилна болница и частни специализирани кабинети.

 

Люлин се отличава и с близостта до Западен парк, който предлага възможности за спорт, разходки и свободно време на открито.
Комбинацията от добре развита инфраструктура, разнообразен жилищен фонд, достъпни цени и удобна транспортна свързаност, утвърждава Люлин като един от най-активните и търсени райони на столицата за покупка на имоти, подходящи както за постоянно живеене, така и за инвестиционни цели.

На сайта на Имотека може да откриете обяви за разнообразни имоти с функционално разпределение в Люлин, които отговарят на различни бюджети и предпочитания. 

Нашите брокери недвижими имоти ще ви посрещнат с професионализъм и добро отношение. Професионалната помощ е от голямо значение, тъй като ние сме наясно с пазара. 

Тук може да се запознаете и с местоположението на офисите на ИМОТЕКА в София.

Често задавани въпроси

Как протича сделка за покупка на имот с ипотечен кредит?

Каква е цената на квадратен метър за София?

Какво представлява данъчната оценка?

Какви са прогнозите за кварталите през 2025г.?

Коя е най-подходящата локация за търсене на къщи за продажба?