384

Двустаен апартамент за продажба, София, ID 672282

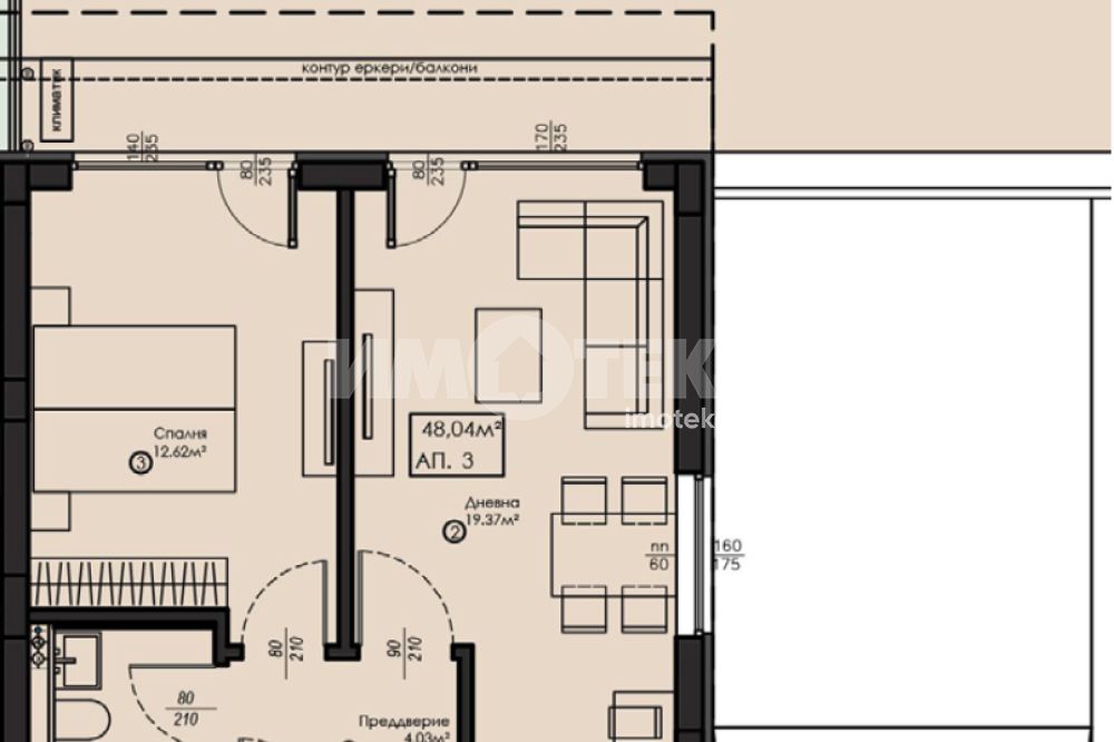
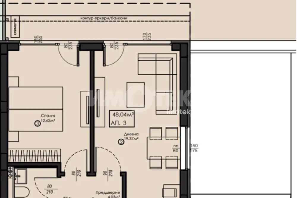
85 кв.м.
Малинова Долина
Шпакловка и замазка
137 900 EUR
1 622 €/кв.м.

Открийте Вашия Нов Дом в 'КАСА ВИВА' Сърцето на кв.Малинова долина! Мечтаете ли за модерен и луксозен дом, който предлага удобствата на градския живот и спокойствието на природата? Каса Вива е Вашият перфектен избор!

Тази изключителна сграда се отличава с впечатляваща и модерна фасада, изпълнена с висококачествени HPL плоскости за луксозен и съвременен облик, съчетани с първокласна мазилка Baumit. Тази комбинация не само гарантира несравнима издръжливост и отлична топло- и звукоизолация като част от иновативна вентилируема фасадна система, но и осигурява оптимален комфорт и по-ниски разходи за енергия.

Апартаментите ще се издават спрямо БДС: на шпакловка и замазка, ел. инсталация до ключ, ВиК до тапа, PVC дограма петкамерна цвят антрацит(четири сезона стъкло), луксозна входна блиндирана врата. *Монолитна стоманобетонна конструкция, външни стени широкоформатни керамични тухли , топлоизолация и мазилка пакет на BAUMIT 10см и вентилируема фасада с каменна вата.Асансьор испански ОРОНА. *Завършване на строителството 2028г. 

Обади се СЕГА и цитирай този код 672282.


Оферта от партньор на Имотека

Никола Даскалов
Консултант недвижими имоти
pin Пиши във Viber

Оферти от същата сграда

За квартал Малинова долина, София и недвижимите имоти

Малинова долина е южен квартал на София с динамично развиваща се жилищна среда, съчетаващ организирани жилищни зони и бърз достъп до градските централни части. Районът се намира непосредствено до Студентски град, на запад от Младост 4 и близо до Околовръстен път, което осигурява удобна връзка с останалата част на столицата. Кварталът се обслужва от автобусни линии 102, 111, 69, 70, Х9 и електробус E123, което осигурява бързо придвижване до центъра, търговски и офис райони. Планирано е продължение на метролиния до Студентски град, чийто маршрут ще преминава през Малинова долина, като допълва съществуващите транспортни възможности.


Строителният профил на квартала включва комбинация от традиционни еднофамилни къщи и модерни жилищни комплекси, което създава балансирана и организирана градска среда. В източната част на квартала се изграждат нискоетажни жилищни сгради до четири етажа с озеленени дворове и контрол на достъпа, предлагайки функционална и сигурна среда за живеене. Новият градоустройствен план предвижда подобрени строителни характеристики, с повече зелени площи и внимателно планирано улично пространство между сградите.


Образователната инфраструктура също се развива, като в района вече функционира Общинска детска градина № 190. Допълнително има няколко частни детски заведения с разнообразни образователни програми. Въпреки че в Малинова долина все още няма училища, близостта до Студентски град и Младост 4 осигурява лесен достъп до учебни заведения и извънкласни занимания.


Малинова долина привлича както жилищни купувачи, търсещи удобна локация, зелени площи и модерни комплекси, така и инвеститори, които оценяват активното ново строителство и съотношението между цена и качество, правейки квартала перспективен за инвестиционни покупки.

На сайта на Имотека може да откриете обяви за разнообразни имоти с функционално разпределение в Малинова долина, които отговарят на различни бюджети и предпочитания. 

Ето и бързи връзки до типове имоти в продажба в квартал Малинова долина:

>>  едностайни апартаменти в Малинова долина, София
>>  двустайни апартаменти в Малинова долина, София
>>  тристайни апартаменти в Малинова долина, София
>>  многостайни апартаменти в Малинова долина, София
 

Нашите брокери недвижими имоти ще ви посрещнат с професионализъм и добро отношение. Професионалната помощ е от голямо значение, тъй като ние сме наясно с пазара. 
Тук може да се запознаете и с местоположението на офисите на ИМОТЕКА в София.

 

Често задавани въпроси

Какво представлява данъчната оценка?

Каква е цената на квадратен метър за София?

През кои квартали минава метрото в София?

Коя е най-подходящата локация за търсене на къщи за продажба?

Коя цена е определяща при покупка на имот?