850

Двустаен апартамент за продажба, София, ID 615379

55.37 кв.м.
Манастирски ливади - изток
Шпакловка и замазка
163 342 EUR
2 950 €/кв.м.

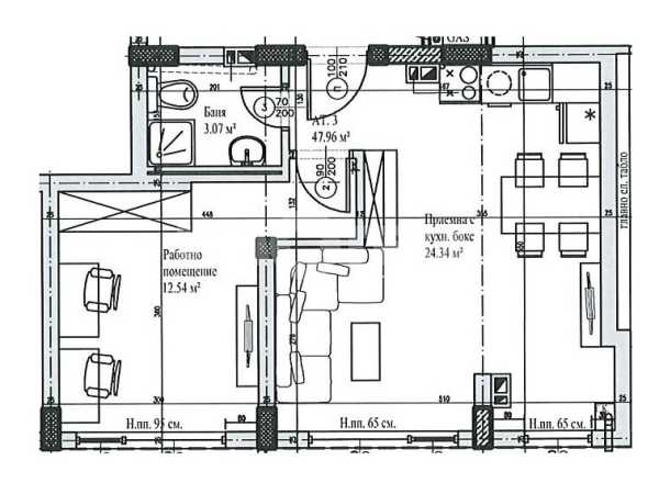
  Двустайно жилище,  на партерен етаж, със застроена площ от 47,96 кв.м., състоящо се от дневна с кухненски бокс, спалня и баня с тоалетна.

 Сграда пред Акт 16 с монолитна стоманобетонна конструкция. Външни ограждащи стени от тухли "Wienerberger Porotherm". Вътрешни преградни стени от тухли "Wienerberger Porotherm". Фасадата е с интегрирана топлоизолационна система, съставена от BAUMIT  и крайно покритие от мазилка BAUMIT. Партера ще бъде облицован с камък. Ще има акценти от HPL. Трикамерна PVC дограма със стъклопакет тип четири сезона. Блиндирани входни врати на "Солид". Водопроводът е изграден от полипропиленови тръби и канализация от PVC тръби. Изцяло изградена електрическа инсталация. Изградено окабеляване за кабелна телевизия, телефон, интернет, звънчева и домофонна инсталация. Изградени трасета за вентилация за подземни гаражи, тоалетни, бани и кухненски боксове. Изградени трасета за отопление във всяка стая. Газова инсталация до тапа. Асансьорите са "Otis". Общите части са с гранит и гранитогрес, парапетите са по проект, а стените и таваните са с интериорна боя. Изцяло изградена вертикална планировка, съгласно утвърден проект за паркоустройство и благоустройство. Шпакловка и замазка.

Намира се в кв. "Манастирски ливади - изток", в близост до бул. "България", МОЛ "България", непосредствено до бъдещия "Линеен парк Манастирски ливади". Бърз достъп до Околовръстен път и изходите на столицата.

Ново строителство, на удобна локация, с бърз достъп до всички точки на града В подножието на планина Витоша Изключително тихо и озеленено място

Обади се СЕГА и цитирай този код 615379.


Оферта от партньор на Имотека

Наталия Милчева
Консултант недвижими имоти
pin Пиши във Viber

Сходни оферти

Често задавани въпроси

Как протича сделка за покупка на имот с ипотечен кредит?

Колко струва една оценка на имот?

Към кого да се обърнем за данъчна оценка на имот?

Как се прави анализ на пазара на недвижими имоти?

В какъв срок се издава данъчна оценка?

За квартал Манастирски ливади, София и недвижимите имоти

Манастирски ливади е динамично развиващ се квартал в южната част на София, разположен непосредствено до природен парк Витоша. Районът предлага съвременна градска среда, разнообразни удобства за живеене и удобен достъп до центъра на града, подпомаган от добре развита мрежа на обществения транспорт.

Границите на квартала включват бул. „България“ на запад, ул. „Тодор Каблешков“ на север, кв. Кръстова вада на изток и Околовръстен път на юг. Бул. „България“ осигурява директна връзка с централните части на София, а районът се обслужва от автобусни линии 64, 76, 204 и 304, трамвайни линии 7 и 27, тролейбуси 7 и 8, както и електробусни линии E73 и E74. От 2023 г. функционира и система за електрически автобуси по заявка, интегрирана в градския транспортна мрежа.

Жилищното строителство в квартала е активно и включва нискоетажни комплекси с модерна архитектура, подземни паркинги и поддържани общи пространства. Манастирски ливади привлича предимно млади професионалисти и семейства, като същевременно е и инвестиционно интересен заради баланса между цена и качество на имотите.

За подобряване на зелените площи е разработен идеен проект за изграждане на линеен парк в източната част на квартала, предвиждащ пешеходни и велосипедни маршрути, зони за спорт и отдих, което ще допринесе за по-функционална и устойчива градска среда.

Манастирски ливади предлага разнообразна удобства за своите жители и гости. Тук се намира Bulgaria Mall, супермаркети, пазар „Борово“, фитнес и уелнес центрове, медицински услуги, салони за красота и развлекателни зони. Районът разполага и с модерни бизнес сгради като Bellissimo и Astra, което го прави привлекателен както за живеене, така и за работа.

На сайта на Имотека може да откриете обяви за разнообразни имоти с функционално разпределение в Манастирски ливади, които отговарят на различни бюджети и предпочитания. 

Ето и бързи връзки до всички типове имоти в продажба в квартал Манастирски ливади:

>>   двустайни апартаменти в Манастирски ливади, София
>>   тристайни апартаменти в Манастирски ливади, София
>>   многостайни апартаменти в Манастирски ливади, София
>>   офиси и търговски площи в Манастирски ливади, София
 

Нашите брокери недвижими имоти ще ви посрещнат с професионализъм и добро отношение. Професионалната помощ е от голямо значение, тъй като ние сме наясно с пазара. 

Тук може да се запознаете и с местоположението на офисите на ИМОТЕКА в София.