139

Тристаен апартамент за продажба, София, ID 669093

129 кв.м.
XXXXXXXXXX
Шпакловка и замазка
XXX EUR
XXX €/кв.м.

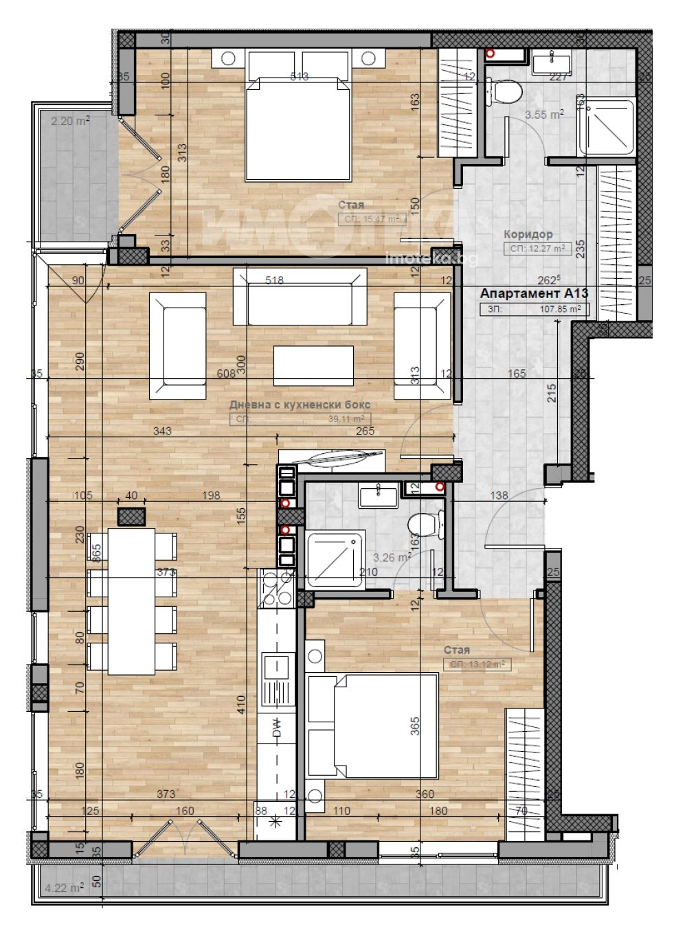
На метри от Южен парк! Просторен тристаен апартамент на етаж ШЕСТИ с разпределение: антре, голяма дневна с кухненски бокс и трапезария - 39.11м2, две спални- 13.15м2 и 15.47м2, две бани с тоалетни и две тераси. Жилището е с РЗП -128,09м2 и ЗП - 107,85м2. Отопление ГАЗ.  Възможност за покупка на ПМ. Цена без ддс. Към апартамента има и мазе с площ от 2,90м2 , находящо се в сутерена на сградата на отделна цена. Модерна жилищна сграда в една от най - предпочитаните части на София – Манастирски ливади – Изток, само на минути пеша от Южен парк и бул. "Тодор Каблешков". Сградата е проектирана с внимание към детайла, с елегантна архитектура и високо качество на строителството. Разнообразие от  двустайни и тристайни жилища с оптимални разпределения.  Апартаментите впечатляват с просторни помещения, класическо разпределение и стаи с изчистени прави ъгли, осигуряващи максимално удобство при обзавеждане.  Модерна фасада с топлоизолация и качествени материали. Избор на паркоместа. 

Красива нова сграда, висок клас строителни дейности.

Локацията е привлекателна и се характеризира с красива среда, доминирана от класни сгради с ниска етажност.  Позиционирана на тиха улица в близост до Южен парк, лесен достъп до бул. „Тодор Каблешков“ и бул. „България“. Сградата е в непосредствена близост до магазин Лидъл и ДАР, Т Маркет, училища и детски градини.

На метри от Южен парк. Висок инвестиционен потенциал, апартаментите са подходящи, както за лично ползване, така и за отдаване под наем, престижен и бързоразвиващ се квартал с изградена инфраструктура.

Обади се СЕГА и цитирай този код 669093.


Оферта от партньор на Имотека

Веска Георгиева
Консултант недвижими имоти
pin Пиши във Viber

Оферти от същата сграда

За квартал Манастирски ливади, София и недвижимите имоти

Манастирски ливади е динамично развиващ се квартал в южната част на София, разположен непосредствено до природен парк Витоша. Районът предлага съвременна градска среда, разнообразни удобства за живеене и удобен достъп до центъра на града, подпомаган от добре развита мрежа на обществения транспорт.

Границите на квартала включват бул. „България“ на запад, ул. „Тодор Каблешков“ на север, кв. Кръстова вада на изток и Околовръстен път на юг. Бул. „България“ осигурява директна връзка с централните части на София, а районът се обслужва от автобусни линии 64, 76, 204 и 304, трамвайни линии 7 и 27, тролейбуси 7 и 8, както и електробусни линии E73 и E74. От 2023 г. функционира и система за електрически автобуси по заявка, интегрирана в градския транспортна мрежа.

Жилищното строителство в квартала е активно и включва нискоетажни комплекси с модерна архитектура, подземни паркинги и поддържани общи пространства. Манастирски ливади привлича предимно млади професионалисти и семейства, като същевременно е и инвестиционно интересен заради баланса между цена и качество на имотите.

За подобряване на зелените площи е разработен идеен проект за изграждане на линеен парк в източната част на квартала, предвиждащ пешеходни и велосипедни маршрути, зони за спорт и отдих, което ще допринесе за по-функционална и устойчива градска среда.

Манастирски ливади предлага разнообразна удобства за своите жители и гости. Тук се намира Bulgaria Mall, супермаркети, пазар „Борово“, фитнес и уелнес центрове, медицински услуги, салони за красота и развлекателни зони. Районът разполага и с модерни бизнес сгради като Bellissimo и Astra, което го прави привлекателен както за живеене, така и за работа.

На сайта на Имотека може да откриете обяви за разнообразни имоти с функционално разпределение в Манастирски ливади, които отговарят на различни бюджети и предпочитания. 

Ето и бързи връзки до всички типове имоти в продажба в квартал Манастирски ливади:

>>   двустайни апартаменти в Манастирски ливади, София
>>   тристайни апартаменти в Манастирски ливади, София
>>   многостайни апартаменти в Манастирски ливади, София
>>   офиси и търговски площи в Манастирски ливади, София
 

Нашите брокери недвижими имоти ще ви посрещнат с професионализъм и добро отношение. Професионалната помощ е от голямо значение, тъй като ние сме наясно с пазара. 

Тук може да се запознаете и с местоположението на офисите на ИМОТЕКА в София.

Често задавани въпроси

Какво можем да очакваме от пазара на имоти през 2025 г.?

Коя цена е определяща при покупка на имот?

Какви са прогнозите за кварталите през 2025г.?

Как протича сделка за покупка на имот с ипотечен кредит?

Как се прави анализ на пазара на недвижими имоти?