40

Парцел/Терен за продажба, София, ID 690169

947 кв.м.
Нови Искър
169 000 EUR
178 €/кв.м.

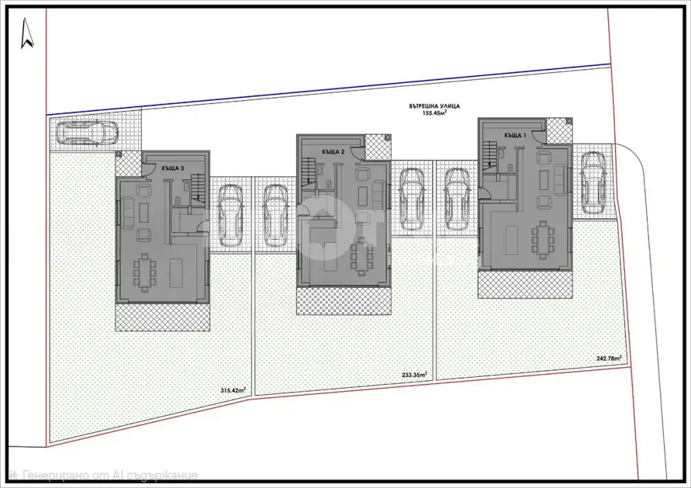
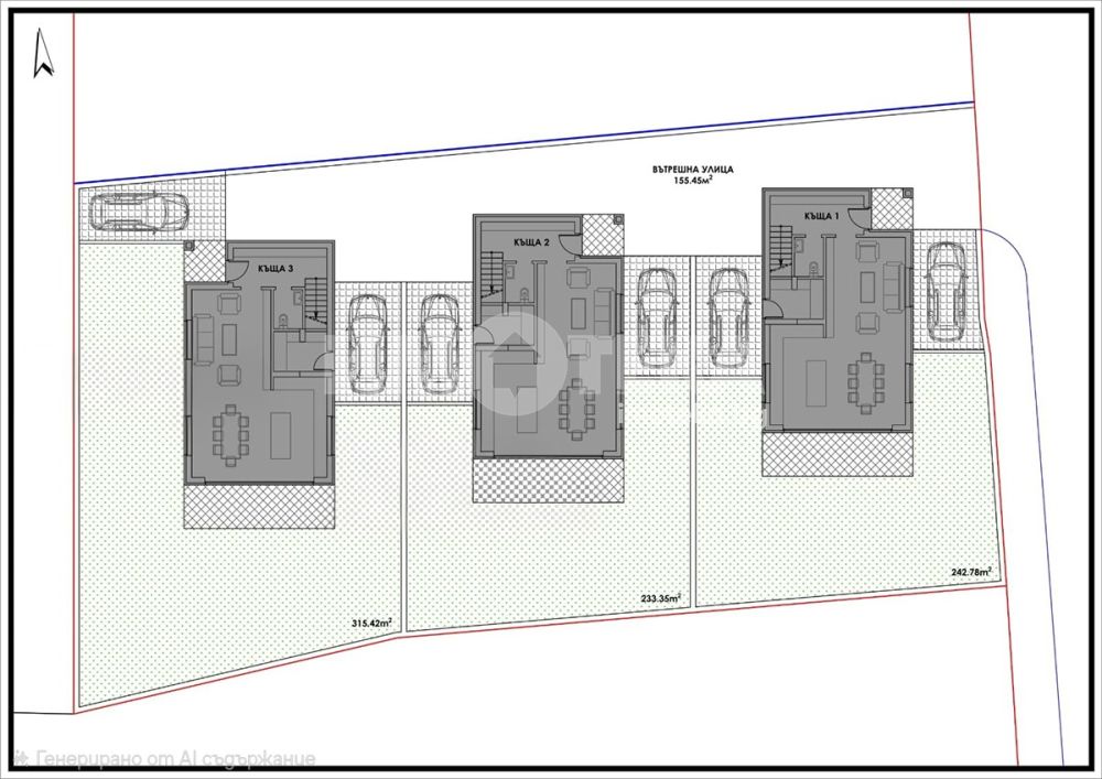
Предлагаме за продажба на урегулиран поземлен имот с площ от 947 кв.м, разположен в гр. Нови Искър. Парцелът е с лице към улица, осигуряващо лесен достъп и отлична комуникация. Имотът разполага с издадена виза за проектиране на три еднофамилни жилищни сгради, кето го прави изключително подходящ както за инвестиция, така и за реализиране на жилищен проект. Парцелът се намира в тиха и развиваща се зона с бърз достъп до София, подходящ за целогодишно живеене. Основни харктеристики: Площ: 947 кв.м Статут: УПИ( в регулация) Лице към улица Виза за проектиране на 3 къщи Ток - наличен Вода и канализация - налични Газ - няма

Одобрен идеен проект за три двуетажни жилищни къщи, всяка приблизително 200 м² с паркинг за 2 автомобила.

гр.Нови Искър, до спирка на градски транспорт.      

Обади се СЕГА и цитирай този код 690169.


Оферта от партньор на Имотека

Петър Павлов
Консултант недвижими имоти
pin Пиши във Viber

Сходни оферти

Често задавани въпроси

Към кого да се обърнем за данъчна оценка на имот?

Какви са прогнозите за кварталите през 2025г.?

Как да изберем брокер при продажба на апартамент?

Коя цена е определяща при покупка на имот?

Колко струва една оценка на имот?