9

Двустаен апартамент за продажба, София, ID 690152

79 кв.м.
Обеля 2
Шпакловка и замазка
121 132 EUR
1 533 €/кв.м.

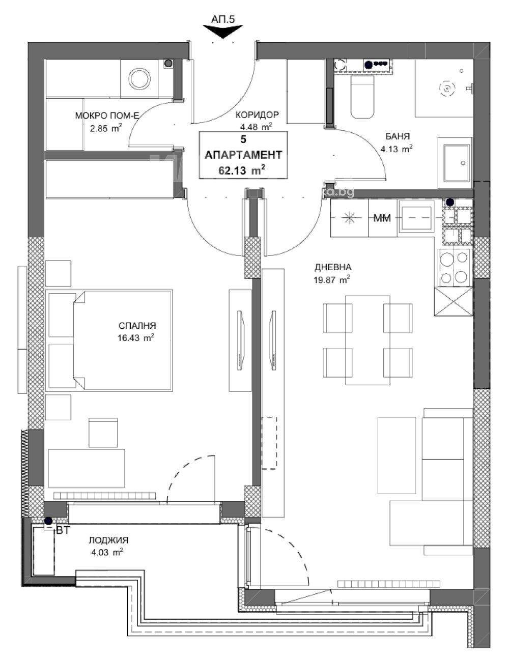
Без комисион от купувача. Гъвкави схеми на плащане. Цените са без ДДС. Двустаен апартамент с РЗП- 78,15м², ЗП-62,13м² с включен склад 5 -4,42м². Разпределение: коридор, дневна с кухненски бокс и трапезария, спалня, баня с тоалетна, мокро помещение, лоджия. Отопление ТЕЦ. Изложение южно. Съвременен жилищен комплекс от затворен тип с контролиран достъп, създаден да осигури спокойствие, сигурност и качествен начин на живот. Проектът се отличава с модерна визия, висок клас строителство и добре планирана среда, съчетаваща функционалност и удобство за ежедневието. Отоплението е предвидено на ТЕЦ. Жилищата ще бъдат с висок клас дограма с троен стъклопакет. Общите части са луксозно завършени с гранит,  висок клас асансьор.  Сградата е на 8 етажа с РЗП-5 279 кв.м. върху които са разположени: 47 апартамента, паркоместа и гаражи. Етапи на строителство: АКТ 14 – декември - 2026 г. АКТ 15 – ноември - 2027 г. АКТ 16 – декември- 2027 г. Схеми на плащане: 30% на ПД; 30% на АКТ-14; 30% на АКТ-15; 10% на АКТ-16 20 %на ПД; 80% след АКТ16 Всички обекти в сградата се предлагат БЕЗ КОМИСИОН ОТ КУПУВАЧА на цени на ИНВЕСТИТОРА.

Модерна жилищна сграда с окачена фасада и изпълнена с висококачествени материали, гарантиращи естетика, енергийна ефективност и дълготрайност.

Отлична локация за района, удобен транспорт: Метростанция“Обеля“ на 5 минути. Трамвай №6, Автобуси №30,31,41,26 по бул.“Ломско шосе“.  

Обеля-2 е бързоразвиващ се квартал с добре изградена инфраструктура. В близост до сградата има:  Детски градини: ДГ 82“Джани Родари“; ДГ 5 . Училища: ЧОУ “ Дружба“; ЧПГ “ Дружба“;“ 140СУ “Иван Богоров“ . Медицински услуги: 30-ти ДКЦ, 16-та Стоматологична поликлиника, аптеки. Магазини и услуги: Супермаркет “Т Маркет“, Хипермаркет “БИЛА“ , банки, заведения, бензиностанции и др. Спорт и почивка: Спортен център „Кристал“.

Обади се СЕГА и цитирай този код 690152.


Оферта от партньор на Имотека

Веска Георгиева
Консултант недвижими имоти
pin Пиши във Viber

Оферти от същата сграда

Често задавани въпроси

Каква е цената на квадратен метър за София?

Как протича сделка за покупка на имот с ипотечен кредит?

Коя цена е определяща при покупка на имот?

В какъв срок се издава данъчна оценка?

Как да изберем брокер при продажба на апартамент?