111

Двустаен апартамент за продажба, София, ID 679748

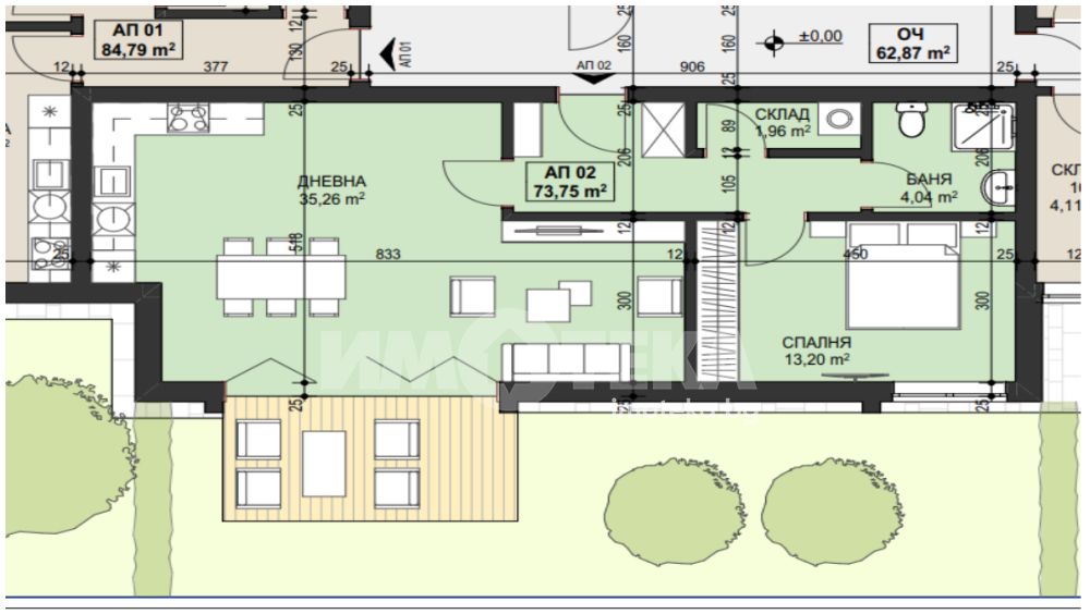
88 кв.м.
Славия
Шпакловка и замазка
184 000 EUR
2 091 €/кв.м.

Представяме ви голям двустаен апартамент с изцяло южно изложение. Жилището разполага с дневна с кухненски бокс, спалня , баня с тоалетна, склад или мокро помещение и веранда със самостоятелен двор, за който не се дължи допълнително плащане. Имота може да се преустрои лесно в тристаен апартамент.  В продажната цена е включено мазе на партерно ниво с прозорец. Метростанция на минута пешеходно, спирки на градски транспорт в близост. Опция за покупка на паркомясто на отделна цена.

Тухлена сграда на четири етажа с малък брой апартаменти, настоящ етап акт 15.

Обади се СЕГА и цитирай този код 679748.

Никола Яначков
Консултант недвижими имоти
pin Пиши във Viber

Сходни оферти

Често задавани въпроси

Към кого да се обърнем за данъчна оценка на имот?

Как се прави анализ на пазара на недвижими имоти?

Каква е цената на квадратен метър за София?

Как протича сделка за покупка на имот с ипотечен кредит?

Коя е най-подходящата локация за търсене на къщи за продажба?