52

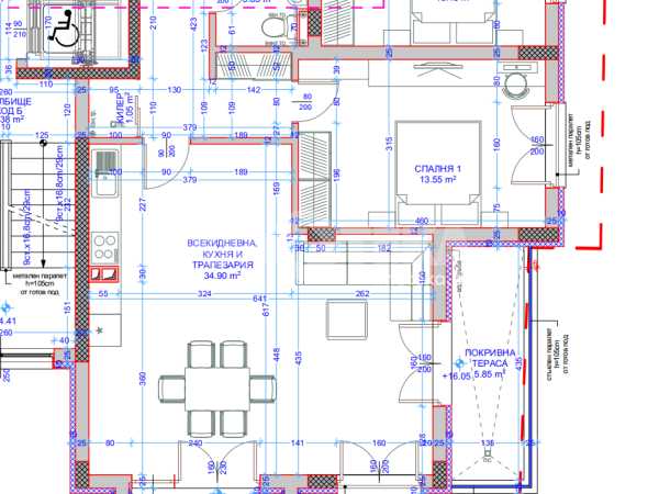
Двустаен апартамент за продажба, Варна, ID 686788

104 кв.м.
Аспарухово
Шпакловка и замазка
187 452 EUR
1 802 €/кв.м.

НОВО! Стартираме продажбата на нов жилищен проект, в центъра на кв.Аспарухово. Луксозно строителство, разсрочено плащане. Разгледайте тук проекта за двустаен апартамент, с отлични параметри!

Нова сграда, с голям партерен магазин. Подземни паркоместа.

В центъра на кв.Аспарухово

Разсрочено плащане, отлична локация!

Обади се СЕГА и цитирай този код 686788.


Оферта от партньор на Имотека

Красимира Милчева
Консултант недвижими имоти
pin Пиши във Viber

Оферти от същата сграда

За квартал Аспарухово, Варна и недвижимите имоти

Квартал Аспарухово се намира в южната част на Варна и представлява ясно обособена градска зона с развита жилищна и обществена инфраструктура. Районът е отделен от централната част на града чрез Аспаруховия мост, граничи с местностите Галата и Боровец и разполага с директен излаз към Варненския залив.

 

Връзката на кваратала с останалите части на Варна се осъществява основно чрез Аспаруховия мост, който е ключова транспортна артерия към центъра и северните квартали на града. Общественият транспорт е добре организиран и включва автобусни линии №10, 12, 17, 55 и 88, осигуряващи редовни връзки с централната градска зона и останалите райони.

Жилищната среда в квартала е разнообразна. Тук се срещат панелни жилищни блокове, изградени през 70-те и 80-те години, тухлени кооперации, както и еднофамилни къщи. През последните години се отчита повишен интерес към ново строителство, включително по-малки жилищни сгради и комплекси с модерна визия, особено в районите с морска панорама.

 

Образователната инфраструктура в Аспарухово е добре развита. На територията на квартала функционират основни и средни училища като ОУ „Христо Ботев“ и СУ „Любен Каравелов“, както и няколко общински детски градини и ясли.

 

Здравното обслужване в района е осигурено чрез ДКЦ Аспарухово, медицински центрове, специализирани кабинети и аптеки, разположени по основните улици и жилищни зони. В рамките на кратко пътуване са достъпни и големите болнични заведения на Варна, сред които МБАЛ „Св. Анна“, УМБАЛ „Св. Марина“, ДКЦ 1 „Света Клементина“ и други.

 

Търговската и обслужваща инфраструктура в квартала е добре представена чрез супермаркети, квартални магазини, аптеки, банки и заведения. Налични са и спортни съоръжения, фитнес зали и различни обществени услуги, които покриват ежедневните потребности на жителите.

 

Едно от основните предимства на квартала е Аспаруховият парк – един от най-големите паркове във Варна, предлагащ отлични условия за разходки, спорт и отдих. Допълнително предимство е наличието на плажна и крайбрежна зона, което значително повишава привлекателността на района и качеството на живот.

 

Комбинацията от самостоятелно оформена градска структура, добра транспортна достъпност, разнообразен жилищен фонд и пряк достъп до морска и зелена среда утвърждава квартал Аспарухово като стабилен и предпочитан район както за постоянно живеене, така и за инвестиции в жилищни имоти във Варна.
 

На сайта на Имотека може да откриете обяви за разнообразни имоти с функционално разпределение в квартал Аспарухово на Варна, които отговарят на различни бюджети и предпочитания. 

Нашите брокери недвижими имоти ще ви посрещнат с професионализъм и добро отношение. Професионалната помощ е от голямо значение, тъй като ние сме наясно с пазара. 

Тук може да се запознаете и с местоположението на офисите на ИМОТЕКА във Варна.

 

Популярни търсения за имоти ново строителство във Варна:

>>   Двустайни апартаменти ново строителство
>>   Тристайни апартаменти ново строителство
>>   Едностайни апартаменти ново строителство
>>   Многостайни апартаменти ново строителство
>>   Къщи ново строителство

Често задавани въпроси

Как да изберем брокер при продажба на апартамент?

Колко струва една оценка на имот?

Към кого да се обърнем за данъчна оценка на имот?

Как протича сделка за покупка на имот с ипотечен кредит?

Коя цена е определяща при покупка на имот?