261

Двустаен апартамент за продажба, Варна, ID 658634

75 кв.м.
Изгрев
Шпакловка и замазка
122 990 EUR
1 640 €/кв.м.

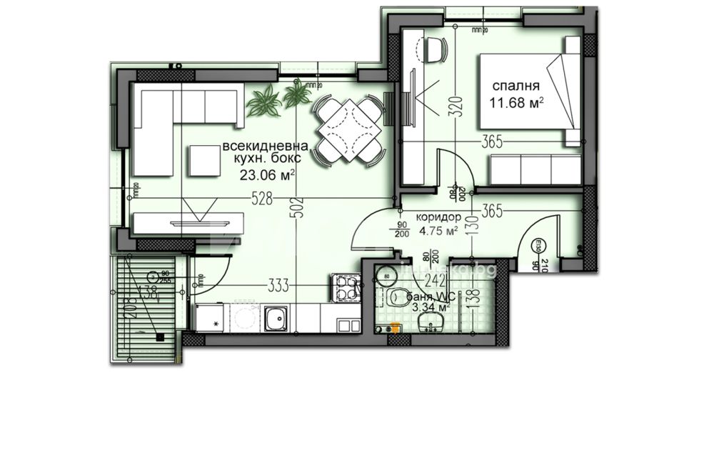
НОВА НАМАЛЕНА ЦЕНА!!! ИМОТЕКА предлага  двустаен апартамент в сграда с Акт 14, разположен на 2-ри етаж в новострояща се жилищна сграда в кв.'Изгрев'. Имотът е с площ 75 кв.м. Състои се от: входно антре, дневна с кухненска част и трапезария, спалня, баня с тоалет, тераса, ведно с прилежащо избено помещение. За ваше улеснение сме приложили схема на разпределението. Жилището се издава в степен на завършеност по БДС: под - циментова замазка, стени - шпакловка, ПВЦ дограма на прозорците (шесткамерна KMG), блиндирана входна врата, монтирани ключове, контакти, фасунги.    Забележка: приложените снимки показват вида и степента на завършване на имота. За ваше улеснение прилагаме схема с разпределението.

Общите части ще бъдат луксозно завършени: противопожарни входни врати, 10 см топлоизолация, алуминиеви парапети. Дограмата на прозорците ще е REHAU- 5 камерна, с 24 мм топлоизолиращ стъклопакет Energy. Стените ще са изцяло тухлени (тухли Climaton). Висок клас изпълнение. 

Сградата се намира на много комуникативно място, на около 300 м от бул. Христо Смирненски, в един от най-спокойните и тихи райони - ж.к.Изгрев. Отлична инфраструктура и изцяло асфалтов достъп до имота. В близост се намира Технически университет, училища, детски градини, площадки, заведения, спортни съоръжения, спирки на градски транспорт, булеварди, свързващи с всички части на града, големи хранителни магазини и много други удобства, които предлага района. 

Обади се СЕГА и цитирай този код 658634.

Весела Илиева
Консултант недвижими имоти
pin Пиши във Viber

Сходни оферти

Често задавани въпроси

Към кого да се обърнем за данъчна оценка на имот?

Колко струва една оценка на имот?

Какво можем да очакваме от пазара на имоти през 2025 г.?

Коя цена е определяща при покупка на имот?

Как протича сделка за покупка на имот с ипотечен кредит?