10

Двустаен апартамент за продажба, Варна, ID 671266

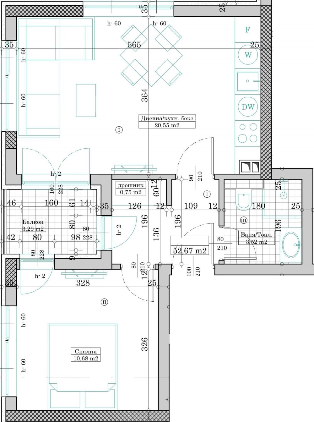
61 кв.м.
Кайсиева градина
Шпакловка и замазка
103 275 EUR
1 693 €/кв.м.

Уютен, светъл и топъл двустаен апартамент. Този дом разполага с дневна с кухненска част, спалня, дрешник, балкон, баня и тоалет. С опция за покупка на паркомясто!

Сградата е проектирана на 9 етажа и ще разполага с 48 модерни апартамента, съобразени с нуждите на съвременното семейство. На първия етаж са разположени 17 гаража с модерни автоматизирани врати, а във вътрешния двор са предвидени удобни паркоместа.

Локацията съчетава уединение и удобство само на минути от големи търговски вериги като Кауфланд, Била и Метро, в близост до автобусни спирки, детска градина и училище.

Строителството се изпълнява с висококачествени и съвременни материали, гарантиращи дълготрайност, комфорт и енергийна ефективност.

Обади се СЕГА и цитирай този код 671266.


Оферта от партньор на Имотека

Владимир Калчев
Консултант недвижими имоти
pin Пиши във Viber

Оферти от същата сграда

За квартал Кайсиева градина, Варна и недвижимите имоти

Кайсиева градина представлява жилищен район в град Варна, разположен в северната част на града. В непосредствена близост на изток се намира Индустриална зона – Планова, а южно от района е разположен центърът на Варна.


Формиран основно през 80-те години на ХХ век, кварталът се характеризира със сграден фонд, съставен предимно от панелни и тухлени жилищни блокове, предлагащи разнообразие от апартаменти.


Границите на района се оформят от основни пътни артерии като бул. „Трети март“, бул. „Цар Освободител“ и ул. „Асен Разцветников“. Транспортната достъпност е добра и се осигурява чрез редовните линии на градския транспорт – автобуси №14, 41, 118 и 209, както и тролейбусни линии №82 и №88, които свързват квартала с различни части на града.


Образователната мрежа включва детска градина №39 „Приказка“ и Основно училище „Стоян Михайловски“, а в съседните райони на Владиславово се намират и други учебни заведения, сред които ОУ „Св. Патриарх Евтимий“.


Здравното обслужване на жителите се осъществява основно чрез медицински центрове в близките квартали, като ДКЦ 3 – Варна, а при необходимост на територията на Кайсиева градина функционира и Лаборатория „Статус“.


В квартала са налични множество търговски обекти – както малки магазини за хранителни стоки, така и представители на големи търговски вериги. Допълнително се предлагат разнообразни услуги за ежедневието, включително козметични салони, заведения за хранене, бензиностанции, фитнес зала и други.

 

Районът разполага с добре изградена инфраструктура, обширни зелени площи между жилищните сгради и детски площадки, което го прави подходящ за семейства с деца.
Съчетанието от развита градска среда, удобен транспорт, зелени пространства и разнообразни услуги утвърждава Кайсиева градина като предпочитано място за живеене както за млади професионалисти, така и за семейства.

На сайта на Имотека може да откриете обяви за разнообразни имоти с функционално разпределение в квартал Кайсиева градина на Варна, които отговарят на различни бюджети и предпочитания. 

Нашите брокери недвижими имоти ще ви посрещнат с професионализъм и добро отношение. Професионалната помощ е от голямо значение, тъй като ние сме наясно с пазара. 

Тук може да се запознаете и с местоположението на офисите на ИМОТЕКА във Варна.

 

Популярни търсения за имоти ново строителство във Варна:

>>   Двустайни апартаменти ново строителство
>>   Тристайни апартаменти ново строителство
>>   Едностайни апартаменти ново строителство
>>   Многостайни апартаменти ново строителство
>>   Къщи ново строителство

Често задавани въпроси

Какво представлява данъчната оценка?

Как да изберем брокер при продажба на апартамент?

Какво можем да очакваме от пазара на имоти през 2025 г.?

Как протича сделка за покупка на имот с ипотечен кредит?

Към кого да се обърнем за данъчна оценка на имот?