16

Двустаен апартамент за продажба, Варна, ID 674554

75 кв.м.
Кайсиева градина
Шпакловка и замазка
110 562 EUR
1 474 €/кв.м.

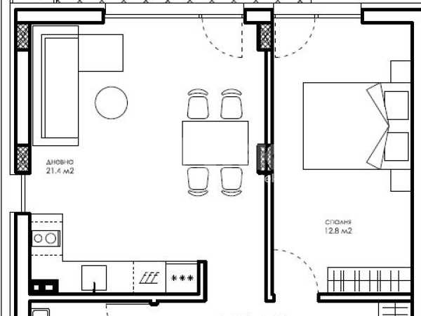
Двустаен апартамент с голяма квадратура и източно изложение на среден етаж. Жилището има следното разпределение - дневен тракт с кухненски бокс, спалня, тераса с излаз и от двете стаи, баня с тослетна, перално помещение. Повече от 70% от сградата вече е разпродадена – възползвайте се от последните свободни имоти! ЦЕНИ ОТ 64 000 € Нова сграда до КАТ – Варна: стил, комфорт и сигурна инвестиция Представяме ви модерна сграда с 9 надземни етажа и 2 подземни нива със закрити паркоместа. Гъвкави схеми на плащане: - Всички стандартни схеми са актуални - Схема 20%/80% също - Изготвяне на индивидуална схема според бюджета и предложенията на купувача Локацията до КАТ – Варна гарантира отлична свързаност и бърз достъп до главни булеварди, а тихата вътрешна улица и зелените площи предлагат спокойствие и уют за живеене. Налични имоти: * Едностайни апартаменти от 31 до 49 кв. м. * Двустайни апартаменти от 62 до 82 кв. м. * Тристайни апартаменти от 92 до 108 кв. м. * Търговски площи * Подземни и надземни паркоместа - Дизайнерски общи части и озеленени зони за релакс - 2 асансьора - Всички жилища са с балкони, без отстъпи и скосове – максимална светлина и функционални разпределения - Екстри: HPL елементи по фасадата, стъклени парапети, френски прозорци – модерна визия и високо ниво на детайл - Бонус за бъдещите собственици: фотоволтаични панели и зарядни станции за електромобили - Паркиране: 2 подземни нива със закрити паркоместа + наземни паркоместа Инвестиция, която носи стойност – открий новия си дом още днес! Свържете се за актуални наличности, планове на апартаменти и персонализирана оферта: Прочетете повече на: тел.: 0882 853 302 Моника Ценкова

Представяме ви модерна сграда с 9 надземни етажа и 2 подземни нива със закрити паркоместа.

Нова сграда до КАТ – Варна: стил, комфорт и сигурна инвестиция

- Дизайнерски общи части и озеленени зони за релакс - 2 асансьора - Всички жилища са с балкони, без отстъпи и скосове – максимална светлина и функционални разпределения - Екстри: HPL елементи по фасадата, стъклени парапети, френски прозорци – модерна визия и високо ниво на детайл - Бонус за бъдещите собственици: фотоволтаични панели и зарядни станции за електромобили - Паркиране: 2 подземни нива със закрити паркоместа + наземни паркоместа

Обади се СЕГА и цитирай този код 674554.

Александър Миланов
Консултант недвижими имоти
pin Пиши във Viber

Оферти от същата сграда

За квартал Кайсиева градина, Варна и недвижимите имоти

Кайсиева градина представлява жилищен район в град Варна, разположен в северната част на града. В непосредствена близост на изток се намира Индустриална зона – Планова, а южно от района е разположен центърът на Варна.


Формиран основно през 80-те години на ХХ век, кварталът се характеризира със сграден фонд, съставен предимно от панелни и тухлени жилищни блокове, предлагащи разнообразие от апартаменти.


Границите на района се оформят от основни пътни артерии като бул. „Трети март“, бул. „Цар Освободител“ и ул. „Асен Разцветников“. Транспортната достъпност е добра и се осигурява чрез редовните линии на градския транспорт – автобуси №14, 41, 118 и 209, както и тролейбусни линии №82 и №88, които свързват квартала с различни части на града.


Образователната мрежа включва детска градина №39 „Приказка“ и Основно училище „Стоян Михайловски“, а в съседните райони на Владиславово се намират и други учебни заведения, сред които ОУ „Св. Патриарх Евтимий“.


Здравното обслужване на жителите се осъществява основно чрез медицински центрове в близките квартали, като ДКЦ 3 – Варна, а при необходимост на територията на Кайсиева градина функционира и Лаборатория „Статус“.


В квартала са налични множество търговски обекти – както малки магазини за хранителни стоки, така и представители на големи търговски вериги. Допълнително се предлагат разнообразни услуги за ежедневието, включително козметични салони, заведения за хранене, бензиностанции, фитнес зала и други.

 

Районът разполага с добре изградена инфраструктура, обширни зелени площи между жилищните сгради и детски площадки, което го прави подходящ за семейства с деца.
Съчетанието от развита градска среда, удобен транспорт, зелени пространства и разнообразни услуги утвърждава Кайсиева градина като предпочитано място за живеене както за млади професионалисти, така и за семейства.

На сайта на Имотека може да откриете обяви за разнообразни имоти с функционално разпределение в квартал Кайсиева градина на Варна, които отговарят на различни бюджети и предпочитания. 

Нашите брокери недвижими имоти ще ви посрещнат с професионализъм и добро отношение. Професионалната помощ е от голямо значение, тъй като ние сме наясно с пазара. 

Тук може да се запознаете и с местоположението на офисите на ИМОТЕКА във Варна.

 

Популярни търсения за имоти ново строителство във Варна:

>>   Двустайни апартаменти ново строителство
>>   Тристайни апартаменти ново строителство
>>   Едностайни апартаменти ново строителство
>>   Многостайни апартаменти ново строителство
>>   Къщи ново строителство

Често задавани въпроси

Колко струва една оценка на имот?

Как протича сделка за покупка на имот с ипотечен кредит?

Какво представлява данъчната оценка?

Към кого да се обърнем за данъчна оценка на имот?

Коя цена е определяща при покупка на имот?