45

Двустаен апартамент за продажба, Варна, ID 685758

66 кв.м.
Кайсиева градина
Шпакловка и замазка
119 900 EUR
1 817 €/кв.м.

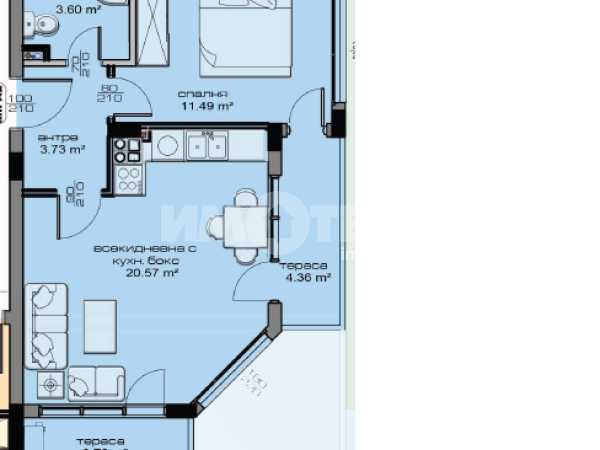
Продава се двустаен апартамент намиращ се в с.о. Планова, в близост до магазин Алати.  Сградата е въведена в експлоатация. Дневна с изложение юг/изток, спалня на изток, две тераси едната с достъп и от двете стаи, и баня с тоалетна. Слънчев апартамент с удобно разпределение. Към апартамента има и изба и подземна гаражна клетка(10 000 евро). 

Обади се СЕГА и цитирай този код 685758.


Оферта от партньор на Имотека

Йордан Ненов
Консултант недвижими имоти
pin Пиши във Viber

Сходни оферти

За квартал Кайсиева градина, Варна и недвижимите имоти

Кайсиева градина представлява жилищен район в град Варна, разположен в северната част на града. В непосредствена близост на изток се намира Индустриална зона – Планова, а южно от района е разположен центърът на Варна.


Формиран основно през 80-те години на ХХ век, кварталът се характеризира със сграден фонд, съставен предимно от панелни и тухлени жилищни блокове, предлагащи разнообразие от апартаменти.


Границите на района се оформят от основни пътни артерии като бул. „Трети март“, бул. „Цар Освободител“ и ул. „Асен Разцветников“. Транспортната достъпност е добра и се осигурява чрез редовните линии на градския транспорт – автобуси №14, 41, 118 и 209, както и тролейбусни линии №82 и №88, които свързват квартала с различни части на града.


Образователната мрежа включва детска градина №39 „Приказка“ и Основно училище „Стоян Михайловски“, а в съседните райони на Владиславово се намират и други учебни заведения, сред които ОУ „Св. Патриарх Евтимий“.


Здравното обслужване на жителите се осъществява основно чрез медицински центрове в близките квартали, като ДКЦ 3 – Варна, а при необходимост на територията на Кайсиева градина функционира и Лаборатория „Статус“.


В квартала са налични множество търговски обекти – както малки магазини за хранителни стоки, така и представители на големи търговски вериги. Допълнително се предлагат разнообразни услуги за ежедневието, включително козметични салони, заведения за хранене, бензиностанции, фитнес зала и други.

 

Районът разполага с добре изградена инфраструктура, обширни зелени площи между жилищните сгради и детски площадки, което го прави подходящ за семейства с деца.
Съчетанието от развита градска среда, удобен транспорт, зелени пространства и разнообразни услуги утвърждава Кайсиева градина като предпочитано място за живеене както за млади професионалисти, така и за семейства.

На сайта на Имотека може да откриете обяви за разнообразни имоти с функционално разпределение в квартал Кайсиева градина на Варна, които отговарят на различни бюджети и предпочитания. 

Нашите брокери недвижими имоти ще ви посрещнат с професионализъм и добро отношение. Професионалната помощ е от голямо значение, тъй като ние сме наясно с пазара. 

Тук може да се запознаете и с местоположението на офисите на ИМОТЕКА във Варна.

 

Популярни търсения за имоти ново строителство във Варна:

>>   Двустайни апартаменти ново строителство
>>   Тристайни апартаменти ново строителство
>>   Едностайни апартаменти ново строителство
>>   Многостайни апартаменти ново строителство
>>   Къщи ново строителство

Често задавани въпроси

Как да изберем брокер при продажба на апартамент?

Коя цена е определяща при покупка на имот?

Към кого да се обърнем за данъчна оценка на имот?

Как протича сделка за покупка на имот с ипотечен кредит?

Какво представлява данъчната оценка?