131

Двустаен апартамент за продажба, Варна, ID 674584

79 кв.м.
м-ст Пчелина
Шпакловка и замазка
119 132 EUR
1 508 €/кв.м.

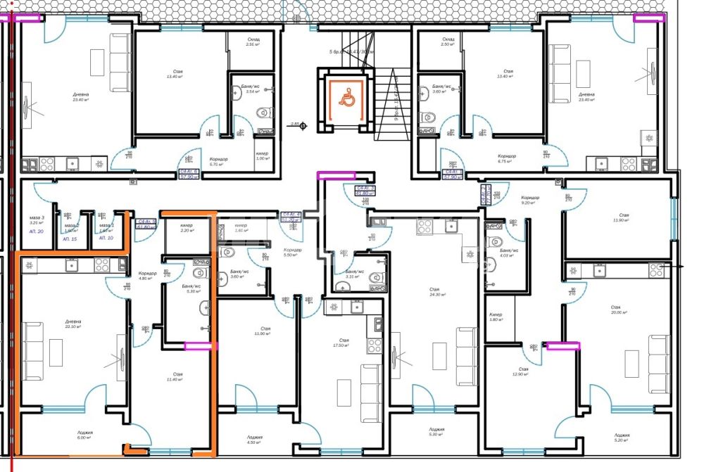
Двустаен апартамент с площ 79 кв.м., състоящ се от дневен тракт с кухненски бокс, спалня, коридор, тераса, баня с тоалетна. Апартаментът ще бъде завършен по БДС. В сградата се продават както двустайни така и тристайни апартаменти, с акт 15 и нескриваема панорама към варненското езеро. Има възможност за обединение на съседни апартаменти, възможност за покупка на цял етаж. Сградата се намира в новоразвиващ се район на гр. Варна, над кв. Възраждане 3. Към всеки апартамент има качено разпределение с броя на помещенията очертано в жълт цвят, където се вижда дали апартамента от офертата е двустаен или тристаен.

Доказани строители със собствен капитал. Сградата е с Акт 15, има поставен асансьор.

М-ст Пчелина

•    Нескриваема панорама •    Отлично разпределение  •    Възможност за покупка на паркоместа •    Избор на етаж и възможност за обединения на апартаменти •    Напреднал етап на строителство (сградата е с Акт 15) •    Тих и спокоен район  •    В близост са разположени хранителни магазини, училище, детска градина •    Югозападно изложение

Обади се СЕГА и цитирай този код 674584.


Оферта от партньор на Имотека

Мариана Богданова
Консултант недвижими имоти
pin Пиши във Viber

Оферти от същата сграда

Често задавани въпроси

Как протича сделка за покупка на имот с ипотечен кредит?

Колко струва една оценка на имот?

Какво представлява данъчната оценка?

Какво можем да очакваме от пазара на имоти през 2025 г.?

Как да изберем брокер при продажба на апартамент?