160

Двустаен апартамент за продажба, Варна, ID 664599

94 кв.м.
Операта
Шпакловка и замазка
252 000 EUR
2 681 €/кв.м.

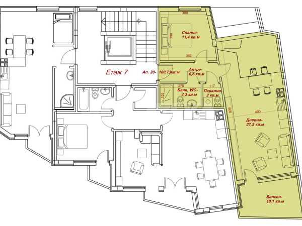
Апартамент с отлични характеристики  и морска панорама, в района на Операта и  Идеалния център на гр. Варна . Жилището е с обща площ от 94 кв.м и височина на таваните от 4.80м, което позволява преобразуването му в тристаен ,или многостаен апартамент. Разпределение: Входно антре -Голяма дневна с излаз на балкон и панорама към морето -Спалня -Две санитарни помещения Висококачествено строителство , гъвкави схеми на плащане, доказан строител с над 20- годишен опит на пазара.  

Нова сграда, изпълнена с висококачествени материали с модерна визия и архитектура.

В пряка близост до спирки на градски транспорт, училища, детски градини, пешеходно разстояние до пешеходната зона на Центъра на града и Морска гара.

Качество на строителство. Локация. Правилни форми на стаите. Морска панорама

Обади се СЕГА и цитирай този код 664599.

Пламена Желязкова
Консултант недвижими имоти
pin Пиши във Viber

Сходни оферти

Често задавани въпроси

Как да изберем брокер при продажба на апартамент?

Как протича сделка за покупка на имот с ипотечен кредит?

Коя цена е определяща при покупка на имот?

Към кого да се обърнем за данъчна оценка на имот?

Какво можем да очакваме от пазара на имоти през 2025 г.?