3

Многостаен за продажба, Варна, ID 684464

112 кв.м.
Възраждане 3
Шпакловка и замазка
205 600 EUR
1 836 €/кв.м.

Малка новострояща се сграда с 12 апартамента, удобно разпределение на жилищните площи. Към всеки апартамент има прилеаща маза и/или гараж/ паркомсто. 

Малка жилищна сграда, модерна визия, безкомпромисно качествено строителство, с асансьор. 

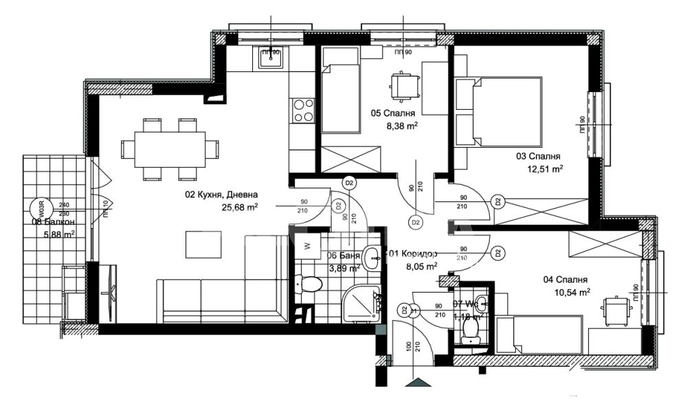
Четиристаен апартамент, състоящ се от просторна дневна с куненски бокс и трапезария, три самостоятелни спални, баня с тоалет, отделна тоалетна, балкон, коридор. Прилежаща маза и подземен Гараж. Апартаментът се предлага на шпакловка и замазка. Изложението осигурява естествена светлина през целия ден, а функционалното разпределение го прави подходящ както за семейно жилище, така и за инвестиция. Към имота има самостоятелен гараж, включен в цената.

Нова бутикова сграда, до главни пътни артерии. Апартамент с гараж! Разсрочено плащане.

Обади се СЕГА и цитирай този код 684464.


Оферта от партньор на Имотека

Нина Чернаева
Консултант недвижими имоти
pin Пиши във Viber

Оферти от същата сграда

За квартал Възраждане, Варна и недвижимите имоти

Квартал Възраждане се намира в западната част на град Варна и е един от установените жилищни райони с ясно определена квартална структура. Основното му застрояване се реализира през втората половина на XX век, като днес кварталът функционира като самостоятелен градски район с добре развита инфраструктура и пълноценни услуги. Възраждане граничи с кварталите Владислав Варненчик, Младост и Западна промишлена зона, което осигурява удобна връзка с различни части на града.


Транспортната мрежа на Възраждане е добре организирана. Основните булеварди, „Трети март“, „Република“ и „Владислав Варненчик“, осигуряват бърз автомобилен достъп до централната градска част, автогарата, индустриалните зони и изходите на Варна. Кварталът се обслужва от множество автобусни линии, включително №14, 20, 22, 41, 48, 118 и 409, които гарантират редовна връзка с центъра, жп гарата, летището, морските квартали и ключови търговски и административни зони.


Жилищният фонд във Възраждане е разнообразен. Тук са представени панелни и ЕПК сгради от 70-те и 80-те години, както и нови тухлени кооперации и модерни жилищни комплекси, изградени през последните години. Застрояването е средно плътно, с междублокови пространства, детски площадки и озеленени зони, които допринасят за удобна и функционална среда за живот. Разнообразието на имотите осигурява широк избор както за постоянно живеене, така и за инвестиции.


В квартала функционират детски градини и училища, включително основни и средни учебни заведения, покриващи нуждите на жителите. В близост са разположени професионални гимназии и образователни центрове, които допълнително разширяват възможностите за обучение.
Медицинската инфраструктура включва ДКЦ, частни медицински центрове, стоматологични кабинети, лаборатории и аптеки, разположени в различни части на квартала. За специализирана помощ жителите имат бърз достъп до многопрофилни болници във Варна.


Кварталът разполага с разнообразие от супермаркети, магазини на национални и международни вериги, търговски обекти, заведения, банки и административни услуги. В близост са разположени и големи търговски центрове и ритейл паркове, допълващи ежедневните нужди на живеещите.

Съчетавайки развита транспортна мрежа, пълноценна градска инфраструктура, разнообразен жилищен фонд и удобна локация, квартал Възраждане се утвърждава като стабилен и функционален район на Варна, подходящ за семейства, професионалисти и бъдещи инвеститори.

На сайта на Имотека може да откриете обяви за разнообразни имоти с функционално разпределение в квартал Възраждане на Варна, които отговарят на различни бюджети и предпочитания. 

Нашите брокери недвижими имоти ще ви посрещнат с професионализъм и добро отношение. Професионалната помощ е от голямо значение, тъй като ние сме наясно с пазара. 

Тук може да се запознаете и с местоположението на офисите на ИМОТЕКА във Варна.

 

Популярни търсения за имоти ново строителство във Варна:

>>   Двустайни апартаменти ново строителство
>>   Тристайни апартаменти ново строителство
>>   Едностайни апартаменти ново строителство
>>   Многостайни апартаменти ново строителство
>>   Къщи ново строителство

Често задавани въпроси

Коя цена е определяща при покупка на имот?

Какво представлява данъчната оценка?

Как протича сделка за покупка на имот с ипотечен кредит?

Към кого да се обърнем за данъчна оценка на имот?

Какво можем да очакваме от пазара на имоти през 2025 г.?