13

Гараж за продажба, Варна, ID 686757

35 кв.м.
Виница
Шпакловка и замазка
31 000 EUR
886 €/кв.м.

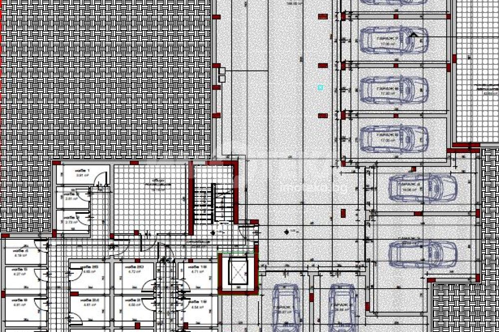
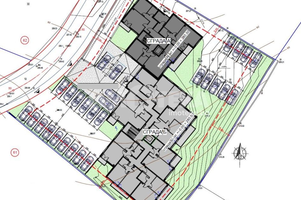
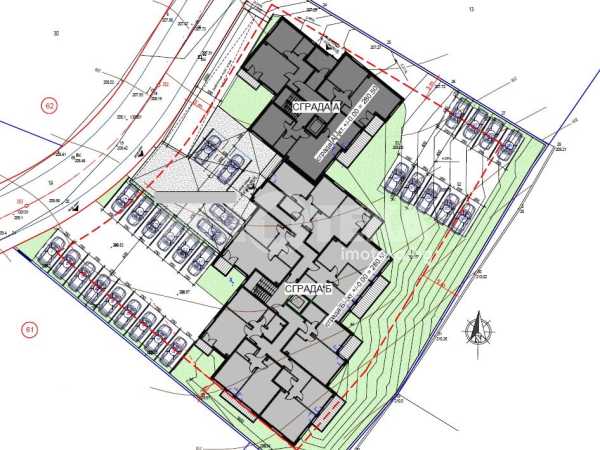
Самостоятелен гараж на ниво -1. Голяма площ и възможност за допълнително паркиране на мотор или колелета. Подход с рампа. Голямо маневрено пространство. Сградата е на 4 етажа, с модерна архитектурна визия, функционално разпределени апартаменти и асансьор, който е от нивото на гаражите.

Сградата е в етап на строителство, което се изпълнява с висококачествени материали и внимание към всеки детайл.

Локацията на кв.Виница осигурява бърз и лесен достъп до централната част на града, плажните ивици и основни пътни артерии, като същевременно предлага спокойна жилищна среда, предпочитана както за постоянно живеене, така и за инвестиция с цел отдаване под наем.

Сградата се намира в тиха и зелена зона, в непосредствено съседство с гора, което гарантира спокойствие, чист въздух и усещане за уединение. 

Обади се СЕГА и цитирай този код 686757.


Оферта от партньор на Имотека

Светла Станева
Консултант недвижими имоти
pin Пиши във Viber

Оферти от същата сграда

За квартал Виница, Варна и недвижимите имоти

Квартал Виница се намира в североизточната част на Варна, разположен между квартал Бриз и курортния комплекс „Св. Св. Константин и Елена“. Районът се отличава със спокойна и подредена жилищна среда, близост до морето и обширни зелени пространства, което го прави предпочитано място за постоянно живеене извън интензивния ритъм на централната градска зона.

 

Транспортната достъпност на Виница е осигурена основно чрез бул. „Св. Св. Константин и Елена“, който свързва квартала с центъра на Варна. Основна вътрешноквартална артерия е ул. „Цар Борис III“, обслужваща жилищните части и търговските обекти в района. Общественият транспорт включва автобусни линии №29, 31 и 31А, които осигуряват редовни връзки с централната градска част, ЖП гара Варна, Морската градина и курортните зони.

 

Жилищният фонд във Виница е разнообразен и включва еднофамилни къщи, малки жилищни кооперации, както и новопостроени сгради. През последните години в района се реализират съвременни жилищни проекти с модерна архитектура, функционални разпределения и контролиран достъп, което допринася за повишаване на качеството на средата.

 

Образователната инфраструктура в квартала включва детски градини и Основно училище „Панайот Волов“. В съседните райони са разположени средни училища, гимназии и частни образователни центрове, а благодарение на транспортната свързаност е възможен достъп до Икономическия университет – Варна и Медицинския университет – Варна.

 

Здравното обслужване във Виница е добре обезпечено от медицински центрове, общопрактикуващи лекари, стоматологични кабинети и аптеки. В близост се намират и утвърдени лечебни заведения като Медицински център „Евромедика Варна“, Медицински център „Янев“ и МБАЛ „Еврохоспитал“, предлагащи широк спектър от специализирани медицински услуги.

 

Търговската и обслужващата инфраструктура в квартала включва супермаркети, квартални магазини, заведения, фитнес и спортни обекти, както и административни услуги, покриващи ежедневните нужди на жителите. Близостта до курортните комплекси, морския бряг и зелените зони създава допълнителни възможности за отдих и активен начин на живот.

Комбинацията от спокойна жилищна среда, добра транспортна достъпност, модерно ново строителство и близост до морето и курортните зони утвърждава квартал Виница като устойчиво развиващ се и търсен район за живеене и инвестиции в жилищни имоти във Варна.

На сайта на Имотека може да откриете обяви за разнообразни имоти с функционално разпределение в квартал Виница на Варна, които отговарят на различни бюджети и предпочитания. 

Нашите брокери недвижими имоти ще ви посрещнат с професионализъм и добро отношение. Професионалната помощ е от голямо значение, тъй като ние сме наясно с пазара. 

Тук може да се запознаете и с местоположението на офисите на ИМОТЕКА във Варна.

 

Популярни търсения за имоти ново строителство във Варна:

>>   Двустайни апартаменти ново строителство
>>   Тристайни апартаменти ново строителство
>>   Едностайни апартаменти ново строителство
>>   Многостайни апартаменти ново строителство
>>   Къщи ново строителство

Често задавани въпроси

Коя цена е определяща при покупка на имот?

Колко струва една оценка на имот?

Как да изберем брокер при продажба на апартамент?

Към кого да се обърнем за данъчна оценка на имот?

Какво можем да очакваме от пазара на имоти през 2025 г.?