43

Гараж за продажба, Варна, ID 686764

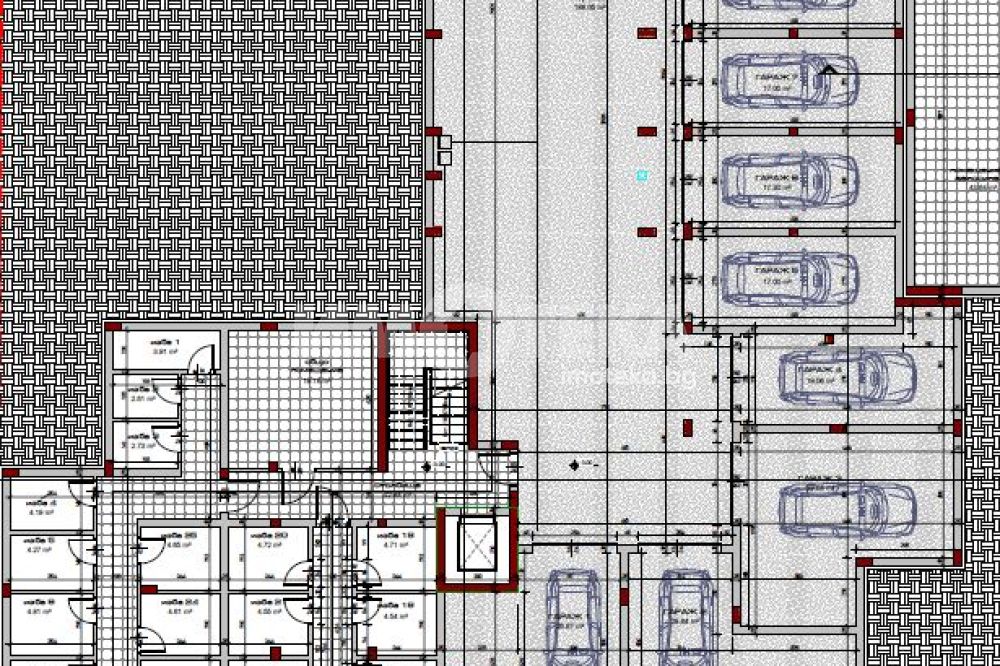
20 кв.м.
Виница
Шпакловка и замазка
25 000 EUR
1 250 €/кв.м.

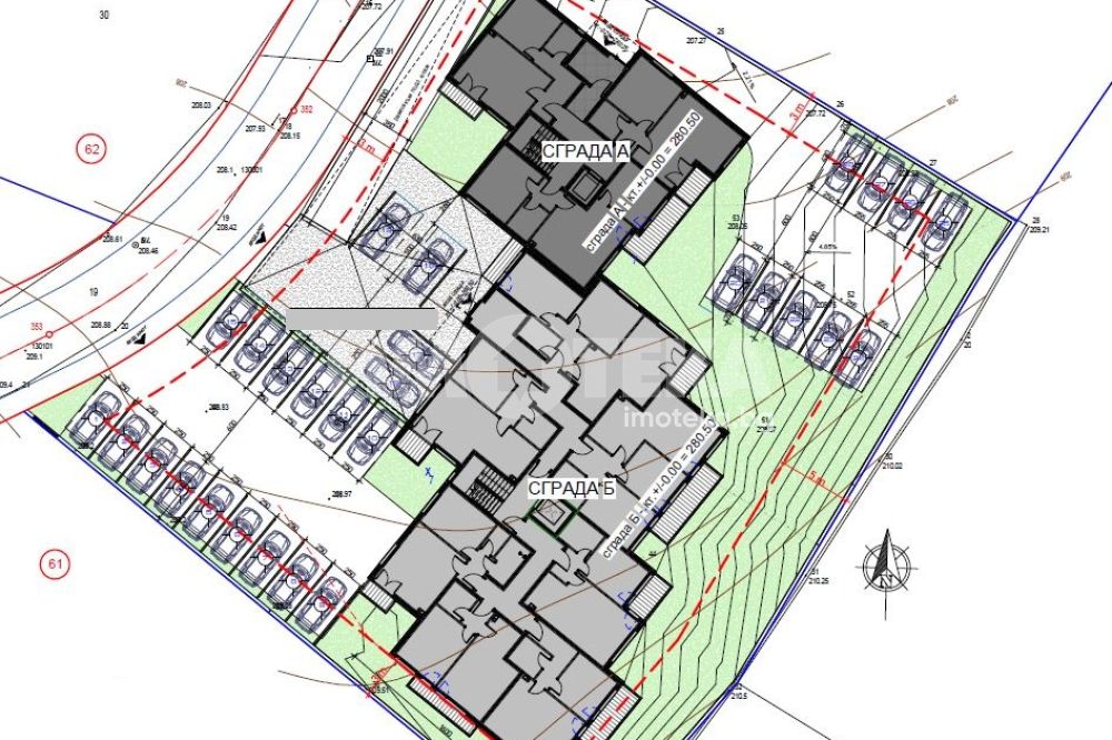
Самостоятелен гараж с отлична площ на ниво -1 . Подход с рампа. Голямо маневрено пространство. Проектът е на 4 етажа, с модерна архитектурна визия, функционално разпределени апартаменти и асансьор, който е от нивото на гаражите.

Сградата е в етап на строителство, което се изпълнява с висококачествени материали и внимание към всеки детайл.

Локацията на кв.Виница осигурява бърз и лесен достъп до централната част на града, плажните ивици и основни пътни артерии, като същевременно предлага спокойна жилищна среда, предпочитана както за постоянно живеене, така и за инвестиция с цел отдаване под наем.

Сградата се намира в тиха и зелена зона, в непосредствено съседство с гора, което гарантира спокойствие, чист въздух и усещане за уединение. 

Обади се СЕГА и цитирай този код 686764.


Оферта от партньор на Имотека

Светла Станева
Консултант недвижими имоти
pin Пиши във Viber

Оферти от същата сграда

За квартал Виница, Варна и недвижимите имоти

Квартал Виница се намира в североизточната част на Варна, разположен между квартал Бриз и курортния комплекс „Св. Св. Константин и Елена“. Районът се отличава със спокойна и подредена жилищна среда, близост до морето и обширни зелени пространства, което го прави предпочитано място за постоянно живеене извън интензивния ритъм на централната градска зона.

 

Транспортната достъпност на Виница е осигурена основно чрез бул. „Св. Св. Константин и Елена“, който свързва квартала с центъра на Варна. Основна вътрешноквартална артерия е ул. „Цар Борис III“, обслужваща жилищните части и търговските обекти в района. Общественият транспорт включва автобусни линии №29, 31 и 31А, които осигуряват редовни връзки с централната градска част, ЖП гара Варна, Морската градина и курортните зони.

 

Жилищният фонд във Виница е разнообразен и включва еднофамилни къщи, малки жилищни кооперации, както и новопостроени сгради. През последните години в района се реализират съвременни жилищни проекти с модерна архитектура, функционални разпределения и контролиран достъп, което допринася за повишаване на качеството на средата.

 

Образователната инфраструктура в квартала включва детски градини и Основно училище „Панайот Волов“. В съседните райони са разположени средни училища, гимназии и частни образователни центрове, а благодарение на транспортната свързаност е възможен достъп до Икономическия университет – Варна и Медицинския университет – Варна.

 

Здравното обслужване във Виница е добре обезпечено от медицински центрове, общопрактикуващи лекари, стоматологични кабинети и аптеки. В близост се намират и утвърдени лечебни заведения като Медицински център „Евромедика Варна“, Медицински център „Янев“ и МБАЛ „Еврохоспитал“, предлагащи широк спектър от специализирани медицински услуги.

 

Търговската и обслужващата инфраструктура в квартала включва супермаркети, квартални магазини, заведения, фитнес и спортни обекти, както и административни услуги, покриващи ежедневните нужди на жителите. Близостта до курортните комплекси, морския бряг и зелените зони създава допълнителни възможности за отдих и активен начин на живот.

Комбинацията от спокойна жилищна среда, добра транспортна достъпност, модерно ново строителство и близост до морето и курортните зони утвърждава квартал Виница като устойчиво развиващ се и търсен район за живеене и инвестиции в жилищни имоти във Варна.

На сайта на Имотека може да откриете обяви за разнообразни имоти с функционално разпределение в квартал Виница на Варна, които отговарят на различни бюджети и предпочитания. 

Нашите брокери недвижими имоти ще ви посрещнат с професионализъм и добро отношение. Професионалната помощ е от голямо значение, тъй като ние сме наясно с пазара. 

Тук може да се запознаете и с местоположението на офисите на ИМОТЕКА във Варна.

 

Популярни търсения за имоти ново строителство във Варна:

>>   Двустайни апартаменти ново строителство
>>   Тристайни апартаменти ново строителство
>>   Едностайни апартаменти ново строителство
>>   Многостайни апартаменти ново строителство
>>   Къщи ново строителство

Често задавани въпроси

Как протича сделка за покупка на имот с ипотечен кредит?

Какво представлява данъчната оценка?

Колко струва една оценка на имот?

Как да изберем брокер при продажба на апартамент?

Коя цена е определяща при покупка на имот?