525

Къща/Вила за продажба, Варна, ID 579289

340 кв.м.
Виница
Шпакловка и замазка
435 000 EUR
1 279 €/кв.м.

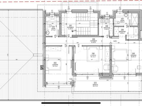
Прекрасна новопостроена къща в кв.Виница, функционално разпределена - мечта за всяка домакиня. Къщата разполага с дневен тракт 50 кв.м., 4 спални едната от които е със собствена баня и гардеробна, 3 бани с WC, перално помещение, офис помещение, техническо помещение и двоен гараж. Към дневната и кухненската част има прилежащ килер за посуда и продукти. Всички стаи имат излаз на тераса. Прекрасна веранда с изглед към двора с обособени места за трапезарна маса и кът с мека мебел. Изложението е И/Ю/З като в посока Север гледат гаража и стълбищната клетка.

Прекарани инсталации за локално парно, климатици във всяка стая, слънчеви колектори, СОТ и видеонаблюдение. Дограмата е Salamander Bluevolution с цвят антрацит 88 мм и троен стъклопакет 40 мм. Керемидите са Bramak цвят антрацит и 20 годишна застраховка на производителя.10 см. външна топлоизолация. Входната блиндирана врата, както и гаражната секционна врата (с монтирано управление) са също с цвят антрацит.

Квартал Виница. Кварталът е с добра транспортна обезпеченост, с отлични комуникации, основно училище Панайот Волов , ОДЗ 24 Иглика , православен храм, Дом за медико-социални грижи за деца Варна, Многопрофилна болница за активно лечение Еврохоспитал , ветеринарна лечебница, аптеки, бензиностанции, кметство, пощенски клон, клон на банка, множество хотели и магазини, супермаркет от веригата Пикадили. На изхода на квартала, в посока Аладжа Манастир, се намира конна база. Наблизо са курорт Св. Св. Константин и Елена , Евксиноград, курорт Златни пясъци и вилната зона на града.

Морска панорама. Монтирана е пречиствателна станция за отпадни води. Къщата е с АКТ 16 от март 2023

Обади се СЕГА и цитирай този код 579289.


Оферта от партньор на Имотека

Петя Чикурдова
Консултант недвижими имоти
pin Пиши във Viber

Сходни оферти

За квартал Виница, Варна и недвижимите имоти

Квартал Виница се намира в североизточната част на Варна, разположен между квартал Бриз и курортния комплекс „Св. Св. Константин и Елена“. Районът се отличава със спокойна и подредена жилищна среда, близост до морето и обширни зелени пространства, което го прави предпочитано място за постоянно живеене извън интензивния ритъм на централната градска зона.

 

Транспортната достъпност на Виница е осигурена основно чрез бул. „Св. Св. Константин и Елена“, който свързва квартала с центъра на Варна. Основна вътрешноквартална артерия е ул. „Цар Борис III“, обслужваща жилищните части и търговските обекти в района. Общественият транспорт включва автобусни линии №29, 31 и 31А, които осигуряват редовни връзки с централната градска част, ЖП гара Варна, Морската градина и курортните зони.

 

Жилищният фонд във Виница е разнообразен и включва еднофамилни къщи, малки жилищни кооперации, както и новопостроени сгради. През последните години в района се реализират съвременни жилищни проекти с модерна архитектура, функционални разпределения и контролиран достъп, което допринася за повишаване на качеството на средата.

 

Образователната инфраструктура в квартала включва детски градини и Основно училище „Панайот Волов“. В съседните райони са разположени средни училища, гимназии и частни образователни центрове, а благодарение на транспортната свързаност е възможен достъп до Икономическия университет – Варна и Медицинския университет – Варна.

 

Здравното обслужване във Виница е добре обезпечено от медицински центрове, общопрактикуващи лекари, стоматологични кабинети и аптеки. В близост се намират и утвърдени лечебни заведения като Медицински център „Евромедика Варна“, Медицински център „Янев“ и МБАЛ „Еврохоспитал“, предлагащи широк спектър от специализирани медицински услуги.

 

Търговската и обслужващата инфраструктура в квартала включва супермаркети, квартални магазини, заведения, фитнес и спортни обекти, както и административни услуги, покриващи ежедневните нужди на жителите. Близостта до курортните комплекси, морския бряг и зелените зони създава допълнителни възможности за отдих и активен начин на живот.

Комбинацията от спокойна жилищна среда, добра транспортна достъпност, модерно ново строителство и близост до морето и курортните зони утвърждава квартал Виница като устойчиво развиващ се и търсен район за живеене и инвестиции в жилищни имоти във Варна.

На сайта на Имотека може да откриете обяви за разнообразни имоти с функционално разпределение в квартал Виница на Варна, които отговарят на различни бюджети и предпочитания. 

Нашите брокери недвижими имоти ще ви посрещнат с професионализъм и добро отношение. Професионалната помощ е от голямо значение, тъй като ние сме наясно с пазара. 

Тук може да се запознаете и с местоположението на офисите на ИМОТЕКА във Варна.

 

Популярни търсения за имоти ново строителство във Варна:

>>   Двустайни апартаменти ново строителство
>>   Тристайни апартаменти ново строителство
>>   Едностайни апартаменти ново строителство
>>   Многостайни апартаменти ново строителство
>>   Къщи ново строителство

Често задавани въпроси

Как протича сделка за покупка на имот с ипотечен кредит?

Как да изберем брокер при продажба на апартамент?

Колко струва една оценка на имот?

Към кого да се обърнем за данъчна оценка на имот?

Какво можем да очакваме от пазара на имоти през 2025 г.?