12

Къща/Вила за продажба, Банкя, ID 676997

320 кв.м.
Банкя
Шпакловка и замазка
390 000 EUR
1 219 €/кв.м.

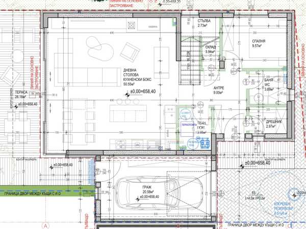
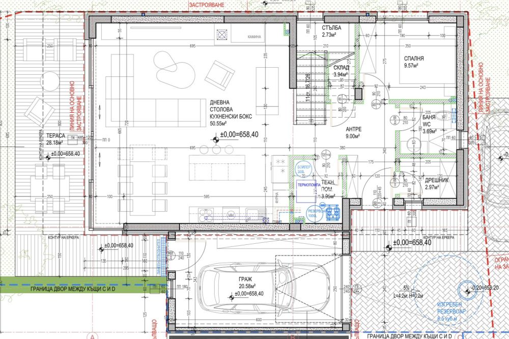
ДИРЕКТНО ОТ ИНВЕСТИТОР! 3 ЕТАЖА С ДЖАКУЗИ! ПОДОВО ОТОПЛЕНИЕ! 'МАНИЛА ХИЛС' е жилищен комплекс от затворен тип с площ от близо 2 декара и се състои от общо 6 еднофамилни жилищни сгради с РЗП около 290-320кв.м. На територията на комплекса ще бъде разположен и търговски обект. В продажба са 3 еднофамилни жилищни сгради с РЗП от 300кв.м. и самостоятелни гаражи. Всяка от къщите ще бъде с подово отопление и външно джакузи!

Монолитна конструкция със стоманобетонови колони, греди и плочи. Външните стени са от тухлена зидария с керамични тухли Porotherm. Покривната конструкция е тип едноскатен или двускатен покрив. Отводняването на покрива се изпълнява от улуци и водосточни тръби. Системите за топло, хидроизолация и дограма отговарят на стандарти за енергоспестяваща къща. Подово покритие циментова замазка. Стени и тавани мазилка. Входни врати блиндирани. Положено подово отопление. Отопление термопомпа. Гараж с ролетна врата с дистанционно управление.Изградена поливна система. Комплекс от затворен тип - в ограден двор с контрол на достъпа, отлична визия и качество на материали и системи, собствен двор-градина, благоустроен и озеленен двор по ландшафтен проект. Разсрочено плащане.

Къща А ЗП етаж 1-118,43кв.м, ЗП етаж 2-118,72кв.м., подпокривно -60кв.м. Къща B ЗП етаж 1-121,06кв.м., ЗП етаж 2- 118,72кв.м., подпокривно-60кв.м Къща C ЗП етаж 1-129,32кв.м., ЗП етаж 2- 117,20кв.м., подпокривно-60кв.м. Къща D ЗП етаж 1- 129,32кв.м., ЗП етаж 2-117,20кв.м, подпокривно-60кв.м. Къща Е ЗП етаж 1-129,32кв.м., ЗП етаж 2-117,20кв.м., подпокривно- 60кв.м.

Обади се СЕГА и цитирай този код 676997.


Оферта от партньор на Имотека

Никола Даскалов
Консултант недвижими имоти
pin Пиши във Viber

Оферти от същата сграда

Често задавани въпроси

Коя цена е определяща при покупка на имот?

Как да изберем брокер при продажба на апартамент?

Какво представлява данъчната оценка?

През кои квартали минава метрото в София?

Към кого да се обърнем за данъчна оценка на имот?