13

Къща/Вила за продажба, Мало Бучино, ID 676998

320 кв.м.
Шпакловка и замазка
390 000 EUR
1 219 €/кв.м.

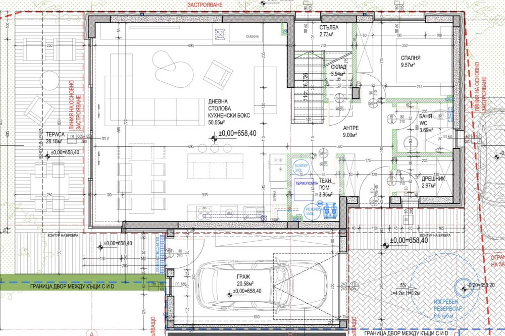
ДИРЕКТНО ОТ ИНВЕСТИТОР! 3 ЕТАЖА С ДЖАКУЗИ! ПОДОВО ОТОПЛЕНИЕ! 'МАНИЛА ХИЛС' е жилищен комплекс от затворен тип с площ от близо 2 декара и се състои от общо 6 еднофамилни жилищни сгради с РЗП около 290-320кв.м. На територията на комплекса ще бъде разположен и търговски обект. В продажба са 3 еднофамилни жилищни сгради с РЗП от 300кв.м. и самостоятелни гаражи. Всяка от къщите ще бъде с подово отопление и външно джакузи!

Монолитна конструкция със стоманобетонови колони, греди и плочи. Външните стени са от тухлена зидария с керамични тухли Porotherm. Покривната конструкция е тип едноскатен или двускатен покрив. Отводняването на покрива се изпълнява от улуци и водосточни тръби. Системите за топло, хидроизолация и дограма отговарят на стандарти за енергоспестяваща къща. Подово покритие циментова замазка. Стени и тавани мазилка. Входни врати блиндирани. Положено подово отопление. Отопление термопомпа. Гараж с ролетна врата с дистанционно управление.Изградена поливна система. Комплекс от затворен тип - в ограден двор с контрол на достъпа, отлична визия и качество на материали и системи, собствен двор-градина, благоустроен и озеленен двор по ландшафтен проект. Разсрочено плащане.

Къща А ЗП етаж 1-118,43кв.м, ЗП етаж 2-118,72кв.м., подпокривно -60кв.м. Къща B ЗП етаж 1-121,06кв.м., ЗП етаж 2- 118,72кв.м., подпокривно-60кв.м Къща C ЗП етаж 1-129,32кв.м., ЗП етаж 2- 117,20кв.м., подпокривно-60кв.м. Къща D ЗП етаж 1- 129,32кв.м., ЗП етаж 2-117,20кв.м, подпокривно-60кв.м. Къща Е ЗП етаж 1-129,32кв.м., ЗП етаж 2-117,20кв.м., подпокривно- 60кв.м.

Обади се СЕГА и цитирай този код 676998.


Оферта от партньор на Имотека

Никола Даскалов
Консултант недвижими имоти
pin Пиши във Viber

Оферти от същата сграда

Често задавани въпроси

Какви са прогнозите за кварталите през 2025г.?

Как се прави анализ на пазара на недвижими имоти?

Коя цена е определяща при покупка на имот?

През кои квартали минава метрото в София?

В какъв срок се издава данъчна оценка?