137

Едностаен апартамент за продажба, Бургас, ID 594848

42 кв.м.
Братя Миладинови
Шпакловка и замазка
74 070 EUR
1 693 €/кв.м.

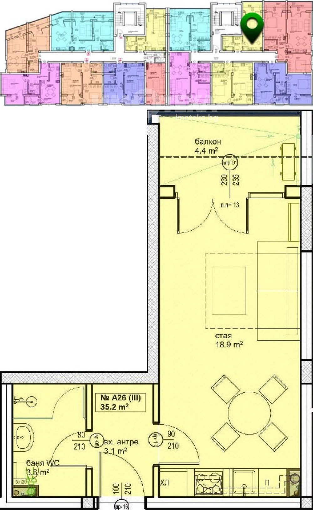
Предлагам Ви за продажба едностаен апартамент в новострояща се жилищна сграда на супер локация в ж.к. "Братя Миладинови". Апартаментът се състои от входно антре, едно общо помещение с обозначени кухненски бокс, трапезария и мека мебел, баня с тоалетна и тераса. За ваше улеснение прилагам снимка с архитектурния план на помещението. Строителната площадка е открита на 10.2023г. Срока за въвеждане на сградата в експлоатация е 36 месеца.

Нова тухлена кооперация, с иновативна визия и качествени материали.

ж.к. "Братя Миладинови".

ТОП Локация Красива гледка

Обади се СЕГА и цитирай този код 594848.


Оферта от партньор на Имотека

Марин Димитров
Консултант недвижими имоти
pin Пиши във Viber

Оферти от същата сграда

Често задавани въпроси

Как се прави анализ на пазара на недвижими имоти?

Коя цена е определяща при покупка на имот?

Как протича сделка за покупка на имот с ипотечен кредит?

Какво представлява данъчната оценка?

Какво можем да очакваме от пазара на имоти през 2025 г.?