110

Двустаен апартамент за продажба, Бургас, ID 671038

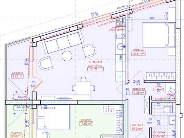
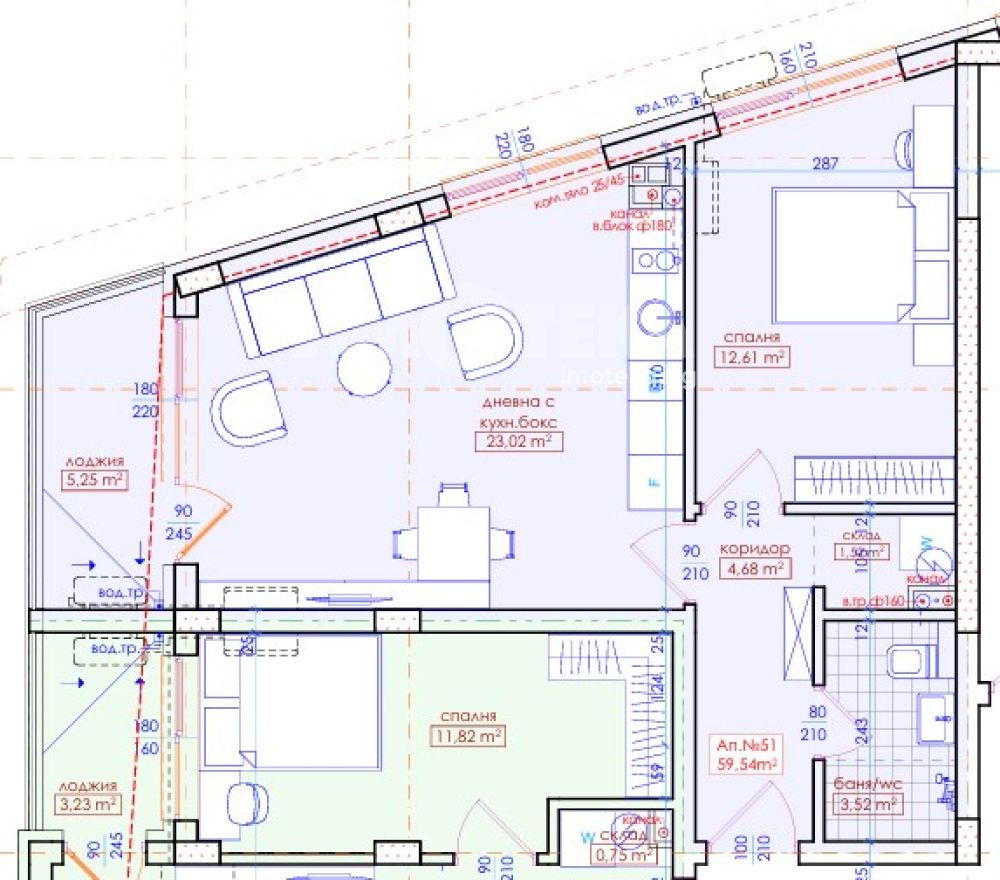
68.6 кв.м.
Меден рудник - зона Д
Шпакловка и замазка
67 914 EUR
990 €/кв.м.

НОВ ЖИЛИЩЕН ПРОЕКТ В Ж.К. МЕДЕН РУДНИК – СЪВРЕМЕНЕН СТИЛ И ОТЛИЧНА ЛОКАЦИЯ АДРЕС Недвижими имоти Ви представя нова жилищна сграда в ж.к. Меден Рудник – зона Д, с изключително комуникативна и развиваща се локация в град Бургас. Проектът е позициониран в близост до зона А – предпочитана част на комплекса, с бърз достъп до училища, детски градини, магазини, спирки на градски транспорт и всичко необходимо за комфортен градски живот. Районът се характеризира с добра инфраструктура, лесен достъп до централните части на града и спокойна жилищна среда, което го прави отличен избор както за живеене, така и за инвестиция.

Сградата е 9-етажна, проектирана с модерна визия и функционално разпределени жилища. Предлагат се двустайни и тристайни апартаменти, които се отличават с правилни форми, максимално усвояване на пространството и отлична естествена осветеност.

Проектът съчетава спокойствието на жилищния квартал с удобствата на градската среда и предлага отлична възможност за инвестиция с висока добавена стойност.

Жилищата се издават по БДС, с възможност за довършване по индивидуален проект, съобразен с нуждите на всеки клиент. Основни предимства: Отлична локация в бързо развиващ се район Функционални двустайни и тристайни апартаменти Модерна архитектура и качествено строителство Луксозно изпълнени общи части Контрол на достъпа и сигурност Гъвкави схеми на плащане

Обади се СЕГА и цитирай този код 671038.


Оферта от партньор на Имотека

Николина Димитрова
Консултант недвижими имоти
pin Пиши във Viber

Оферти от същата сграда

Често задавани въпроси

Коя цена е определяща при покупка на имот?

В какъв срок се издава данъчна оценка?

Какво представлява данъчната оценка?

Колко струва една оценка на имот?

Как да изберем брокер при продажба на апартамент?