109

Тристаен апартамент за продажба, Бургас, ID 677968

109.63 кв.м.
Меден рудник - зона В
Шпакловка и замазка
131 556 EUR
1 200 €/кв.м.

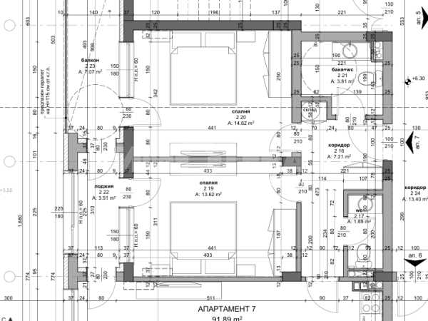
Тристаен апартамент, с площ от 109.63м2, ет.2 . Състоящ се от: Всекидневна с кухненска част Спалня -2бр Тераса-2бр Баня с тоалетна -2бр Перално помещение Нова модерна седеметажна сграда – жилищна и търговска Представяме Ви нова модерна седеметажна сграда, проектирана с акцент върху функционалност, комфорт и висок клас изпълнение.  

 Разпределение: 18 апартамента – различни по площ и функционалност 5 офиса – подходящи за административна и бизнес дейност 1 търговски обект (магазин) – на партерно ниво  

Изпълнение с висококачествени строителни материали Трикамерна дограма с отлични шумо- и топлоизолационни характеристики Енергийна ефективност, съобразена със съвременните нормативни изисквания Модерна фасада с изчистена архитектурна линия

Общо 26 паркоместа, от които: 4 надземни, ситуирани в рамките на терена 22 подземни, разположени на подземно ниво Достъпът до подземния паркинг е осигурен чрез автомобилен асансьор, гарантиращ удобство и сигурност.  

Обади се СЕГА и цитирай този код 677968.


Оферта от партньор на Имотека

Златина Добрева
Консултант недвижими имоти
pin Пиши във Viber

Оферти от същата сграда

Често задавани въпроси

Какво представлява данъчната оценка?

Как протича сделка за покупка на имот с ипотечен кредит?

Как да изберем брокер при продажба на апартамент?

Какво можем да очакваме от пазара на имоти през 2025 г.?

В какъв срок се издава данъчна оценка?