8

Многостаен за продажба, Пловдив, ID 671921

180 кв.м.
Остромила
Шпакловка и замазка
216 000 EUR
1 200 €/кв.м.

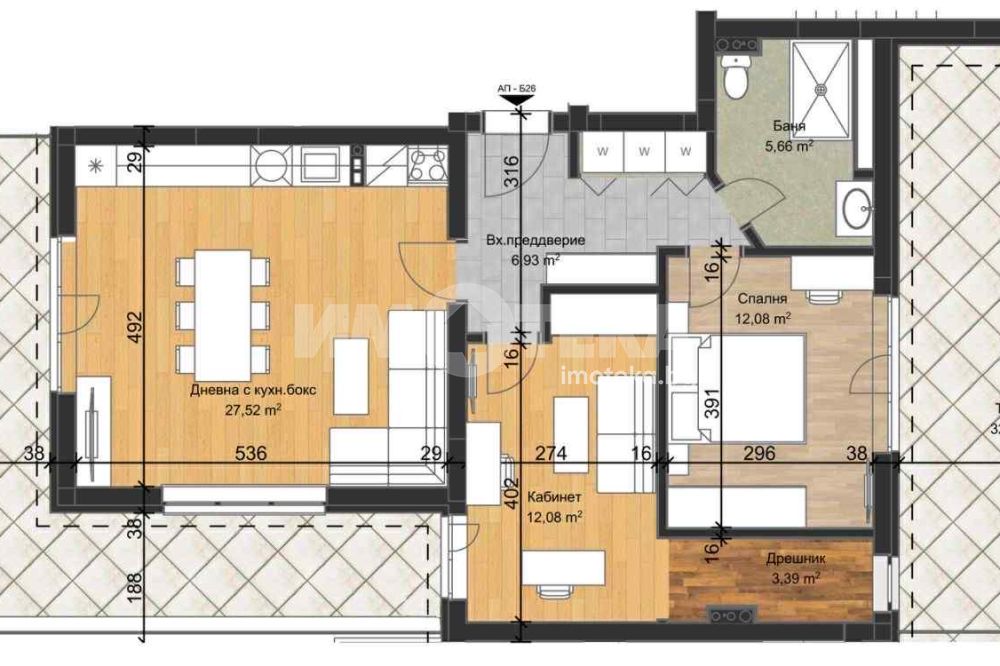
Този многостаен апартамент е разположен в бутикова сграда в строеж в кв. Остромила, отличаваща се с модерен дизайн и висококачествено строителство. Жилището предлага просторна дневна,спалня,баня и големи тераси с отлична ориентация.Разполага с кабинет Използвани са премиум материали и съвременни технологии, които гарантират дълготраен комфорт и енергийна ефективност. Има възможност апартаментът да бъде довършен по избор на клиента, според личните предпочитания и стил.

Обади се СЕГА и цитирай този код 671921.

Дамяна Калчева
Консултант недвижими имоти
pin Пиши във Viber

Сходни оферти

Често задавани въпроси

В какъв срок се издава данъчна оценка?

Коя цена е определяща при покупка на имот?

Към кого да се обърнем за данъчна оценка на имот?

Колко струва една оценка на имот?

Какво можем да очакваме от пазара на имоти през 2025 г.?