311

Тристаен апартамент за продажба, София, ID 674425

106 кв.м.
Бояна
Шпакловка и замазка
288 724 EUR
2 724 €/кв.м.

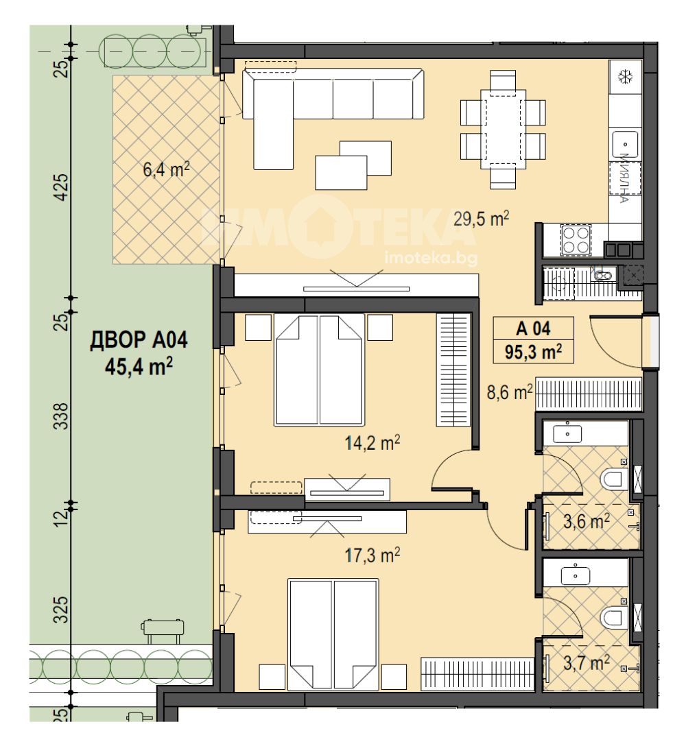
Схема на плащане 30 на 70, гъвкави схеми на плащане! Прекрасен тристаен апартамент със западно изложение, позициониран на партерно ниво с РЗП-105,76м2, просторни стаи и разкошен прилежащ двор. Върху площ от 95,3м2 са разположени: дневна с кухненски бокс и трапезария-29,5м2, спалня -17,3м2 с 3,7м2 баня към нея, втора спалня-14,2 м2, втора баня с тоалетна-3,6м2, мокро помещение/склад, тераса-6,4м2 и прилежащ двор от 45,4м2. Налични ПМ и гаражи. Термопомпа в цената на всеки апартамент! Без комисион. Един модерен затворен комплекс в кв. Бояна, проектиран за хора и семейства с усет към качествения живот, търсещи баланса между природата и градската динамика. Локацията осигурява чист въздух, бърз достъп до центъра на столицата и подбрана среда с функционални и стилни жилища. Комплексът предлага нов начин на живот – хармония между града и природата. Богато озеленяване, детска площадка, страхотни гледки. Функционално планирани жилища с прави линии и просторни помещения, създадени за реален комфорт и лесно обзавеждане. Впечатляващо малък процент общи части към апартаментите.

Луксозна сграда с модерна фасада - окачена, вентилируема от широкоформатен гранитогрес с изолация от каменна вата 12см. Подово отопление във всички стаи. Саморазливна калциево сулфатната замазка, даваща по-добро топлоотдаване. Опциите за отопление и охлаждане са: термопомпа или климатици. Настилки по терасите двоен под с гранитогресни плочи с дебелина 2см. Дограмата е висококачествен профил алуминий на етем в цвят 7016 по рал. Парапетите по терасите от алуминий, прахово боядисан. Асансьор със стъклена фасада. Общи части с широкоформатен гранитогрес по подовете.

Стратегически разположен близо до автобусни линии и с бърз достъп до бул. „България“ и Южната дъга, комплексът гарантира комфортно ежедневие и лесна мобилност. Непосредствената близост до Резиденция Бояна осигурява уникална комбинация от престиж и спокойна жилищна атмосфера – едно от престижните и зелени места в района.

Контролиран достъп и безопасност за семейството. Уредено и поддържано общо пространство. Без нежелан трафик и преминаващи хора.

Обади се СЕГА и цитирай този код 674425.


Оферта от партньор на Имотека

Веска Георгиева
Консултант недвижими имоти
pin Пиши във Viber

Оферти от същата сграда

Често задавани въпроси

Коя цена е определяща при покупка на имот?

Как протича сделка за покупка на имот с ипотечен кредит?

Какво можем да очакваме от пазара на имоти през 2025 г.?

През кои квартали минава метрото в София?

Коя е най-подходящата локация за търсене на къщи за продажба?