203

Тристаен апартамент за продажба, София, ID 654440

127 кв.м.
Дианабад
Шпакловка и замазка
406 876 EUR
3 204 €/кв.м.

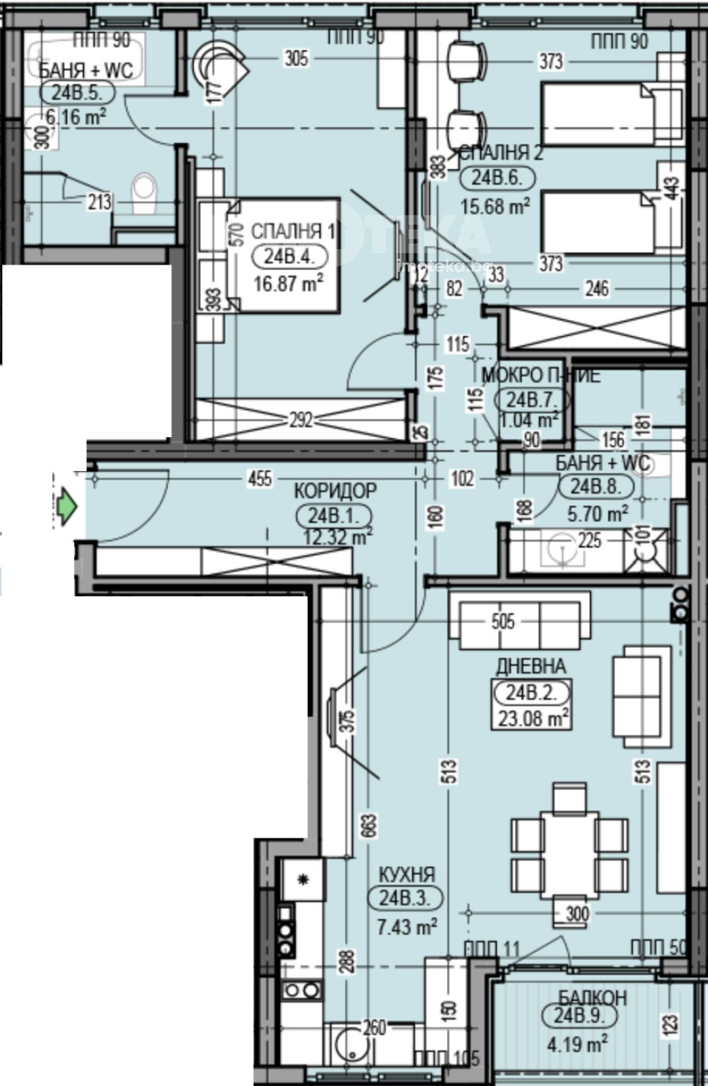
СХЕМА НА ПЛАЩАНЕ: 30% НА ПД, 70% НА АКТ 16! Тристаен апартамент със ЗП-107.02 м2, РЗП-126.46  м2 и следното разпределение: коридор, дневна с кухненски бокс и трапезария, две спални, две бани с тоалетни, килер/мокро и тераса. Изложението е юг-северозапад. Съвременен жилищен проект с модерна архитектура и изчистени линии. Сградата съчетава функционалност, естетика и иновативни технологии, осигурявайки оптимален комфорт и устойчивост. Три отделни секции и интелигентно позиционирани асансьори, обслужващи само лявата или дясната част на всяка секция, гарантира тишина и уединение.  Алуминиева дограма, три стъкла с прекъснат термомост. Панорамните прозорци с високоефективни стъклопакети,  осигуряват изобилно естествено осветление, а функционалните разпределения на жилищата създават усещане за простор, лекота и удобство. Отопление ТЕЦ.   Две нива с подземни гаражи.

Фасадата на сградата е вентилируема, изградена с висок клас облицовъчни материали, които не само допринасят за модерен и елегантен външен вид, но и осигуряват отлична топло- и шумоизолация. Тази система позволява по-добра енергийна ефективност и дълготрайност на конструкцията. Всеки детайл е проектиран с мисъл за съвременния градски начин на живот, където комфортът и практичността вървят ръка за ръка. Не просто жилищна сграда, а пространство, в което елегантността, стилът и качеството се обединяват в едно хармонично цяло.

Проектът съчетава стратегическа локация с неочаквано спокойствие. Разположена в сърцето на "Дианабад" на бул. "Г. М. Димитров", тя предлага директен достъп до градската инфраструктура - метро, транспорт, търговски обекти и обществени институции.   

 Качествените материали, прецизното изпълнение и функционалните разпределения на апартаментите с височина до 2,98м отговарят на съвременните изисквания за комфорт'

Обади се СЕГА и цитирай този код 654440.


Оферта от партньор на Имотека

Веска Георгиева
Консултант недвижими имоти
pin Пиши във Viber

Оферти от същата сграда

За квартал Дианабад, София и недвижимите имоти

Квартал Дианабад е разположен в източната част на София и се включва в административен район „Изгрев“. Разположен е югоизточно от централната градска зона. На север граничи с кв. „Изгрев“, на юг – със „Студентски град“, а в западна посока се намира Ловният парк.
Жилищният фонд на Дианабад е съставен основно от едропанелни блокове, сгради тип ЕПК и по-ниски тухлени жилищни сгради. През последните години кварталът се развива активно и с изграждането на нови жилищни кооперации, които допълват съществуващата среда.


Районът има добра транспортна обезпеченост благодарение на близостта до основни булеварди като „Драган Цанков“ и бул. „Доктор Г. М. Димитров“. Придвижването е улеснено от множество линии на градския транспорт – автобуси № 69, 70, 88, 94, 102, 294 и други, както и от първа и четвърта линия на софийското метро (М1 и М4) с разположени в близост метростанции „Г. М. Димитров“ и „Фредерик Жолио-Кюри“.


Образователната среда в Дианабад е добре развита и включва разнообразие от училища и детски заведения. Сред учебните институции са 105 СУ „Атанас Далчев“ и 11 ОУ „Св. Пимен Зографски“. За децата в предучилищна възраст са на разположение държавни детски градини като 49 ОДЗ „Радост“, ДГ №34 „Брезичка“ и ДГ №30 „Радецки“, както и частни заведения, сред които Частна детска ясла „Пчеличка“.


Здравното обслужване в квартала е осигурено от УМБАЛ „Софиямед“, както и от няколко специализирани медицински центъра и лаборатории, включително МЦ „Доверие СБТ“ и лаборатория „Bodimed“. В района се намира и ветеринарна клиника „Какаду“, която предлага медицински грижи за домашни любимци.


Характерна особеност на района са обширните зелени междублокови пространства, които създават приятна и спокойна среда за живеене. Близостта до Ловния парк предоставя отлични възможности за разходки, спорт и отдих на открито, а плувен комплекс „Диана“ допринася за възможностите за водни спортове и активен начин на живот. Всички тези предимства правят Дианабад подходящ квартал както за семейства с деца, така и за хора, търсещи удобна и зелена градска среда.


На сайта на Имотека може да откриете обяви за разнообразни имоти с функционално разпределение в Дианабад, които отговарят на различни бюджети и предпочитания. 

Нашите брокери недвижими имоти ще ви посрещнат с професионализъм и добро отношение. Професионалната помощ е от голямо значение, тъй като ние сме наясно с пазара. 

Тук може да се запознаете и с местоположението на офисите на ИМОТЕКА в София.

Често задавани въпроси

Коя е най-подходящата локация за търсене на къщи за продажба?

Към кого да се обърнем за данъчна оценка на имот?

В какъв срок се издава данъчна оценка?

Каква е цената на квадратен метър за София?

Коя цена е определяща при покупка на имот?