44

Тристаен апартамент за продажба, София, ID 689141

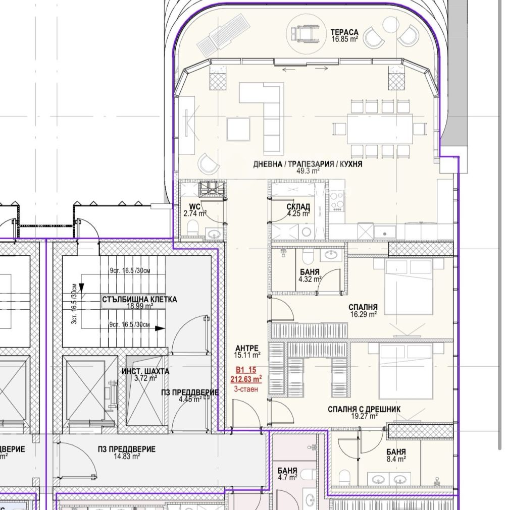
211 кв.м.
Дианабад
Шпакловка и замазка
885 066 EUR
4 195 €/кв.м.

Апартамента се състои от голяма дневна с кухненски бокс 57.кв.м, спалня с дрешник и собствена баня с тоалетна, втора спалня, втора баня с тоалетна, тоалетна, мокро помещение и тераса. Изключителната многофункционална сграда NV Residences в кв. Дианабад е една от най-разпознаваемите и иновативни сгради в съвременния силует на София. 

За строителството са използвани материали от най-високо качество, като е постигнато високо ниво на енергийна ефективност чрез фасадна система, модерна климатична инсталация и подово отопление.  

NV Residences се намира на изключително комуникативно място, което съчетава бърз достъп до бизнес центровете на града и близост до големи зелени площи. Едно от най-големите предимства е близостта до метростанция „Г. М. Димитров“ - на 5 минути пешеходно разстояние. Това осигурява бърза връзка с Центъра, Бизнес Парк София и Летище София.

Проектът предлага изключително светли, просторни и функционални апартаменти, като са осигурени паркоместа за всеки имот. Собствениците на апартаментите ще имат удобна топла връзка с NV Tower, като ще могат да използват удобствата ѝ на преференциални цени. Част от тях включват заведения за хранене, пекарна, търговски обекти, плувен басейн, фитнес зала, СПА зона, салон за красота, конферентен център, медицински център и др. Цената е без ДДС!

Обади се СЕГА и цитирай този код 689141.


Оферта от партньор на Имотека

Веселина Зоева
Консултант недвижими имоти
pin Пиши във Viber

Оферти от същата сграда

За квартал Дианабад, София и недвижимите имоти

Квартал Дианабад е разположен в източната част на София и се включва в административен район „Изгрев“. Разположен е югоизточно от централната градска зона. На север граничи с кв. „Изгрев“, на юг – със „Студентски град“, а в западна посока се намира Ловният парк.
Жилищният фонд на Дианабад е съставен основно от едропанелни блокове, сгради тип ЕПК и по-ниски тухлени жилищни сгради. През последните години кварталът се развива активно и с изграждането на нови жилищни кооперации, които допълват съществуващата среда.


Районът има добра транспортна обезпеченост благодарение на близостта до основни булеварди като „Драган Цанков“ и бул. „Доктор Г. М. Димитров“. Придвижването е улеснено от множество линии на градския транспорт – автобуси № 69, 70, 88, 94, 102, 294 и други, както и от първа и четвърта линия на софийското метро (М1 и М4) с разположени в близост метростанции „Г. М. Димитров“ и „Фредерик Жолио-Кюри“.


Образователната среда в Дианабад е добре развита и включва разнообразие от училища и детски заведения. Сред учебните институции са 105 СУ „Атанас Далчев“ и 11 ОУ „Св. Пимен Зографски“. За децата в предучилищна възраст са на разположение държавни детски градини като 49 ОДЗ „Радост“, ДГ №34 „Брезичка“ и ДГ №30 „Радецки“, както и частни заведения, сред които Частна детска ясла „Пчеличка“.


Здравното обслужване в квартала е осигурено от УМБАЛ „Софиямед“, както и от няколко специализирани медицински центъра и лаборатории, включително МЦ „Доверие СБТ“ и лаборатория „Bodimed“. В района се намира и ветеринарна клиника „Какаду“, която предлага медицински грижи за домашни любимци.


Характерна особеност на района са обширните зелени междублокови пространства, които създават приятна и спокойна среда за живеене. Близостта до Ловния парк предоставя отлични възможности за разходки, спорт и отдих на открито, а плувен комплекс „Диана“ допринася за възможностите за водни спортове и активен начин на живот. Всички тези предимства правят Дианабад подходящ квартал както за семейства с деца, така и за хора, търсещи удобна и зелена градска среда.


На сайта на Имотека може да откриете обяви за разнообразни имоти с функционално разпределение в Дианабад, които отговарят на различни бюджети и предпочитания. 

Нашите брокери недвижими имоти ще ви посрещнат с професионализъм и добро отношение. Професионалната помощ е от голямо значение, тъй като ние сме наясно с пазара. 

Тук може да се запознаете и с местоположението на офисите на ИМОТЕКА в София.

Често задавани въпроси

Какво представлява данъчната оценка?

Какво можем да очакваме от пазара на имоти през 2025 г.?

Коя цена е определяща при покупка на имот?

Как да изберем брокер при продажба на апартамент?

Колко струва една оценка на имот?