144

Двустаен апартамент за продажба, София, ID 682673

90 кв.м.
Драгалевци
Шпакловка и замазка
270 000 EUR
3 000 €/кв.м.

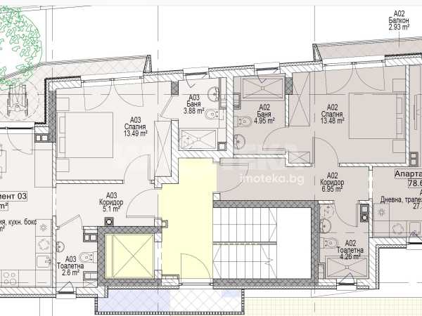
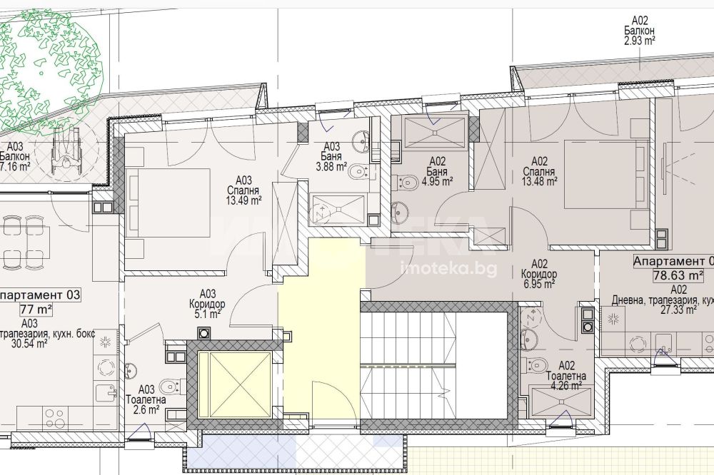
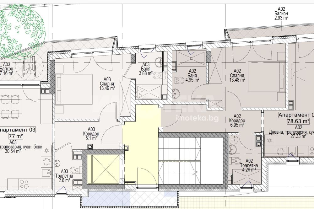
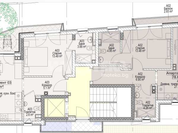
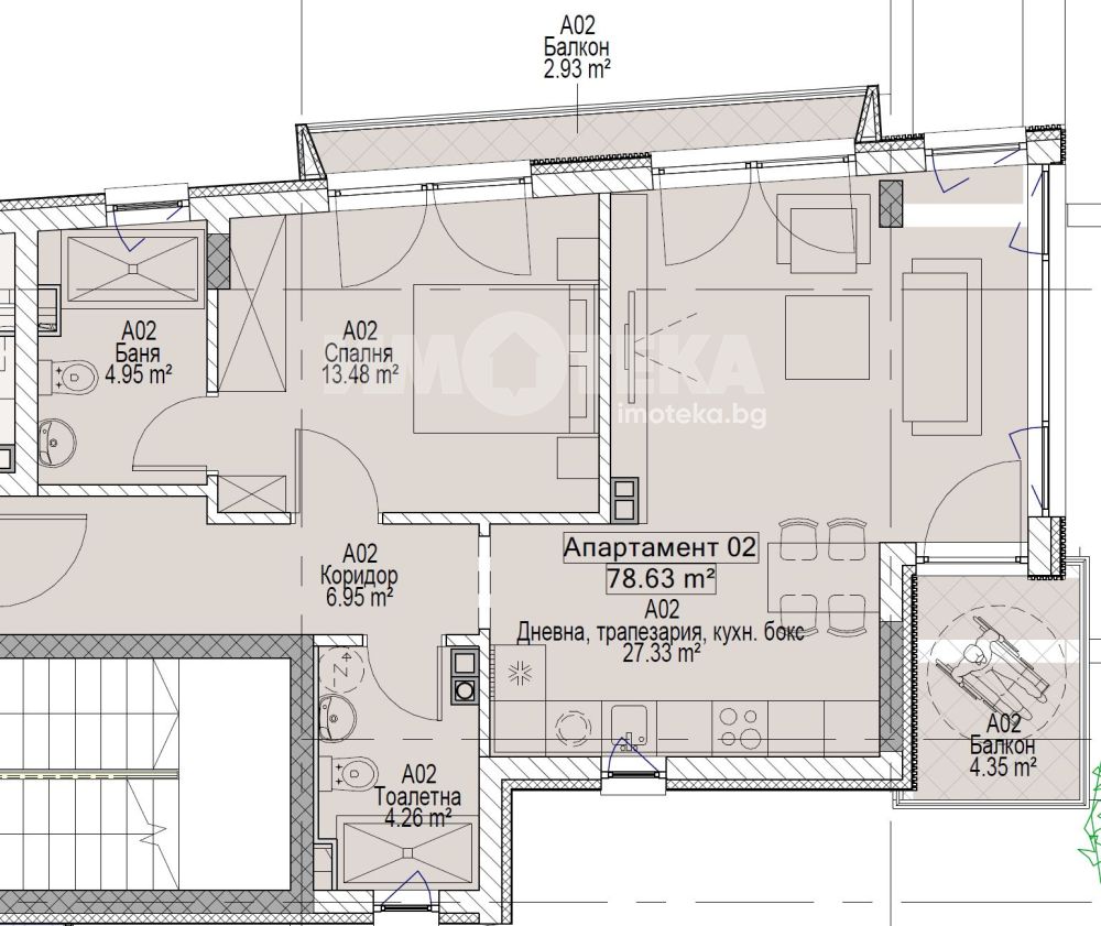
Двустаен апартамент на трети етаж. Сградата е завършена с изключителен бутиков клас изпълнение и високи стандарти на довършителни работи. Състои от голям хол с трапезария и кухненски бокс, спалня, баня и тоалетна, отделна тоалетна и 2 балкона. Възможност за закупуване на двоен подземен гараж на цена 65 000 евро и покрито паркомясто на партер 35000 евро.

Изпълнение с високи стандарти и внимание към детайла, осигуряващо дълготрайност и комфорт за обитателите. Сграда с АКТ15, АКТ 16 до средата на 2026 г.

Разположен на тиха и предпочитана част от града, в близост до всички важни удобства и транспортни връзки. Уникално местоположение, което предлага красиви гледки към природата и планината, съчетано с тишина и спокойствие.

  В близот до BRITANICA Park School и няколко детски градини; в близост до  супермаркет Фантастико; Лидл,  7 минути от Paradise Center,  10 минути  от Sofia Ring Mall.

Обади се СЕГА и цитирай този код 682673.


Оферта от партньор на Имотека

Станимира Каменова
Консултант недвижими имоти
pin Пиши във Viber

Сходни оферти

За квартал Драгалевци, София и недвижимите имоти

Драгалевци е квартал, разположен в южната част на София, в полите на планина Витоша. Той е добре познат като един от най-престижните и озеленени райони на столицата, отличаващ се с чист въздух и впечатляващи панорамни гледки към града. Районът граничи с кварталите „Симеоново“ и „Бояна“ и непосредствено достига до територията на природен парк Витоша. 


Достъпът до Драгалевци е възможен благодарение на ключови пътни артерии като Околовръстния път на София и бул. „Черни връх“, които осигуряват бърза връзка с останалите части на града.
Жилищната среда в квартала се характеризира с преобладаване на луксозни еднофамилни къщи, нискоетажни жилищни сгради и бутикови комплекси. Големите парцели и просторните зелени дворове предоставят възможност за реализиране на мащабни и висок клас жилищни проекти.


Основната транспортна връзка към центъра на София е бул. „Черни връх“, по който се движат автобусни линии № 64, 66, 68 и 98. Въпреки че в самия квартал няма метростанция, метростанция „Витоша“ от линия М2 се намира на удобна близост и е добре свързана с автобусния транспорт.


Образователната инфраструктура в Драгалевци включва 50 ОУ „Васил Левски“, като районът е особено предпочитан заради наличието на множество частни образователни институции. Сред тях са Частно иновативно средно училище „Рьорих“, Частна детска градина „София“, ЧДГ „Славейче“, ЧДГ „Немо“ и други.


Медицинското обслужване на жителите е осигурено от МЦ „Св. Богородица – Възвестителка“, редица частни лекарски кабинети, както и от близостта до големи болнични заведения като „Аджибадем Сити Клиник“ и УМБАЛ „Витоша“.


Освен директния достъп до природен парк Витоша, който предлага отлични условия за разходки, туризъм и спорт на открито, в квартала се намира и стадион „Драгалевци“, подходящ за различни спортни дейности. Районът разполага още с разнообразие от ресторанти, обекти на големи търговски вериги, малки квартални магазини и широк спектър от услуги.


Съчетанието от спокойна среда, изобилие от зелени площи, висок стандарт на застрояване и добра връзка с града утвърждава квартал Драгалевци като един от най-елитните и предпочитани райони за покупка на жилище в София.

На сайта на Имотека може да откриете обяви за разнообразни имоти с функционално разпределение в Драгалевци, които отговарят на различни бюджети и предпочитания. 

Нашите брокери недвижими имоти ще ви посрещнат с професионализъм и добро отношение. Професионалната помощ е от голямо значение, тъй като ние сме наясно с пазара. 

Тук може да се запознаете и с местоположението на офисите на ИМОТЕКА в София.

Често задавани въпроси

Към кого да се обърнем за данъчна оценка на имот?

Какви са прогнозите за кварталите през 2025г.?

Колко струва една оценка на имот?

Как протича сделка за покупка на имот с ипотечен кредит?

Какво представлява данъчната оценка?