103

Двустаен апартамент за продажба, София, ID 682683

90 кв.м.
Драгалевци
Шпакловка и замазка
270 000 EUR
3 000 €/кв.м.

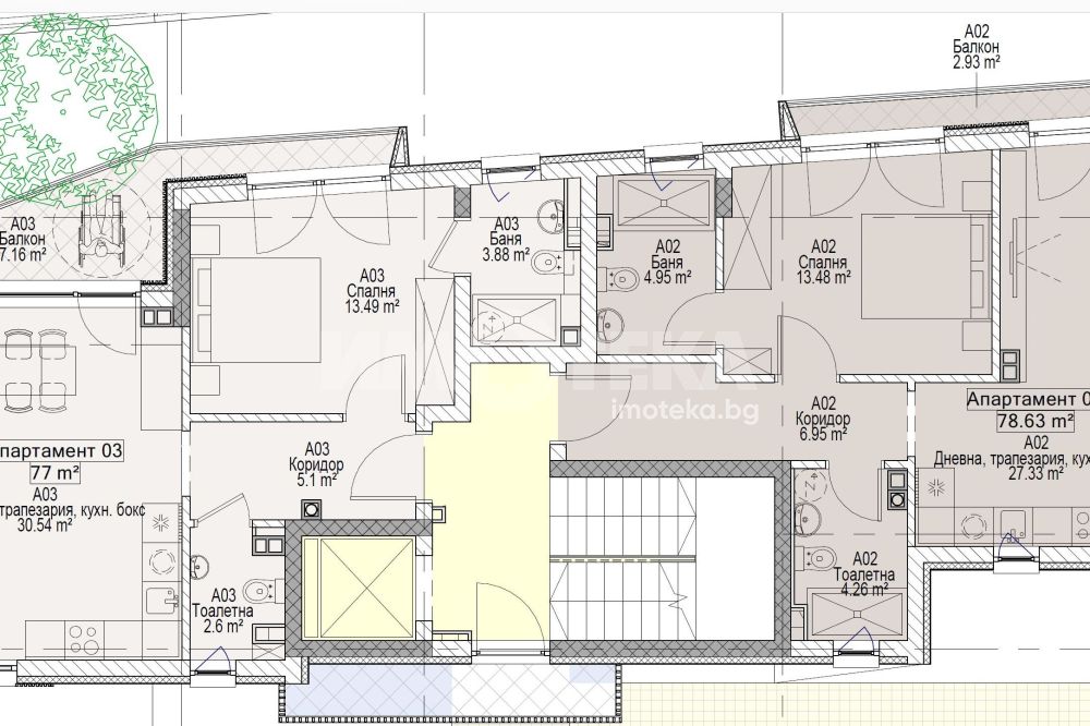
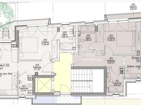
Двустаен апартамент на трети етаж. Сградата е завършена с изключителен бутиков клас изпълнение и високи стандарти на довършителни работи. Състои от голям хол с трапезария и кухненски бокс, спалня, баня и тоалетна, отделна тоалетна и 2 балкона. Възможност за закупуване на двоен подземен гараж на цена 65 000 евро и покрито паркомясто на партер 35000 евро.

Изпълнение с високи стандарти и внимание към детайла, осигуряващо дълготрайност и комфорт за обитателите. Сграда с АКТ 15, АКТ 16 до средата на 2026 г.

Разположен на тиха и предпочитана част от града, в близост до всички важни удобства и транспортни връзки. Уникално местоположение, което предлага красиви гледки към природата и планината, съчетано с тишина и спокойствие.

В близот до BRITANICA Park School и няколко детски градини; в близост до  супермаркет Фантастико; Лидл,  7 минути от Paradise Center,  10 минути  от Sofia Ring Mall.

Обади се СЕГА и цитирай този код 682683.


Оферта от партньор на Имотека

Станимира Каменова
Консултант недвижими имоти
pin Пиши във Viber

Сходни оферти

За квартал Драгалевци, София и недвижимите имоти

Драгалевци е квартал, разположен в южната част на София, в полите на планина Витоша. Той е добре познат като един от най-престижните и озеленени райони на столицата, отличаващ се с чист въздух и впечатляващи панорамни гледки към града. Районът граничи с кварталите „Симеоново“ и „Бояна“ и непосредствено достига до територията на природен парк Витоша. 


Достъпът до Драгалевци е възможен благодарение на ключови пътни артерии като Околовръстния път на София и бул. „Черни връх“, които осигуряват бърза връзка с останалите части на града.
Жилищната среда в квартала се характеризира с преобладаване на луксозни еднофамилни къщи, нискоетажни жилищни сгради и бутикови комплекси. Големите парцели и просторните зелени дворове предоставят възможност за реализиране на мащабни и висок клас жилищни проекти.


Основната транспортна връзка към центъра на София е бул. „Черни връх“, по който се движат автобусни линии № 64, 66, 68 и 98. Въпреки че в самия квартал няма метростанция, метростанция „Витоша“ от линия М2 се намира на удобна близост и е добре свързана с автобусния транспорт.


Образователната инфраструктура в Драгалевци включва 50 ОУ „Васил Левски“, като районът е особено предпочитан заради наличието на множество частни образователни институции. Сред тях са Частно иновативно средно училище „Рьорих“, Частна детска градина „София“, ЧДГ „Славейче“, ЧДГ „Немо“ и други.


Медицинското обслужване на жителите е осигурено от МЦ „Св. Богородица – Възвестителка“, редица частни лекарски кабинети, както и от близостта до големи болнични заведения като „Аджибадем Сити Клиник“ и УМБАЛ „Витоша“.


Освен директния достъп до природен парк Витоша, който предлага отлични условия за разходки, туризъм и спорт на открито, в квартала се намира и стадион „Драгалевци“, подходящ за различни спортни дейности. Районът разполага още с разнообразие от ресторанти, обекти на големи търговски вериги, малки квартални магазини и широк спектър от услуги.


Съчетанието от спокойна среда, изобилие от зелени площи, висок стандарт на застрояване и добра връзка с града утвърждава квартал Драгалевци като един от най-елитните и предпочитани райони за покупка на жилище в София.

На сайта на Имотека може да откриете обяви за разнообразни имоти с функционално разпределение в Драгалевци, които отговарят на различни бюджети и предпочитания. 

Нашите брокери недвижими имоти ще ви посрещнат с професионализъм и добро отношение. Професионалната помощ е от голямо значение, тъй като ние сме наясно с пазара. 

Тук може да се запознаете и с местоположението на офисите на ИМОТЕКА в София.

Често задавани въпроси

Какво можем да очакваме от пазара на имоти през 2025 г.?

Коя е най-подходящата локация за търсене на къщи за продажба?

Към кого да се обърнем за данъчна оценка на имот?

Какво представлява данъчната оценка?

В какъв срок се издава данъчна оценка?