319

Тристаен апартамент за продажба, София, ID 669885

119 кв.м.
Дружба 1
Шпакловка и замазка
231 390 EUR
1 944 €/кв.м.

Стилен дизайн и качествени  материали, които създадат запомняща се визия, която ще осигури на собствениците надеждност и ниски енергийни разходи

Над 5500 кв.м. РЗП сграда с 50 апартамента. Опция за открити и закрити паркоместа. Строежът е на етап дупка. Срок за изпълнение - края на 2027г. 

Отлична локация в Дружба - само на 5 минути от метростанстиця. Бърза комуникация с основни булеварди.

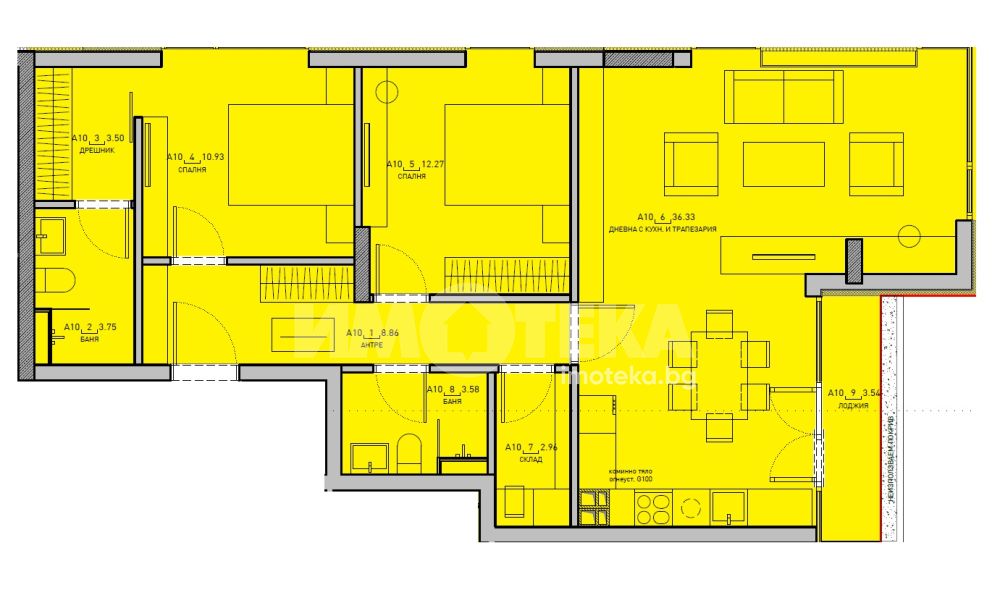
Висок клас изпълнение, просторни разпределения  Просторен тристаен апартамент с РЗП: 118,54 кв.м. и ЗП: 102,02 кв.м.. Югоизточно изложение. 

Обади се СЕГА и цитирай този код 669885.


Оферта от партньор на Имотека

Светлин Георгиев
Консултант недвижими имоти
pin Пиши във Viber

Оферти от същата сграда

За квартал Дружба, София и недвижимите имоти

Кварталите Дружба 1 и Дружба 2 са разположени в източната част на София и представляват една от големите и утвърдени жилищни зони на столицата. Те граничат с районите Младост, Полигона, Искър и Гара Искър и се намират в близост до важни входно-изходни направления на града. Автомобилният достъп се осъществява основно чрез бул. „Цариградско шосе“, бул. „Искърско шосе“ и бул. „проф. Цветан Лазаров“, които осигуряват връзки както с централните части на София, така и с периферията.

Едно от основните предимства на квартала е добрата транспортна обезпеченост. Районът се обслужва от метролиния М4 с метростанции „ИЕЦ – Цариградско шосе“, „Дружба“ и „Искърско шосе“, които осигуряват директен достъп до центъра на града и Летище София. Освен метрото, кварталите разполагат с добре развита автобусна мрежа – линии №1, 3, 5, 6, 7, 88, 204 и други, както и с тролейбусни линии №4 и 11. Допълнително трамвайните линии №20 и 23 осигуряват връзка с ключови градски точки.

Образователната инфраструктура в района е добре развита и разнообразна. В района са ситуирани детски градини, сред които 108 ЦДГ „Детско царство“ и ДГ 21 „Ежко Бежко“. В кварталите функционират и училища като 4 ОУ „Проф. Джон Атанасов“, 69 СУ „Димитър Маринов“, както и Професионалната гимназия по транспорт. Освен държавните учебни заведения, има и частни образователни центрове, включително SmartyKids София (Дружба 1), предлагащи допълнителни обучителни и развиващи програми за деца.

Здравното обслужване е добре обезпечено чрез диагностично-консултативни центрове, частни медицински кабинети, лаборатории и аптеки, разположени в рамките на кварталите и по основните пътни артерии. В непосредствена близост се намират и по-големи болнични заведения, сред които УМБАЛ „Св. Анна“, осигуряваща достъп до широк спектър от медицински услуги.

Търговската и обслужваща инфраструктура включва супермаркети на големи търговски вериги, квартални магазини, аптеки, банкови клонове, заведения и спортни съоръжения. Значително предимство на района са и зелените площи, като езерото в Дружба, което е една от най-големите паркови зони в източната част на София и предлага отлични условия за разходки, спорт и отдих.

 

Жилищната среда е разнообразна и отразява различни периоди от развитието на града. Основната част от застрояването се състои от панелни и ЕПК сгради, изградени през 70-те и 80-те години като част от планираното жилищно строителство. През последните години се наблюдава засилен интерес към ново строителство, включващо модерни жилищни сгради и комплекси, особено в периферните части на кварталите и около основните булеварди. Това предоставя възможност за избор между различни типове имоти и ценови нива.

Комбинацията от отлична транспортна свързаност, развита инфраструктура, разнообразен жилищен фонд и наличие на всички основни градски услуги утвърждава Дружба 1 и 2 като стабилен и функционален жилищен район, предпочитан както за постоянно живеене, така и за инвестиции с цел отдаване под наем.


На сайта на Имотека може да откриете обяви за разнообразни имоти с функционално разпределение в Дружба, които отговарят на различни бюджети и предпочитания. 

Нашите брокери недвижими имоти ще ви посрещнат с професионализъм и добро отношение. Професионалната помощ е от голямо значение, тъй като ние сме наясно с пазара. 

Тук може да се запознаете и с местоположението на офисите на ИМОТЕКА в София.

Често задавани въпроси

Коя цена е определяща при покупка на имот?

Как се прави анализ на пазара на недвижими имоти?

Какви са прогнозите за кварталите през 2025г.?

Как да изберем брокер при продажба на апартамент?

Каква е цената на квадратен метър за София?