285

Тристаен апартамент за продажба, София, ID 652142

106 кв.м.
Кръстова вада
Шпакловка и замазка
324 429 EUR
3 061 €/кв.м.

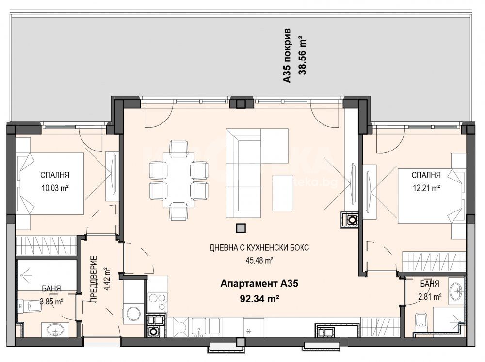
Тристаен апартамент с изложение запад. Разпределение: коридор, дневна с кухненски бокс, две спални, две санитарни помещения и Покривна тераса38.56 кв.м.  Чиста площ 92.34m2 Общи части 14.10m2 Площ с общи части 106.44m2

Сгради 4 и 5 /СТАРТИРАНО СТРОИТЕЛСТВО/ са две индивидуални жилищни сгради "А" и "Б", общо 76 бр. апартамента с една, две, три и четири спални. От партерни апартаменти със собствени дворчета до апартаменти с УНИКАЛНИ ПОКРИВНИ ТЕРАСИ. Двете сгради са свободностоящи с общо дворно пространство, богато озеленяване, места за отдих и детска площадка. Целият парцел е с площ от 2863кв.м. Сградите от Етап 3, няма да са с концепция на затворен комплекс и не се ангажират с договор за управление и поддръжка.

В града и в планината. За тези, които търсят предимствата на дома в близост до природата, съчетани с динамиката и ритъма на големия и съвременен град.

Eлегантна архитектура съчетана с естествени материали от високо качество и произведени от лидери на световния пазар, отлична инфраструктура, собствена паркова среда без автомобили, физическа охрана

Обади се СЕГА и цитирай този код 652142.

Никола Яначков
Консултант недвижими имоти
pin Пиши във Viber

Оферти от същата сграда

За квартал Кръстова вада, София и недвижимите имоти

Кръстова вада е сред новите и активно развиващи се жилищни райони в южната част на София. Разположен между кварталите Хладилника, Манастирски ливади, Витоша и в близост до Южен парк, той се оформя като естествено продължение на града в посока планината. Районът се развива интензивно през последното десетилетие, с акцент върху модерна жилищна и бизнес инфраструктура.

Обликът на квартала се формира основно от ново ниско и средноетажно строителство, което включва жилищни сгради и комплекси, еднофамилни къщи и бутикови проекти. Изграждането на нови обекти е съпроводено с подобряване на уличната мрежа и оформяне на по-добре организирана градска среда. Наред с жилищните сгради се реализират и офис и търговски проекти, които допринасят за функционалния баланс на района.

Кварталът има удобна транспортна връзка с останалата част на столицата. Основните пътни артерии бул. „Черни връх“ и Околовръстният път, осигуряват бърз достъп до централните и южни райони на София, както и до основните изходи от града. Обществената транспортна мрежа включва автобусни линии 64, 68, 93, 98, Х9 и 122, а метростанция „Витоша“ по линия М2 осигурява директна връзка с центъра и северните части на града.

В Кръстова вада и съседните квартали се намират детски градини, училища, здравни центрове и аптеки, както и търговски обекти от различен тип. В близост са разположени болница „Вита“, търговски център Paradise Center, множество супермаркети, фитнеси и спортни зали, които осигуряват комфорт и удобство за жителите.

Близостта до Южен парк и планина Витоша предоставя възможности за активен отдих и спорт, като същевременно осигурява по-спокойна градска атмосфера. В комбинация с новото строителство и добрата инфраструктура, кварталът предлага благоприятни условия за живот както за семейства, така и за млади професионалисти.

Кръстова вада е сред кварталите с висок инвестиционен интерес, както от частни купувачи, така и от строителни компании. Добрата локация, транспортната достъпност и съвременният тип застрояване превръщат района в една от най-търсените жилищни зони в южната част на София.

На сайта на Имотека може да откриете обяви за разнообразни имоти с функционално разпределение в Кръстова вада, които отговарят на различни бюджети и предпочитания. 

Ето и бързи връзки до всички типове имоти в продажба в квартал Кръстова вада:

>>   двустайни апартаменти в Кръстова вада, София
>>   тристайни апартаменти в Кръстова вада, София
>>   многостайни апартаменти в Кръстова вада, София
>>   мезонети в Кръстова вада, София
 

Нашите брокери недвижими имоти ще ви посрещнат с професионализъм и добро отношение. Професионалната помощ е от голямо значение, тъй като ние сме наясно с пазара. 

Тук може да се запознаете и с местоположението на офисите на ИМОТЕКА в София.

Често задавани въпроси

Какви са прогнозите за кварталите през 2025г.?

Как да изберем брокер при продажба на апартамент?

Коя е най-подходящата локация за търсене на къщи за продажба?

Каква е цената на квадратен метър за София?

Към кого да се обърнем за данъчна оценка на имот?