334

Тристаен апартамент за продажба, София, ID 670130

116 кв.м.
Кръстова вада
Шпакловка и замазка
320 022 EUR
2 759 €/кв.м.

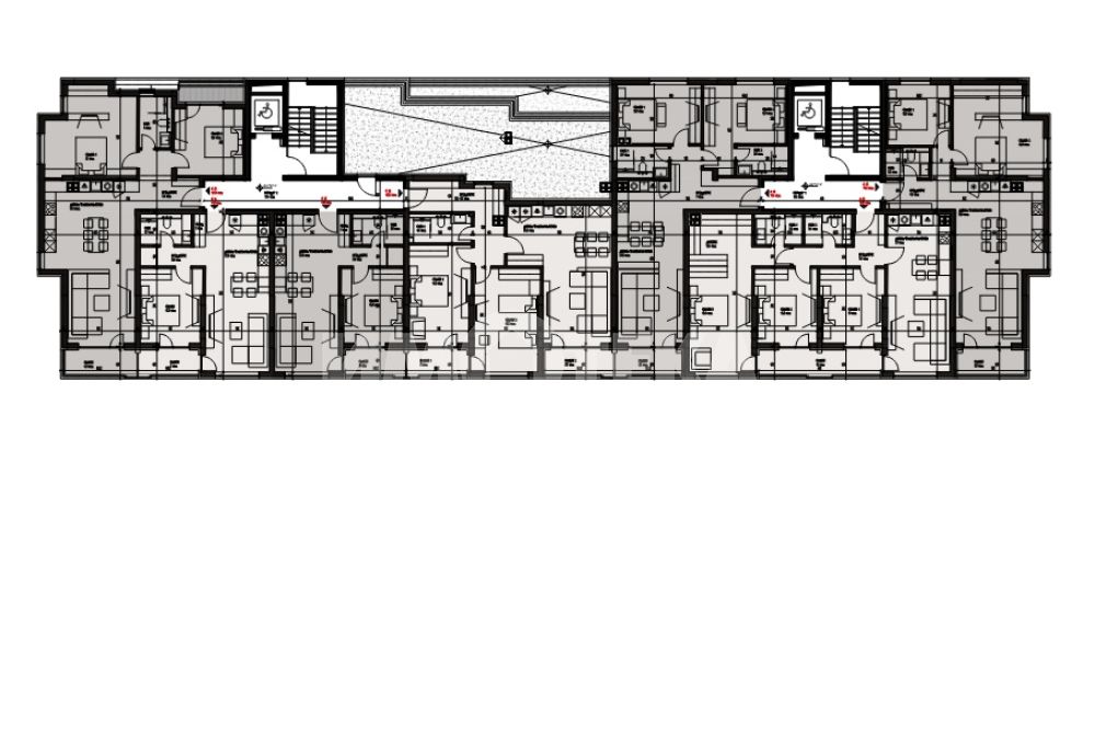
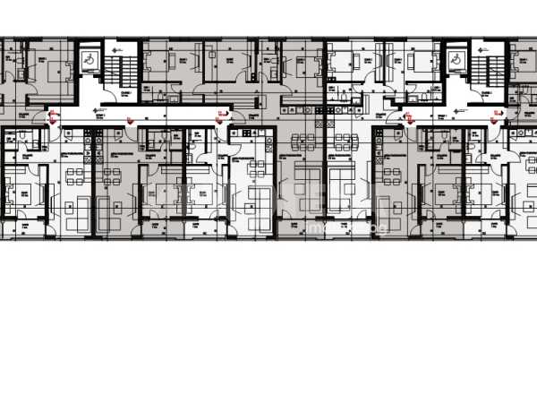
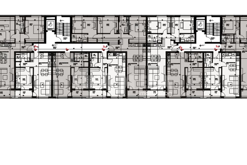
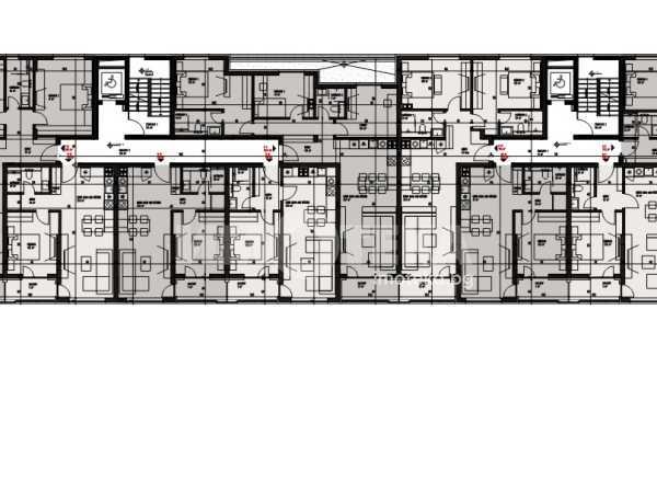
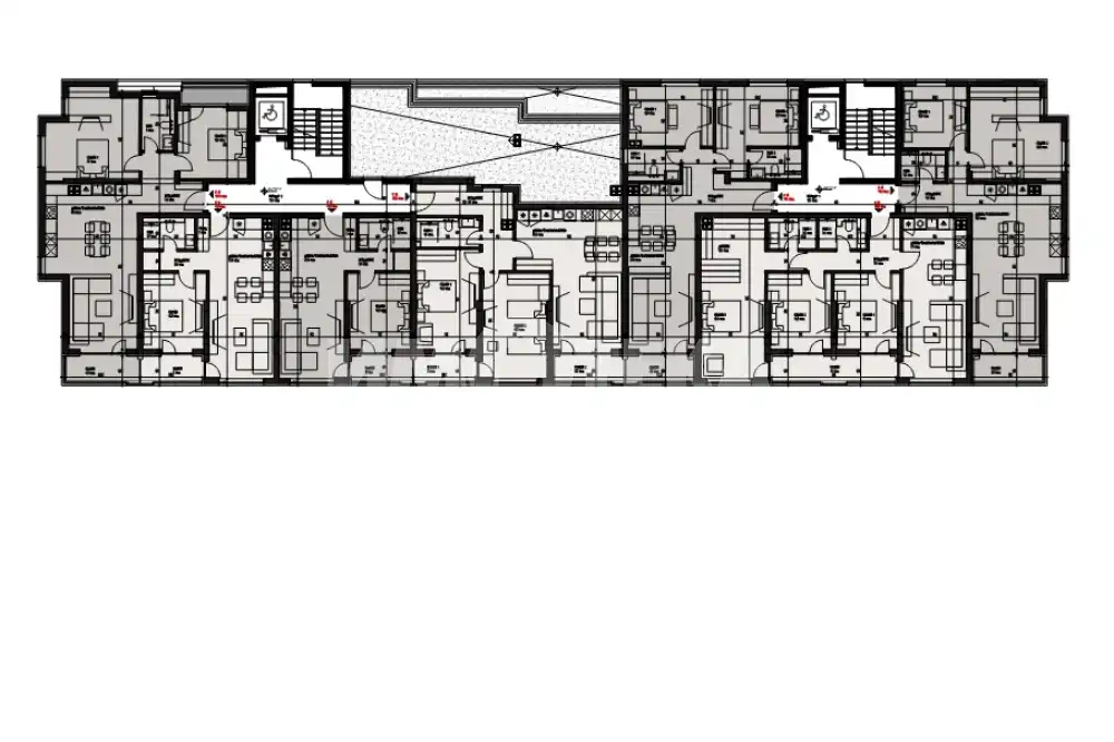
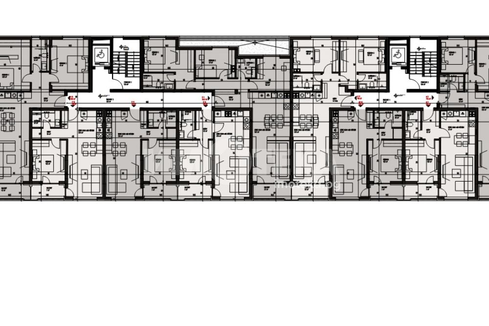
Тристаен апартамент с обща площ 115 кв.м. ЗП 97.22 кв.м.  Апартаментът има тристранно изложение Север, изток и юг, разположен е на трети етаж. Към апартамента има складово помещение с площ 1.92 кв.м. Нова сграда с амбиция да предлага качество и комфорт за своите обитатели. Жилищата са разпределени в два входа, всеки от който със собствен асансьор. Секция А е на 6 етажа, Секция Б е на 4 етажа. На етажните площадки има от три до пет апартамента. Предлагат се за продажба: 2 ателиета от 48 кв.м. 13 двустайни апартамента от 50 кв.м до 61 кв.м 17 тристайни апартамента от 76 кв.м до 109 кв.м 5 четиристайни апартамента от 106 кв.м до 149 кв.м 24 подземни гаража 8 закрити паркоместа 5 открити паркоместа Конструкция Конструкцията на сградата е стоманобетонова, монолитна. Външните стени са изпълнени от керамични тухли с дебелина 25 см. Инсталации Всички инсталации по части Електро, ВиК, ОиВиК отговарят на съвременните норми и изисквания. Изпълнени са прецизно от доказани професионалисти и в тях са вложени качествени материали. Отоплението и охлаждането на сградата е решено с помощта на термопомпената инсталация – с монтирани термопомпи и радиатори. Предвидени са изводи за климатични системи във всеки апартамент. Завършеност Общи части Изпълнени с луксозни материали по интериорен проект, допринасящи за комфорта на собствениците: входна врата на жилищната сграда е с контрол на достъпа; видеонаблюдение на общите части, периметъра на двора и подземния паркинг; видеодомофонна система; озеленяване на дворното пространство, парково осветление; ограда с ажурна част; метална порта за пешеходци с контрол на достъпа и метален портал за автомобили с дистанционно управление и контрол на достъпа. Жилища алуминиева дограма с прекъснат термо мост на водещ производител; блиндирани входни врати с тристранно заключване; нивелирана замазка в стаите; гипсова мазилка в стаите и вароциментова мазилка в мокрите помещения от водещ производител; електроинсталация с монтирани ключове, контакти и фасонки, интернет окабеляване и подготовка за СОТ; електрооборудване на табла, включително дефектно токова защита; ВиК на изводи с тапи; Индивидуални термопомпени инсталации с монтирани радиатори. Гаражи и паркоместа шлайфан бетон; гаражни врати тип летящо крило с електро двигател и дистанционно управление Асансьор Сградата разполага с два ансансьора с модерен дизайн на водещ световен производител. Всеки един от тях може да превозва до 8 лица едновременно. При спиране на електричеството, ансансьорът автоматично се придвижва до най – близкия етаж и се отваря. Фасада Топлоизолационна система с дебелина минимум 10 см от висок клас. Декоративни акценти с окачена фасада.

Обади се СЕГА и цитирай този код 670130.

Евелина Кощрова
Консултант недвижими имоти
pin Пиши във Viber

Оферти от същата сграда

За квартал Кръстова вада, София и недвижимите имоти

Кръстова вада е сред новите и активно развиващи се жилищни райони в южната част на София. Разположен между кварталите Хладилника, Манастирски ливади, Витоша и в близост до Южен парк, той се оформя като естествено продължение на града в посока планината. Районът се развива интензивно през последното десетилетие, с акцент върху модерна жилищна и бизнес инфраструктура.

Обликът на квартала се формира основно от ново ниско и средноетажно строителство, което включва жилищни сгради и комплекси, еднофамилни къщи и бутикови проекти. Изграждането на нови обекти е съпроводено с подобряване на уличната мрежа и оформяне на по-добре организирана градска среда. Наред с жилищните сгради се реализират и офис и търговски проекти, които допринасят за функционалния баланс на района.

Кварталът има удобна транспортна връзка с останалата част на столицата. Основните пътни артерии бул. „Черни връх“ и Околовръстният път, осигуряват бърз достъп до централните и южни райони на София, както и до основните изходи от града. Обществената транспортна мрежа включва автобусни линии 64, 68, 93, 98, Х9 и 122, а метростанция „Витоша“ по линия М2 осигурява директна връзка с центъра и северните части на града.

В Кръстова вада и съседните квартали се намират детски градини, училища, здравни центрове и аптеки, както и търговски обекти от различен тип. В близост са разположени болница „Вита“, търговски център Paradise Center, множество супермаркети, фитнеси и спортни зали, които осигуряват комфорт и удобство за жителите.

Близостта до Южен парк и планина Витоша предоставя възможности за активен отдих и спорт, като същевременно осигурява по-спокойна градска атмосфера. В комбинация с новото строителство и добрата инфраструктура, кварталът предлага благоприятни условия за живот както за семейства, така и за млади професионалисти.

Кръстова вада е сред кварталите с висок инвестиционен интерес, както от частни купувачи, така и от строителни компании. Добрата локация, транспортната достъпност и съвременният тип застрояване превръщат района в една от най-търсените жилищни зони в южната част на София.

На сайта на Имотека може да откриете обяви за разнообразни имоти с функционално разпределение в Кръстова вада, които отговарят на различни бюджети и предпочитания. 

Ето и бързи връзки до всички типове имоти в продажба в квартал Кръстова вада:

>>   двустайни апартаменти в Кръстова вада, София
>>   тристайни апартаменти в Кръстова вада, София
>>   многостайни апартаменти в Кръстова вада, София
>>   мезонети в Кръстова вада, София
 

Нашите брокери недвижими имоти ще ви посрещнат с професионализъм и добро отношение. Професионалната помощ е от голямо значение, тъй като ние сме наясно с пазара. 

Тук може да се запознаете и с местоположението на офисите на ИМОТЕКА в София.

Често задавани въпроси

Каква е цената на квадратен метър за София?

Как се прави анализ на пазара на недвижими имоти?

Какво можем да очакваме от пазара на имоти през 2025 г.?

Коя цена е определяща при покупка на имот?

Какви са прогнозите за кварталите през 2025г.?