354

Тристаен апартамент за продажба, София, ID 672392

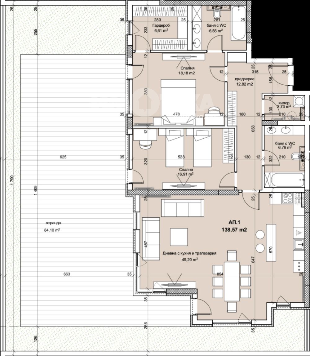
164 кв.м.
Лозенец
Шпакловка и замазка
532 636 EUR
3 248 €/кв.м.

Тристаен апартамент състоящ се от дневана с кухненски бокс, две спални, три санитарни и голяма веранда. Цената е без ДДС.

Затворен комплекс от изключително висок клас. Фасадите са вентилируеми, с минерална вата и немски клинкерни плочи. Дограмата е алуминиева "Schüco", с прекъснат термомост и троен стъклопакет. Асансьорите са на "Shindler“. Фитнес център с уелнес зона. Детски център със занималня. Ресторант-градина и осемнадесет хранителни и нехранителни търговски обекта.

Намира се в напълно нов квартал, на метри от "Ловен парк".

Двадесет и два декара паркове, градини, водни огледала, фонтани и седем детски площадки. Парк. Нов квартал. Индивидуална термопомпа въздух-вода, захранваща подово отопление и охлаждане.

Обади се СЕГА и цитирай този код 672392.

Валентин Киров
Консултант недвижими имоти
pin Пиши във Viber

Оферти от същата сграда

За квартал Лозенец, София и недвижимите имоти

Квартал Лозенец е утвърден квартал на София, разположен югоизточно от центъра. Застрояването на района започва в началото на миналия век, а днес той е разделен на Горен и Долен Лозенец. В граници е с кварталите Център, Иван Вазов, Хладилника, Изток и Кръстова вада. Част от Лозенец е позната като „Журналистическия квартал“, тъй като там са живели и творили редица български писатели, поети и общественици, включително Валери Петров, Михаил Андреев и Минчо Дилянов, чиито домове допринасят за културния профил на района.

Транспортната инфраструктура на Лозенец е добре развита посредством връзките с метростанции Джеймс Баучер, Европейски съюз и Витоша, както и основни пътни артерии като булевардите Черни връх, Арсеналски и Джеймс Баучер. Районът е обслужван от автобусни линии 88, 94, 102, 120, 604, тролейбуси 2 и 9, както и трамваи 10 и 15, осигуряващи бърза връзка с централните и ключови бизнес райони на града.

Жилищната среда в Лозенец предлага разнообразие от имоти – от традиционни кооперации с характерна архитектура, до съвременни луксозни комплекси. Горен Лозенец се отличава с наличието на дипломатически резиденции и престижни имоти, които оформят среда с висок стандарт на живот. Богатото озеленяване, просторните дворове и нискоетажните сгради утвърждават квартала като „зелената перла“ на София.

В района функционират училища, детски градини, търговски обекти и медицински центрове, включително Университетска болница „Лозенец“. В непосредствена близост се намират Южен парк, Paradise Center, болница Токуда, както и разнообразие от бизнес и търговски обекти.

Лозенец е предпочитан от  служители на международни компании, дипломати и семейства, които ценят централната локация, добрата инфраструктура и лесния достъп до административни и бизнес центрове. Районът е атрактивен както за дългосрочно живеене, така и за инвестиции, благодарение на стабилния пазар на недвижими имоти, високото качество на строителството и баланс между зеленина и предоставени удобства.

На сайта на Имотека може да откриете обяви за разнообразни имоти с функционално разпределение в Лозенец, които отговарят на различни бюджети и предпочитания. 

Ето и бързи връзки до типове имоти в продажба в квартал Лозенец:

>>  двустайни апартаменти в Лозенец, София
>>  тристайни апартаменти в Лозенец, София
>>  многостайни апартаменти в Лозенец, София
>>  търговски площи и офиси в Лозенец, София

 

Нашите брокери недвижими имоти ще ви посрещнат с професионализъм и добро отношение. Професионалната помощ е от голямо значение, тъй като ние сме наясно с пазара. 
Тук може да се запознаете и с местоположението на  офисите на ИМОТЕКА в София.

 

Често задавани въпроси

Как протича сделка за покупка на имот с ипотечен кредит?

Какви са прогнозите за кварталите през 2025г.?

Каква е цената на квадратен метър за София?

Какво можем да очакваме от пазара на имоти през 2025 г.?

Коя е най-подходящата локация за търсене на къщи за продажба?